宮崎市大塚町権現昔の中古戸建
掲載情報更新日:2026年03月16日 次回更新予定日:2026年03月30日
- 3,100万円
-
- 借入ご希望金額
万円 - 借入期間
年 - 借入金利
% - 月々のお支払い金額
円
- 借入ご希望金額
※ 月々のお支払例は目安の試算となりますので、実際の金額とは異なる場合がございます。詳しくは店舗までお問合わせください。
- 宮崎市大塚町権現昔
-
JR日豊本線『宮崎』 徒歩45分 (約3590m)
JR日豊本線『南宮崎』 徒歩53分 (約4200m)
JR日豊本線『宮崎神宮』 徒歩59分 (約4700m)
宮崎交通『西の原』 徒歩3分 (約240m)
宮崎市大塚町権現昔一戸建て | 物件情報
オール電化×EV充電対応の5LDK角地。利便性も整った大塚町の大型住宅。
◆ オール電化で家計にやさしい住まい
光熱費を抑えつつ快適に暮らせます。
◆ EV充電設備付きで将来も安心
電気自動車を持つ方・購入予定の方に最適。
◆ 南向き×2面道路の角地
開放感があり、日当たり・風通しも良好。
◆ 生活利便施設が徒歩圏内に充実
スーパー・ドラッグストア・コンビニが近く買い物便利。
◆ ゆとりの5LDK+Sで収納豊富
人数が多いご家庭や、在宅ワークにも使いやすい間取り。
物件の設備
- オール電化
- 公営水道
- 下水道
- 食器乾燥機
- IHクッキングヒータ
- システムキッチン
- バス
- オートバス
- バス1坪以上
- 浴室乾燥機
- 浴室に窓
- トイレ
- トイレ2箇所
- 温水洗浄便座
- 太陽光発電システム
- EV車充電設備
- モニタ付インターホン
- LDK18畳以上
- 和室
- 全室2面採光
- 全居室複層ガラス
- クローゼット
- ウォークインクローゼット
- 納戸
- 床下収納
- 南庭
物件の特徴
- 前道6m以上
- スーパーが近い
- 閑静な住宅街
- 市街地が近い
- 陽当り良好
- 2階建
- 角地
- 建築確認完了検査済証
物件詳細情報
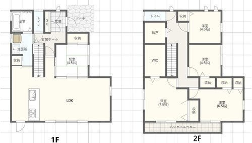
| 価格 | 3,100万円 | 間取り | 5LDK+S |
|---|---|---|---|
| 物件種別 | 中古一戸建て | ||
| 所在地 | 宮崎県宮崎市大塚町権現昔 | ||
| アクセス |
|
||
| 建物面積 | 公127.95㎡ | 駐車場 | あり 普通:3台 |
| 築年月 | 2014年(平成26年)05月築 | ||
| 建物構造 | 鉄骨 2階建 | 工法 | |
| 主要採光 | バルコニー | ||
| 保証・評価 | |||
| リフォーム | |||
| 土地面積 | 公170.06㎡(51.44坪) | 接道 | 北側(公道)幅 約6.0m 間口 約15.00m 西側(公道)幅 約4.8m 間口 約12.00m |
| 私道 | セットバック | ||
| 地目 | 宅地 | 地勢 | 平坦 |
| 権利 | 所有権 |
||
| 都市計画 | 市街化区域 |
用途地域 | 1種低層 |
| 建ぺい/容積率 | 50% / 80% | 土地国土法 | |
| 許可番号 | 建築基準法 | ||
| 法令制限 | |||
| 小学区 | 大塚小学校 徒歩14分 (約1100m) | 中学区 | 大塚中学校 徒歩12分 (約920m) |
| 現況 | 居住中 | 引渡 | 期日指定:2026年03月下旬 |
| その他費用 | |||
| 周辺環境 | ローソン 宮崎大塚町店 徒歩3分 (約170m) ナフコ 大塚店 徒歩7分 (約500m) マルミヤストア 大塚店 徒歩8分 (約580m) ドラッグストアモリ大塚店 徒歩8分 (約580m) セブンイレブン 宮崎大塚池ノ内 徒歩9分 (約670m) コスモス 小松店 徒歩8分 (約590m) タイヨー 小松台店 徒歩10分 (約780m) セブンイレブン 宮崎桜ヶ丘町 徒歩10分 (約790m) ダイレックス 小松店 徒歩10分 (約780m) コスモス 大塚台店 徒歩13分 (約1020m) |
||
| 備考 | オール電化、EV充電設備も備えた大塚町中古住宅☆ | ||
| 物件番号 | 4466646 | 取引態様 | 媒介 |
取扱店舗情報
| 電話番号 | 0985-86-7336 |
|---|---|
| 所在地 | 〒889-1607 宮崎県宮崎市清武町加納3丁目16 メモワールII101号室 |
| 営業時間 | 9:00~20:00 |
| 定休日 | 不定休 |
| 宅建免許番号 | 宮崎県知事(1)第4995号 |
| アクセス | 店舗への地図はこちら |

来店ご予約
宮崎県宮崎市で価格が似ている物件はこちら
- 宮崎県
マイページ物件数 - 1,597件
最近見た物件
-
-

-
- 土地
- 880万円
-
泉佐野市日根野
-
JR阪和線日根野
-
-
-

-
- 新築一戸建て
- 2,990万円
-
春日井市高森台7丁目
-
JR中央本線高蔵寺
-
-
-

-
- 土地
- 670万円
-
中間市大字垣生
-
JR筑豊本線中間
-
宮崎県中古一戸建て新着物件
-
-

-
- 中古一戸建て
- 2,300万円
-
宮崎市月見ケ丘2丁目
-
JR日豊本線南宮崎駅
-
-
-

-
- 中古一戸建て
- 500万円
-
宮崎市佐土原町上田島
-
JR日豊本線佐土原駅
-
-
-

-
- 中古一戸建て
- 980万円
-
宮崎市大字本郷北方
-
JR宮崎空港線宮崎空港駅
-
-
-

-
- 中古一戸建て
- 2,500万円
-
宮崎市大島町馬場尻
-
JR日豊本線宮崎神宮駅
-
-
-

-
- 中古一戸建て
- 2,700万円
-
宮崎市出来島町
-
JR日豊本線宮崎駅
-
-
-

-
- 中古一戸建て
- 1,580万円
-
宮崎市佐土原町下田島
-
JR日豊本線佐土原駅
-
-
-

-
- 中古一戸建て
- 1,680万円
-
宮崎市高岡町五町
-
JR日豊本線宮崎神宮駅
-
- お近くの店舗を探す
-
おすすめ物件
-
-

-
- 中古一戸建て
- 700万円
-
日南市南郷町中村乙
-
JR日南線南郷
-
-
-

-
- 中古一戸建て
- 1,600万円
-
日南市時任町
-
JR日南線飫肥
-
-
-

-
- 中古一戸建て
- 1,150万円
-
宮崎市大字本郷北方
-
JR日南線田吉
-
-
-

-
- 中古一戸建て
- 1,990万円
-
宮崎市吉村町曽師前
-
JR日豊本線宮崎
-
-
-

-
- 中古一戸建て
- 280万円
-
宮崎市佐土原町東上那珂
-
野久尾バス停
-
-
-

-
- 中古一戸建て
- 3,600万円
-
宮崎市高岡町飯田3丁目
-
JR日豊本線宮崎
-
-
-

-
- 中古一戸建て
- 1,250万円
-
宮崎市清武町今泉丙
-
JR日豊本線清武
-
-
-

-
- 中古一戸建て
- 900万円
-
宮崎市清武町加納甲
-
JR日豊本線清武
-
-
-

-
- 中古一戸建て
- 1,350万円
-
宮崎市大塚町小原田
-
JR日豊本線宮崎
-
-
-

-
- 中古一戸建て
- 2,900万円
-
宮崎市田野町乙
-
JR日豊本線田野
-




















担当エージェント:小玉 賢太
オール電化に加えてEV充電設備まで整った、多機能で使いやすい5LDKです。
角地で日当たりも良好。周辺には買い物施設も多く、生活しやすい大塚町エリアの魅力を実感いただけます。