中古戸建
NEW 10.30掲載情報更新日:2025年10月30日 次回更新予定日:2025年11月13日
- 1,749万円
-
- 借入ご希望金額
万円 - 借入期間
年 - 借入金利
% - 月々のお支払い金額
円
- 借入ご希望金額
※ 月々のお支払例は目安の試算となりますので、実際の金額とは異なる場合がございます。詳しくは店舗までお問合わせください。
- 大津市苗鹿2丁目
-
JR湖西線『おごと温泉』 徒歩20分 (約1600m)
中古戸建一戸建て | 物件情報
☆内外装リフォーム済み住宅・庭付き ☆琵琶湖眺望あり♪ ☆3LDK ☆車2台分堀込駐車場
■2025年9月にリフォーム済みのきれいな住宅です
■1,2階から琵琶湖眺望あり♪
■並列駐車可能な堀込駐車場2台分
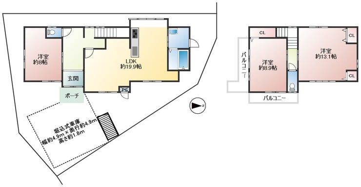
■広々3LDK♪19.9帖のLDK
■オール電化住宅・トイレ2ヶ所・ユニットバス・システムキッチン
物件の設備
- オール電化
- 公営水道
- 公共下水
- 側溝
- IHクッキングヒータ
- システムキッチン
- ユニットバス
- バス1坪以上
- トイレ2箇所
- LDK18畳以上
- フローリング張替
- 庭
物件の特徴
- 内装リフォーム済
- 外装リフォーム済
- 内外装リフォーム済
- 湖/池が見える
- 眺望良好
- 2階建
物件詳細情報
| 価格 | 1,749万円 | 間取り | 3LDK |
|---|---|---|---|
| 物件種別 | 中古一戸建て | ||
| 所在地 | 滋賀県大津市苗鹿2丁目15-16 | ||
| アクセス |
|
||
| 建物面積 | 公119.67㎡ | 駐車場 | あり 普通:2台 |
| 築年月 | 1978年(昭和53年)02月築 | ||
| 建物構造 | 木造 スレート葺 2階建 | 工法 | |
| 主要採光 | 東向 | バルコニー | |
| 保証・評価 | |||
| リフォーム | 【水回り】2025年09月 キッチン・浴室・トイレ・洗面・給湯器 【外装】2025年09月 外壁 ・屋根 ・他[雨戸、雨どい、] 塗装工事 【内装】2025年09月 壁、天井 ・床 ・建具 ・他[LED照明器具新品交換] 【その他】2025年09月 防草シート敷き込み、砕石敷き込み、シロアリ予防工事 |
||
| 土地面積 |
公170.62㎡(51.61坪) 持分:1/1 |
接道 | 北側(公道)幅 約5.3m 北東側(公道)幅 約4.6m |
| 私道 | セットバック | 無 | |
| 地目 | 宅地 | 地勢 | 高台 |
| 権利 | 所有権 |
||
| 都市計画 | 市街化区域 |
用途地域 | 1種中高 |
| 建ぺい/容積率 | 60% / 200% | 土地国土法 | |
| 許可番号 | 建築基準法 | ||
| 法令制限 | |||
| 小学区 | 雄琴小学校 徒歩14分 (約1100m) | 中学区 | 日吉中学校 徒歩32分 (約2500m) |
| 現況 | 空 | 引渡 | 相談 |
| その他費用 | |||
| 周辺環境 | 第二星の子保育園 徒歩12分 (約890m) 大津雄琴郵便局 徒歩9分 (約690m) 大津市立雄琴小学校 徒歩14分 (約1120m) 大津市立雄琴幼稚園 徒歩15分 (約1170m) ウエルシア大津木の岡店 徒歩21分 (約1620m) ファミリーマート 大津雄琴駅前店 徒歩20分 (約1560m) JRおごと温泉駅 徒歩21分 (約1640m) フレンドマート 雄琴駅前店 徒歩22分 (約1690m) 大津市立日吉中学校 徒歩31分 (約2480m) 滋賀銀行仰木雄琴代理店 徒歩21分 (約1620m) |
||
| 備考 | ■司法書士売主指定 ■敷地の一部土砂災害警戒区域内 ■車庫約21.56㎡が未登記。登記の上お渡し。 ・第二星の子保育園まで徒歩12分(約890m) ・大津雄琴郵便局まで徒歩9分(約690m) ・大津市立雄琴小学校まで徒歩14分(約1120m) ・大津市立雄琴幼稚園まで徒歩15分(約1170m) ・ウエルシア大津木の岡店まで徒歩21分(約1620m) ・ファミリーマート 大津雄琴駅前店まで徒歩20分(約1560m) ・滋賀銀行仰木雄琴代理店まで徒歩21分(約1620m) ・JRおごと温泉駅まで徒歩21分(約1640m) ・フレンドマート 雄琴駅前店まで徒歩22分(約1690m) ・大津市立日吉中学校まで徒歩31分(約2480m) |
||
| 物件番号 | 4468940 | 取引態様 | 媒介 |
取扱店舗情報
ハウスドゥ 滋賀湖西 有限会社ケア・サポート愛 店舗詳細ページへ
| 電話番号 | 077-532-3173 |
|---|---|
| 所在地 | 〒520-0232 滋賀県大津市真野5丁目9-13 |
| 営業時間 | 9:00~18:00 |
| 定休日 | 毎週火曜日・水曜日 夏季、年末年始 |
| 宅建免許番号 | 滋賀県知事(1)第3950号 |
| アクセス | 店舗への地図はこちら |

来店ご予約
滋賀県大津市で価格が似ている物件はこちら
- 滋賀県
マイページ物件数 - 2,798件
最近見た物件
-
-

-
- 中古一戸建て
- 1,800万円
-
北区堀船3丁目
-
都電荒川線梶原
-
-
-

-
- 中古一戸建て
- 3,099万円
-
東大阪市御厨東1丁目
-
近鉄難波・奈良線八戸ノ里
-
滋賀県中古一戸建て新着物件
-
-

-
- 中古一戸建て
- 1,749万円
-
大津市苗鹿2丁目
-
JR湖西線おごと温泉駅
-
-
-

-
- 中古一戸建て
- 3,400万円
-
野洲市井口
-
JR東海道線野洲駅
-
-
-

-
- 中古一戸建て
- 2,680万円
-
栗東市荒張
-
JR草津線石部駅
-
-
-

-
- 中古一戸建て
- 500万円
-
蒲生郡日野町大字大窪
-
近江鉄道本線日野駅
-
-
-

-
- 中古一戸建て
- 1,758万円
-
湖南市菩提寺西1丁目
-
JR草津線石部駅
-
-
-

-
- 中古一戸建て
- 850万円
-
大津市北大路2丁目
-
JR東海道線石山駅
-
-
-

-
- 中古一戸建て
- 2,299万円
-
大津市千町2丁目
-
JR東海道線石山駅
-
- お近くの店舗を探す
-
おすすめ物件
-
-

-
- 中古一戸建て
- 3,799万円
-
栗東市蜂屋
-
JR草津線手原
-
-
-

-
- 中古一戸建て
- 1,990万円
-
守山市水保町
-
JR東海道線守山
-
-
-

-
- 中古一戸建て
- 2,890万円
-
東近江市ひばり丘町
-
近江鉄道本線八日市
-
-
-

-
- 中古一戸建て
- 1,780万円
-
長浜市新庄寺町
-
JR北陸本線長浜
-
-
-

-
- 中古一戸建て
- 3,280万円
-
大津市本堅田2丁目
-
JR湖西線堅田
-
-
-

-
- 中古一戸建て
- 2,780万円
-
長浜市七条町
-
JR北陸本線長浜
-
-
-

-
- 中古一戸建て
- 1,190万円
-
守山市立田町
-
JR東海道線守山
-
-
-

-
- 中古一戸建て
- 480万円
-
長浜市徳山町
-
JR北陸本線虎姫
-
-
-

-
- 中古一戸建て
- 3,298万円
-
京都市左京区北白川西瀬ノ内町
-
叡山電鉄茶山・京都芸術大学
-
-
-

-
- 中古一戸建て
- 2,790万円
-
近江八幡市小田町
-
JR東海道線近江八幡
-



担当エージェント:木村 大祐
ハウスドゥ滋賀湖西をご覧いただき誠にありがとうございます。
弊社では主に湖西エリアの中古・新築の戸建て・マンション、売土地を取り扱っております。
リフォーム・リノベ―ションや建物建築、外構工事、住宅ローン相談、火災保険の取り扱いなど住宅購入に関わる全ての事にワンストップでご対応し、お客様が知りたい情報を全てご提供できる環境を整えております。
ベテランスタッフがトータルでサポートいたしますので住宅購入の事でしたら何なりと弊社にお任せください。