茨木市北春日丘2丁目の中古戸建
NEW 10.31掲載情報更新日:2025年10月31日 次回更新予定日:2025年11月14日
- 2,880万円
-
- 借入ご希望金額
万円 - 借入期間
年 - 借入金利
% - 月々のお支払い金額
円
- 借入ご希望金額
※ 月々のお支払例は目安の試算となりますので、実際の金額とは異なる場合がございます。詳しくは店舗までお問合わせください。
- 茨木市北春日丘2丁目
-
JR東海道線『茨木』 徒歩30分 (約2400m)
茨木市北春日丘2丁目一戸建て | 物件情報
リノベーション済み物件!薪ストーブ・ウッドデッキがあり自宅でキャンプ気分を味わえます!
物件の設備
- 電気
- 上水道
- 下水道
- 都市ガス
- 給湯
- 食品庫
- カウンターキッチン
- システムキッチン
- バス
- 浴室に窓
- トイレ
- 全居室6畳以上
物件の特徴
- 陽当り良好
- 2階建
- 角地
- 平坦地
- 即入居可
物件詳細情報
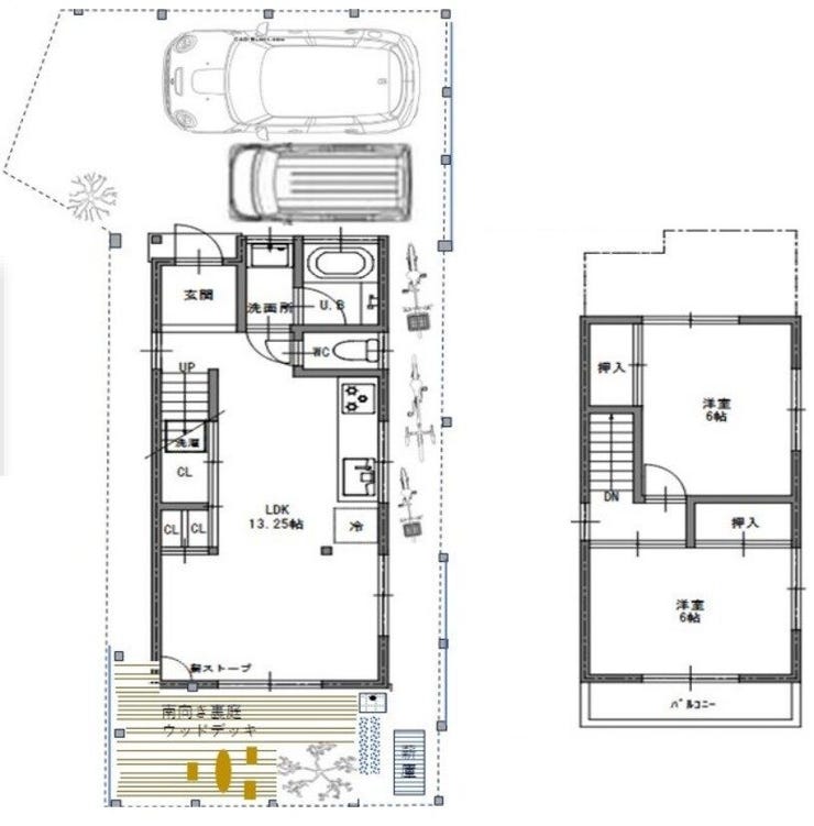
| 価格 | 2,880万円 | 間取り | 2LDK |
|---|---|---|---|
| 物件種別 | 中古一戸建て | ||
| 所在地 | 大阪府茨木市北春日丘2丁目4-16 | ||
| アクセス |
|
||
| 建物面積 | 58.37㎡ | 駐車場 | あり 普通:1台 軽:1台 |
| 築年月 | 1976年(昭和51年)05月築 | ||
| 建物構造 | 木造 2階建 | 工法 | |
| 主要採光 | 南向 | バルコニー | |
| 保証・評価 | |||
| リフォーム | |||
| 土地面積 | 公111.96㎡(33.86坪) | 接道 | 北側(公道)幅 約4.0m 間口 約4.00m 北西側(公道)幅 約4.0m 間口 約4.00m |
| 私道 | セットバック | ||
| 地目 | 宅地 | 地勢 | |
| 権利 | 所有権 |
||
| 都市計画 | 市街化区域 |
用途地域 | 1種低層 |
| 建ぺい/容積率 | 50% / 100% | 土地国土法 | |
| 許可番号 | 建築基準法 | ||
| 法令制限 | |||
| 小学区 | 中学区 | ||
| 現況 | 空 | 引渡 | 即 |
| その他費用 | |||
| 備考 | |||
| 物件番号 | 4470162 | 取引態様 | 媒介 |
取扱店舗情報
ハウスドゥ 高槻富田 株式会社コンフォート住宅販売 店舗詳細ページへ
| 電話番号 | 072-668-2246 |
|---|---|
| 所在地 | 〒569-0814 大阪府高槻市富田町3丁目15-15 |
| 営業時間 | 10:00~19:00 |
| 定休日 | 水曜日、年末年始 |
| 宅建免許番号 | 大阪府知事(2)第61490号 |
| アクセス | 店舗への地図はこちら |

来店ご予約
大阪府茨木市で価格が似ている物件はこちら
- 大阪府
マイページ物件数 - 15,199件
大阪府中古一戸建て新着物件
-
-

-
- 中古一戸建て
- 2,580万円
-
大阪市平野区平野本町4丁目
-
大阪市谷町線平野駅
-
-
-

-
- 中古一戸建て
- 2,798万円
-
東大阪市若江東町1丁目
-
近鉄難波・奈良線若江岩田駅
-
-
-

-
- 中古一戸建て
- 3,580万円
-
大阪市西成区梅南1丁目
-
大阪市四つ橋線花園町駅
-
-
-

-
- 中古一戸建て
- 1,280万円
-
枚方市長尾西町2丁目
-
JR片町線長尾駅
-
-
-

-
- 中古一戸建て
- 2,380万円
-
大阪市東住吉区湯里4丁目
-
近鉄南大阪線針中野駅
-
-
-

-
- 中古一戸建て
- 1,080万円
-
門真市下島町
-
京阪本線大和田駅
-
-
-

-
- 中古一戸建て
- 3,280万円
-
吹田市片山町4丁目
-
JR東海道線吹田駅
-
- お近くの店舗を探す
-
おすすめ物件
-
-

-
- 中古一戸建て
- 3,380万円
-
泉大津市曽根町2丁目
-
南海電鉄本線松ノ浜
-
-
-

-
- 中古一戸建て
- 1,880万円
-
岸和田市下池田町2丁目
-
JR阪和線久米田
-
-
-

-
- 中古一戸建て
- 2,280万円
-
泉大津市昭和町
-
南海電鉄本線泉大津
-
-
-

-
- 中古一戸建て
- 3,280万円
-
大阪市西成区鶴見橋2丁目
-
JR大阪環状線今宮
-
-
-

-
- 中古一戸建て
- 3,650万円
-
大阪市住吉区万代5丁目
-
南海電鉄高野線帝塚山
-
-
-

-
- 中古一戸建て
- 580万円
-
貝塚市橋本
-
JR阪和線和泉橋本
-
-
-

-
- 中古一戸建て
- 798万円
-
八尾市竹渕東1丁目
-
JR関西本線加美
-
-
-

-
- 中古一戸建て
- 2,980万円
-
大阪市住吉区山之内4丁目
-
JR阪和線杉本町
-
-
-

-
- 中古一戸建て
- 4,580万円
-
大阪市住之江区住之江1丁目
-
南海電鉄本線住ノ江
-
-
-

-
- 中古一戸建て
- 2,580万円
-
大阪市住吉区墨江3丁目
-
阪堺電気軌道阪堺線安立町
-







