東大阪市御厨中1丁目の中古戸建
掲載情報更新日:2026年02月27日 次回更新予定日:2026年03月13日
- 1,980万円
-
- 借入ご希望金額
万円 - 借入期間
年 - 借入金利
% - 月々のお支払い金額
円
- 借入ご希望金額
※ 月々のお支払例は目安の試算となりますので、実際の金額とは異なる場合がございます。詳しくは店舗までお問合わせください。
- 東大阪市御厨中1丁目
-
近鉄難波・奈良線『河内小阪』 徒歩13分 (約1010m)
近鉄難波・奈良線『八戸ノ里』 徒歩13分 (約990m)
近鉄難波・奈良線『河内永和』 徒歩21分 (約1630m)
東大阪市御厨中1丁目一戸建て | 物件情報
◎本日内覧可能◎~事務所利用向き×道路沿い~視認性良好
鉄筋コンクリート造のしっかりとした構造
道路沿いで視認性良好!事務所・店舗・倉庫など多用途に対応可能!
物件の特徴
- 2階建
物件詳細情報
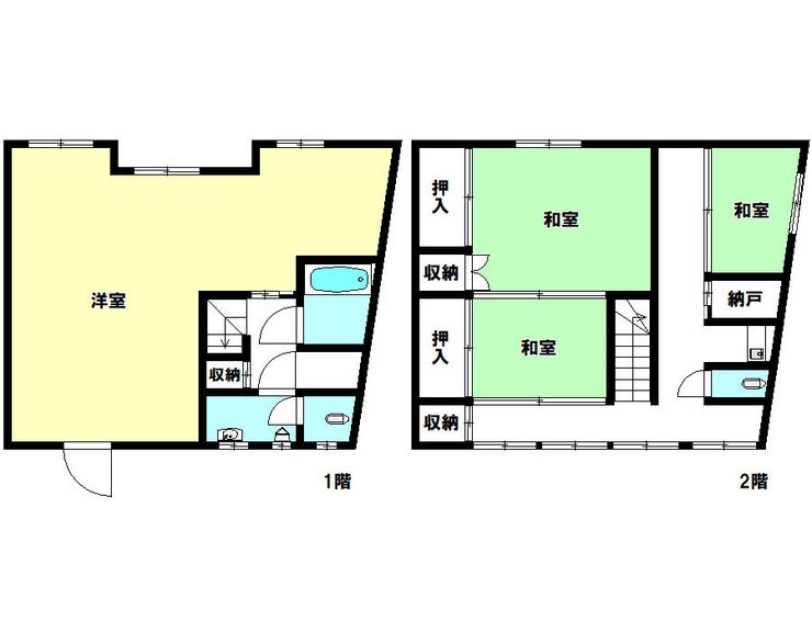
| 価格 | 1,980万円 | 間取り | 4K |
|---|---|---|---|
| 物件種別 | 中古一戸建て | ||
| 所在地 | 大阪府東大阪市御厨中1丁目 | ||
| アクセス |
|
||
| 建物面積 | 公115.96㎡ | 駐車場 | なし |
| 築年月 | 1963年(昭和38年)12月築 | ||
| 建物構造 | RC 2階建 | 工法 | |
| 主要採光 | バルコニー | ||
| 保証・評価 | |||
| リフォーム | |||
| 土地面積 | 公61.88㎡(18.71坪) | 接道 | |
| 私道 | セットバック | 無 | |
| 地目 | 宅地 | 地勢 | 平坦 |
| 権利 | 所有権 |
||
| 都市計画 | 市街化区域 |
用途地域 | 準工業 |
| 建ぺい/容積率 | 60% / 200% | 土地国土法 | 届出不要 |
| 許可番号 | 建築基準法 | ||
| 法令制限 | 準防火地域 | ||
| 小学区 | 藤戸小学校 徒歩9分 (約650m) | 中学区 | 新喜多中学校 徒歩17分 (約1340m) |
| 現況 | 空 | 引渡 | 相談 |
| その他費用 | |||
| 備考 | |||
| 物件番号 | 4471079 | 取引態様 | 媒介 |
取扱店舗情報
ハウスドゥ 東大阪中小阪 株式会社HouseNext 店舗詳細ページへ
| 電話番号 | 06-6720-8367 |
|---|---|
| 所在地 | 〒577-0804 大阪府東大阪市中小阪1丁目7-10-101 |
| 営業時間 | 9:00~18:00 |
| 定休日 | 年末年始(営業時間外でもご相談ください) |
| 宅建免許番号 | 大阪府知事(1)第66514号 |
| アクセス | 店舗への地図はこちら |

来店ご予約
大阪府東大阪市で価格が似ている物件はこちら
- 大阪府
マイページ物件数 - 17,779件
最近見た物件
-
-

-
- 中古一戸建て
- 2,300万円
-
鹿児島市明和1丁目
-
明和県営住宅前
-
大阪府中古一戸建て新着物件
-
-

-
- 中古一戸建て
- 3,180万円
-
大阪市城東区中浜3丁目
-
大阪市中央線緑橋駅
-
-
-

-
- 中古一戸建て
- 4,380万円
-
大阪市東淀川区北江口4丁目
-
大阪市今里筋線井高野駅
-
-
-

-
- 中古一戸建て
- 1,500万円
-
大阪市淀川区三津屋中2丁目
-
阪急電鉄神戸線神崎川駅
-
-
-

-
- 中古一戸建て
- 1,180万円
-
八尾市沼1丁目
-
JR関西本線柏原駅
-
-
-

-
- 中古一戸建て
- 2,380万円
-
大阪市住之江区安立3丁目
-
阪堺電気軌道阪堺線我孫子道駅
-
-
-

-
- 中古一戸建て
- 4,880万円
-
箕面市稲5丁目
-
北大阪急行南北線箕面船場阪大前駅
-
-
-

-
- 中古一戸建て
- 4,380万円
-
箕面市粟生新家3丁目
-
大阪モノレール彩都豊川駅
-
- お近くの店舗を探す
-
おすすめ物件
-
-

-
- 中古一戸建て
- 5,100万円
-
大阪市住之江区西加賀屋3丁目
-
大阪市四つ橋線北加賀屋
-
-
-

-
- 中古一戸建て
- 4,490万円
-
大阪市住吉区万代東2丁目
-
大阪市御堂筋線西田辺
-
-
-

-
- 中古一戸建て
- 999万円
-
高槻市津之江北町
-
JR東海道線高槻
-
-
-

-
- 中古一戸建て
- 2,780万円
-
東大阪市御厨栄町2丁目
-
近鉄難波・奈良線河内小阪
-
-
-

-
- 中古一戸建て
- 790万円
-
泉南郡熊取町山の手台3丁目
-
JR阪和線熊取
-
-
-

-
- 中古一戸建て
- 2,980万円
-
大阪市平野区平野東3丁目
-
大阪市谷町線平野
-
-
-

-
- 中古一戸建て
- 2,798万円
-
高槻市東五百住町3丁目
-
阪急電鉄京都線富田
-
-
-

-
- 中古一戸建て
- 490万円
-
大阪市住之江区御崎6丁目
-
大阪市四つ橋線住之江公園
-
-
-

-
- 中古一戸建て
- 2,320万円
-
高槻市赤大路町
-
JR東海道線摂津富田
-
-
-

-
- 中古一戸建て
- 3,598万円
-
高槻市富田町6丁目
-
阪急電鉄京都線茨木市
-












現況は古めですが、リノベーションでおしゃれなオフィス空間へとしていただけます。目の前の道路は交通量も多いです!