宮崎市曽師町の中古戸建
掲載情報更新日:2026年03月06日 次回更新予定日:2026年03月20日
- 3,400万円
-
- 借入ご希望金額
万円 - 借入期間
年 - 借入金利
% - 月々のお支払い金額
円
- 借入ご希望金額
※ 月々のお支払例は目安の試算となりますので、実際の金額とは異なる場合がございます。詳しくは店舗までお問合わせください。
- 宮崎市曽師町
-
JR日豊本線『宮崎』 徒歩18分 (約1420m)
JR日豊本線『南宮崎』 徒歩38分 (約3010m)
JR日豊本線『宮崎神宮』 徒歩50分 (約3950m)
宮崎交通
宮崎市曽師町一戸建て | 物件情報
制震ダンパー搭載・耐震等級3取得。 オール電化仕様の曽師町中古戸建。
◆ 制震ダンパー搭載の住宅
地震の揺れを吸収する制震ダンパーを採用した住宅です。
◆ 耐震等級3取得
住宅性能表示制度の耐震等級3を取得している建物です。
◆ オール電化住宅
火を使わない設備のため、安全面や光熱費管理のしやすさが期待できます。
◆ JR宮崎駅 徒歩約18分
通勤・通学やお出かけの際にも利用しやすい距離です。
◆ 空家のため内覧可能
現在空家のため、日程調整により室内のご見学が可能です。
物件の設備
- オール電化
- 公営水道
- 公共下水
- 給湯
- 浄水器
- IHクッキングヒータ
- カウンターキッチン
- システムキッチン
- バス
- オートバス
- バス1坪以上
- 追焚機能
- 浴室乾燥機
- 浴室に窓
- トイレ
- トイレ2箇所
- 温水洗浄便座
- 室内洗濯機置場
- 洗髪洗面化粧台
- リビング階段
- 省エネ給湯器
- モニタ付インターホン
- LDK15畳以上
- 和室
- 複層ガラス
- フローリング
- ウォークインクローゼット
- 床下収納
- 全居室収納
- 庭
- 庭10坪以上
物件の特徴
- 南向
- 高気密高断熱住宅
- 駅まで平坦
- 閑静な住宅街
- 市街地が近い
- 通風良好
- 陽当り良好
- 2階建
- 平坦地
- 整形地
- 建設住宅性能評価付
- 設計住宅性能評価付
- 建築確認完了検査済証
- フラット35
- S適合証明書
- 新築
- 増改築設計図書
- 即入居可
- フラット35Sに対応
物件詳細情報
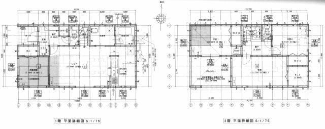
| 価格 | 3,400万円 | 間取り | 4LDK |
|---|---|---|---|
| 物件種別 | 中古一戸建て | ||
| 所在地 | 宮崎県宮崎市曽師町 | ||
| アクセス |
|
||
| 建物面積 | 公98.82㎡ | 駐車場 | あり 普通:3台 |
| 築年月 | 2023年(令和5年)09月築 | ||
| 建物構造 | 木造 2階建 | 工法 | |
| 主要採光 | バルコニー | ||
| 保証・評価 | フラット35S適合証明書・設計住宅性能評価書・建設住宅性能評価書(新築時) |
||
| リフォーム | |||
| 土地面積 | 公197.92㎡(59.87坪) | 接道 | 西側(公道)幅 約4.0m |
| 私道 | セットバック | ||
| 地目 | 宅地 | 地勢 | 平坦 |
| 権利 | 所有権 |
||
| 都市計画 | 市街化区域 |
用途地域 | 1種低層 |
| 建ぺい/容積率 | 60% / 100% | 土地国土法 | |
| 許可番号 | 建築基準法 | ||
| 法令制限 | |||
| 小学区 | 宮崎港小学校 徒歩20分 (約1530m) | 中学区 | 宮崎中学校 徒歩14分 (約1060m) |
| 現況 | 空 | 引渡 | 即 |
| その他費用 | |||
| 周辺環境 | コスモス 曽師店 徒歩5分 (約390m) 宮崎学園中学校 徒歩8分 (約630m) セブンイレブン 宮崎一の宮町店 徒歩11分 (約810m) セブンイレブン 宮崎総合体育館前 徒歩11分 (約850m) コープみやざき 宮脇店 徒歩14分 (約1050m) マルイチ 一の宮店 徒歩12分 (約930m) WASHハウス 堀川店 徒歩12分 (約900m) セブンイレブン 宮崎堀川町 徒歩12分 (約900m) 潮見小学校 徒歩13分 (約1000m) WASHハウス 宮崎中西店 徒歩12分 (約910m) |
||
| 備考 | 地震の揺れを吸収する制震ダンパー搭載の耐震等級3取得、オール電化の中古住宅☆ | ||
| 物件番号 | 4471702 | 取引態様 | 媒介 |
取扱店舗情報
| 電話番号 | 0985-86-7336 |
|---|---|
| 所在地 | 〒889-1607 宮崎県宮崎市清武町加納3丁目16 メモワールII101号室 |
| 営業時間 | 9:00~20:00 |
| 定休日 | 不定休 |
| 宅建免許番号 | 宮崎県知事(1)第4995号 |
| アクセス | 店舗への地図はこちら |

来店ご予約
宮崎県宮崎市で価格が似ている物件はこちら
- 宮崎県
マイページ物件数 - 1,586件
最近見た物件
-
-

-
- 土地
- 290万円
-
足利市川崎町
-
JR両毛線あしかがフラワパーク
-
宮崎県中古一戸建て新着物件
-
-

-
- 中古一戸建て
- 2,300万円
-
宮崎市月見ケ丘2丁目
-
JR日豊本線南宮崎駅
-
-
-

-
- 中古一戸建て
- 500万円
-
宮崎市佐土原町上田島
-
JR日豊本線佐土原駅
-
-
-

-
- 中古一戸建て
- 980万円
-
宮崎市大字本郷北方
-
JR宮崎空港線宮崎空港駅
-
-
-

-
- 中古一戸建て
- 2,500万円
-
宮崎市大島町馬場尻
-
JR日豊本線宮崎神宮駅
-
-
-

-
- 中古一戸建て
- 2,700万円
-
宮崎市出来島町
-
JR日豊本線宮崎駅
-
-
-

-
- 中古一戸建て
- 1,580万円
-
宮崎市佐土原町下田島
-
JR日豊本線佐土原駅
-
-
-

-
- 中古一戸建て
- 1,680万円
-
宮崎市高岡町五町
-
JR日豊本線宮崎神宮駅
-
- お近くの店舗を探す
-
おすすめ物件
-
-

-
- 中古一戸建て
- 700万円
-
日南市南郷町中村乙
-
JR日南線南郷
-
-
-

-
- 中古一戸建て
- 1,400万円
-
宮崎市堀川町
-
JR日豊本線宮崎
-
-
-

-
- 中古一戸建て
- 1,600万円
-
日南市時任町
-
JR日南線飫肥
-
-
-

-
- 中古一戸建て
- 2,000万円
-
宮崎市江南2丁目
-
JR日豊本線南宮崎
-
-
-

-
- 中古一戸建て
- 1,990万円
-
宮崎市吉村町曽師前
-
JR日豊本線宮崎
-
-
-

-
- 中古一戸建て
- 1,250万円
-
宮崎市清武町今泉丙
-
JR日豊本線清武
-
-
-

-
- 中古一戸建て
- 1,150万円
-
宮崎市大字本郷北方
-
JR日南線田吉
-
-
-

-
- 中古一戸建て
- 2,300万円
-
宮崎市学園木花台南3丁目
-
JR日南線木花
-
-
-

-
- 中古一戸建て
- 900万円
-
宮崎市清武町加納甲
-
JR日豊本線清武
-
-
-

-
- 中古一戸建て
- 2,900万円
-
宮崎市田野町乙
-
JR日豊本線田野
-





















担当エージェント:小玉 賢太
制震ダンパーを備えた耐震等級3取得の中古戸建です。
オール電化仕様の住宅です。
JR宮崎駅まで徒歩約18分の立地です。
現在空家のためご内覧いただけます。
ぜひお気軽にお問い合わせください。