駿東郡長泉町中土狩の中古戸建
NEW 11.14掲載情報更新日:2025年11月14日 次回更新予定日:2025年11月28日
- 1億3,800万円
-
- 借入ご希望金額
万円 - 借入期間
年 - 借入金利
% - 月々のお支払い金額
円
- 借入ご希望金額
※ 月々のお支払例は目安の試算となりますので、実際の金額とは異なる場合がございます。詳しくは店舗までお問合わせください。
- 駿東郡長泉町中土狩
-
JR東海道本線『三島』 徒歩16分 (約1280m)
駿東郡長泉町中土狩一戸建て | 物件情報
頭金なし諸経費込40.5万円/月でご購入可能!将来の負担を抑えた無理のない住宅ローンを提案いたします
【プラス月1.8万円でオーダーメイドの内装に】
当店でご内見いただくメリットは、リノベーションに精通した担当者がその場で価格提案ができ、ご要望をしっかりと受け止めます。 リノベーションのテイストは、ホテルライク・北欧風・西海岸風・アメリカンスタイルなど、多様なお客さまの理想を実現いたします。 またご購入後も5年、10年先の外壁塗装やシロアリ予防、小規模・大規模な修繕、台風や大雨による火災保険を活用したリフォームにも迅速対応が可能です。 物件のご購入から資金計画、おしゃれでこだわりのリノベーション、火災保険まで、ワンストップでご提供いたします。 ご購入後のお客さまを、全力でサポートさせていただくことをお約束いたします。
【資金計画に絶対の自信があります!】
当社は住宅ローンに強い不動産会社です。多くの「家を持ちたい」というご要望を叶えてきました。
◆頭金がないけど買えるの?
◆借金があるけど買えるの?
◆滞納歴があるけど買えるの?
◆シングルマザーでも買えるの?
◆外国人でも買えるの?
◆収入が低くても買えるの?
物件の設備
- 電気
- 上水道
- 公営水道
- 浄化槽
- 給湯
- 食品庫
- IHクッキングヒータ
- コンロ三口
- グリル
- システムキッチン
- アイランドキッチン
- バス
- ユニットバス
- バス1坪以上
- 追焚機能
- 浴室に窓
- トイレ
- トイレ2箇所
- 温水洗浄便座
- タンクレストイレ
- 室内洗濯機置場
- 洗面所独立
- エアコン
- 全室エアコン
- ダウンライト
- モニタ付インターホン
- 防犯カメラ
- 火災警報器/報知機
- LDK15畳以上
- LDK18畳以上
- LDK20畳以上
- 和室
- 2面採光
- 吹抜
- フローリング
- 電動シャッター
- クローゼット
- クローゼット2箇所
- ウォークインクローゼット
- シューズボックス
物件の特徴
- 24時間セキュリティ
- 耐震構造
- 陽当り良好
- 2階建
- 外装コンクリート打
- バリアフリー
- 新築
- 増改築設計図書
物件詳細情報
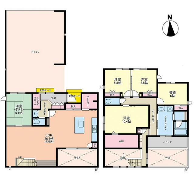
| 価格 | 1億3,800万円 | 間取り | 5LDK |
|---|---|---|---|
| 物件種別 | 中古一戸建て | ||
| 所在地 | 静岡県駿東郡長泉町中土狩 | ||
| アクセス |
|
||
| 建物面積 | 公228.16㎡ | 駐車場 | あり 普通:3台 |
| 築年月 | 2020年(令和2年)12月築 | ||
| 建物構造 | 鉄骨 2階建 | 工法 | |
| 主要採光 | 南向 | バルコニー | |
| 保証・評価 | |||
| リフォーム | |||
| 土地面積 | 公277.68㎡(83.99坪) | 接道 | 北側(公道)幅 約3.8m 間口 約13.00m |
| 私道 | セットバック | ||
| 地目 | 宅地 | 地勢 | 平坦 |
| 権利 | 所有権 |
||
| 都市計画 | 市街化区域 |
用途地域 | 準工業 |
| 建ぺい/容積率 | 60% / 200% | 土地国土法 | |
| 許可番号 | 建築基準法 | ||
| 法令制限 | |||
| 小学区 | 長泉小学校 徒歩15分 (約1147m) | 中学区 | 長泉中学校 徒歩12分 (約936m) |
| 現況 | 居住中 | 引渡 | 期日指定:2026年03月以降 |
| その他費用 | |||
| 備考 | |||
| 物件番号 | 4488414 | 取引態様 | 媒介 |
取扱店舗情報
ハウスドゥ 沼津香貫 株式会社東静プランニング 店舗詳細ページへ
| 電話番号 | 055-935-6102 |
|---|---|
| 所在地 | 〒410-0836 静岡県沼津市吉田町38-4 |
| 営業時間 | 10:00~19:00 |
| 定休日 | 水曜日、第一火曜日、年末年始 |
| 宅建免許番号 | 国土交通大臣(1)第10183号 |
| アクセス | 店舗への地図はこちら |

来店ご予約
- 静岡県
マイページ物件数 - 2,806件
最近見た物件
-
-

-
- 中古一戸建て
- 650万円
-
小松島市和田島町字遠見
-
和田島バス停
-
静岡県中古一戸建て新着物件
-
-

-
- 中古一戸建て
- 380万円
-
掛川市西大渕
-
秋葉バスサービス「東番町」停
-
-
-

-
- 中古一戸建て
- 2,350万円
-
沼津市我入道一本松町
-
JR東海道本線沼津駅
-
-
-

-
- 中古一戸建て
- 2,590万円
-
静岡市駿河区池田
-
JR東海道本線東静岡駅
-
-
-

-
- 中古一戸建て
- 5,650万円
-
静岡市葵区西千代田町
-
静岡鉄道静岡清水線新静岡駅
-
-
-

-
- 中古一戸建て
- 2,880万円
-
伊豆の国市天野
-
伊豆箱根鉄道駿豆線伊豆長岡駅
-
-
-

-
- 中古一戸建て
- 2,380万円
-
沼津市西熊堂
-
JR東海道本線沼津駅
-
-
-

-
- 中古一戸建て
- 2,880万円
-
裾野市富沢
-
JR御殿場線裾野駅
-
- お近くの店舗を探す
-
おすすめ物件
-
-

-
- 中古一戸建て
- 2,150万円
-
藤枝市清里2丁目
-
JR東海道本線西焼津
-
-
-

-
- 中古一戸建て
- 2,499万円
-
静岡市葵区羽鳥5丁目
-
JR東海道本線静岡
-
-
-

-
- 中古一戸建て
- 3,400万円
-
裾野市富沢
-
JR御殿場線裾野
-
-
-

-
- 中古一戸建て
- 2,150万円
-
静岡市葵区建穂1丁目
-
JR東海道本線静岡
-
-
-

-
- 中古一戸建て
- 700万円
-
駿東郡長泉町中土狩
-
JR御殿場線下土狩
-
-
-

-
- 中古一戸建て
- 1,499万円
-
沼津市下香貫木ノ宮
-
JR東海道本線沼津
-
-
-

-
- 中古一戸建て
- 1,979万円
-
藤枝市瀬古3丁目
-
JR東海道本線藤枝
-
-
-

-
- 中古一戸建て
- 3,780万円
-
袋井市栄町
-
JR東海道本線袋井
-
-
-

-
- 中古一戸建て
- 2,900万円
-
浜松市中央区早出町
-
遠州鉄道上島
-
-
-

-
- 中古一戸建て
- 880万円
-
駿東郡清水町徳倉
-
JR東海道本線沼津
-
















住宅ローンにまつわるご不安やお悩みは全てご相談下さい。 当店では毎日21時まで無料相談会を実施していますので、お仕事帰りなどにご利用いただけたらと思います。 フリーダイヤル0120-722-778かLINEでご予約ください。経験豊富なスタッフが、安心して住まいの購入を進めていただけるよう、資金計画から強力にサポートいたします。
【当店のできること】
・物件の選定・周辺環境・資産性の評価
・物件の価格や近隣相場の調査
・建築分野におけるアドバイス
・役所調査・物件調査
・管理規約の確認(区分所有マンションの場合)
・重要事項説明書の作成・事前説明
・住宅ローンの事前審査・アドバイス・斡旋
・インスペクション業者の紹介
・リフォーム・リノベーション・修繕のアドバイス
・内覧時におけるリフォーム費用のご提示
・金消契約の立会い
・お引渡後のトラブルのお手伝い
【当店のできないことです】
・しつこい営業はできません
・強引な営業もできません
・売りたいがための嘘もつけません
・エージェントの意見を押し付けることもできません