和歌山市関戸5丁目の中古戸建
NEW 11.27掲載情報更新日:2025年11月27日 次回更新予定日:2025年12月11日
- 980万円
-
- 借入ご希望金額
万円 - 借入期間
年 - 借入金利
% - 月々のお支払い金額
円
- 借入ご希望金額
※ 月々のお支払例は目安の試算となりますので、実際の金額とは異なる場合がございます。詳しくは店舗までお問合わせください。
- 和歌山市関戸5丁目
-
JR紀勢本線『紀三井寺』 徒歩45分 (約3600m)
JR紀勢本線『宮前』 徒歩59分 (約4700m)
和歌山バス『大浦口』 徒歩7分 (約560m)
和歌山市関戸5丁目一戸建て | 物件情報
月々2.6万円~ 即内見可!
☆月々2.6万円~
☆陽当たり良好!
☆駐車場あり
☆周辺にスーパー、コンビニ、ドラッグストアあり
■備考
室内・水廻りリフォーム実施されています
【内覧会開催中】
本日ご案内可能な場合もございます。
複数件併せてご内見も可能♪
他の掲載物件もまとめてご内見頂けます。気になる物件をお教え下さい。
☆立地のポイント
【紀三井寺駅】徒歩約45分
【宮前駅】徒歩約59分
【和歌山バス/大浦口】徒歩約7分
物件の設備
- 電気
- オール電化
- 上水道
- 浄化槽
物件の特徴
- 2階建
物件詳細情報
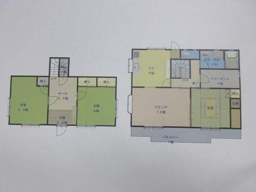
| 価格 | 980万円 | 間取り | 4DK |
|---|---|---|---|
| 物件種別 | 中古一戸建て | ||
| 所在地 | 和歌山県和歌山市関戸5丁目 | ||
| アクセス |
|
||
| 建物面積 | 145.79㎡ | 駐車場 | あり |
| 築年月 | 1981年(昭和56年)07月築 | ||
| 建物構造 | 鉄骨 2階建 | 工法 | |
| 主要採光 | バルコニー | ||
| 保証・評価 | |||
| リフォーム | |||
| 土地面積 | 公219.43㎡(66.37坪) | 接道 | 北側(私道)幅 約5.0m 間口 約14.60m |
| 私道 | セットバック | 無 | |
| 地目 | 宅地 | 地勢 | 高台 |
| 権利 | 所有権 |
||
| 都市計画 | 市街化区域 |
用途地域 | 1種低層 |
| 建ぺい/容積率 | 50% / 100% | 土地国土法 | |
| 許可番号 | 建築基準法 | ||
| 法令制限 | |||
| 小学区 | 雑賀小学校 徒歩14分 (約1100m) | 中学区 | 西浜中学校 徒歩23分 (約1800m) |
| 現況 | 空 | 引渡 | 相談 |
| その他費用 | |||
| 備考 | |||
| 物件番号 | 4503331 | 取引態様 | 媒介 |
取扱店舗情報
| 電話番号 | 050-5805-9447 |
|---|---|
| 所在地 | 〒536-0006 大阪府大阪市城東区野江4丁目10-13 クリエイト野江内代1F |
| 営業時間 | 10:00~19:00 |
| 定休日 | なし |
| 宅建免許番号 | 国土交通大臣(1)第10706号 |
| アクセス | 店舗への地図はこちら |

来店ご予約
和歌山県和歌山市で価格が似ている物件はこちら
![]()
![]()
-
- 中古一戸建て 2023.10.03
-
-
- 980万円
-
和歌山市直川
-
JR阪和線「六十谷駅」まで徒歩30分
- 4LDK+S
-
-
- 中古一戸建て 2024.03.14
-
-
- 880万円
-
和歌山市梅原
-
南海電気鉄道加太線「中松江駅」まで徒歩20分
- 4LDK
-
-
- 中古一戸建て 2024.04.21
-
-
- 999万円
-
和歌山市岩橋
-
JR和歌山線「田井ノ瀬駅」まで徒歩29分
- 4DK
-
-
- 中古一戸建て 2024.07.25
-
-
- 890万円
-
和歌山市北休賀町
-
JR阪和線「和歌山駅」まで徒歩15分
- 5LDK
-
-
- 中古一戸建て 2024.09.01
-
-
- 980万円
-
和歌山市西庄
-
南海電気鉄道加太線「西ノ庄駅」まで徒歩3分
- 3LDK
-
-
- 中古一戸建て 2024.09.13
-
-
- 880万円
-
和歌山市鳴神
-
和歌山電鐵貴志川線「日前宮駅」まで徒歩24分
- 4DK+S
-
-
- 中古一戸建て 2024.09.22
-
-
- 999万円
-
和歌山市岩橋
-
和歌山バス花山停まで徒歩2分
- 4DK
-
-
- 中古一戸建て 2024.10.22
-
-
- 880万円
-
和歌山市市小路
-
南海電鉄本線「紀ノ川駅」まで徒歩4分
- 4DK
-
-
- 中古一戸建て 2024.11.02
-
-
- 980万円
-
和歌山市西浜3丁目
-
南海電鉄和歌山港線「和歌山港駅」まで徒歩38分
- 4LDK+S
-
-
- 中古一戸建て 2024.11.20
-
-
- 987.20万円
-
和歌山市三葛
-
JR紀勢本線「紀三井寺駅」まで徒歩11分
- 6K
-
-
- 中古一戸建て 2024.12.02
-
-
- 890万円
-
和歌山市北休賀町
-
JR和歌山線「和歌山駅」まで徒歩17分
- 5LDK+S
-
-
- 中古一戸建て 2024.12.07
-
-
- 987.20万円
-
和歌山市三葛
-
JR紀勢本線「紀三井寺駅」まで徒歩13分
- 6K
-
-
- 中古一戸建て 2024.12.13
-
-
- 887万円
-
和歌山市井辺
-
和歌山電鐵貴志川線「神前駅」まで徒歩12分
- 5DK
-
-
- 中古一戸建て 2024.12.15
-
-
- 980万円
-
和歌山市木ノ本
-
南海電気鉄道加太線「八幡前駅」まで徒歩12分
- 3LDK
-
-
- 中古一戸建て 2024.12.23
-
-
- 880万円
-
和歌山市梅原
-
南海電気鉄道加太線「中松江駅」まで徒歩17分
- 4LDK
-
-
- 中古一戸建て 2024.12.25
-
-
- 980万円
-
和歌山市直川
-
JR阪和線「六十谷駅」まで徒歩23分
- 4LDK+S
-
-
- 中古一戸建て 2025.01.20
-
-
- 1,050万円
-
和歌山市古屋
-
南海電気鉄道加太線「八幡前駅」まで徒歩8分
- 8DK+S
-
-
- 中古一戸建て 2025.01.24
-
-
- 980万円
-
和歌山市西庄
-
南海電気鉄道加太線「西ノ庄駅」まで徒歩6分
- 3LDK
-
-
- 中古一戸建て 2025.01.31
-
-
- 980万円
-
和歌山市野崎
-
南海電鉄本線「紀ノ川駅」まで徒歩19分
- 5LDK
-
-
- 中古一戸建て 2025.02.09
-
-
- 950万円
-
和歌山市延時
-
南海電気鉄道加太線「東松江駅」まで徒歩15分
- 4DK
-
-
- 中古一戸建て 2025.02.09
-
-
- 950万円
-
和歌山市延時
-
南海電気鉄道加太線「東松江駅」まで徒歩15分
- 4DK
-
-
- 中古一戸建て 2025.02.11
-
-
- 880万円
-
和歌山市和歌浦東2丁目
-
JR紀勢本線「紀三井寺駅」まで徒歩25分
- 4LDK
-
-
- 中古一戸建て 2025.02.21
-
-
- 998万円
-
和歌山市大谷
-
JR阪和線「六十谷駅」まで徒歩39分
- 5DK
-
-
- 中古一戸建て 2025.02.23
-
-
- 998万円
-
和歌山市大谷
-
南海電鉄本線「紀ノ川駅」まで徒歩30分
- 5DK+S
-
-
- 中古一戸建て 2025.02.23
-
-
- 880万円
-
和歌山市市小路
-
南海電鉄本線「紀ノ川駅」まで徒歩6分
- 4DK
-
-
- 中古一戸建て 2025.03.02
-
-
- 900万円
-
和歌山市吉礼
-
和歌山電鐵貴志川線「吉礼駅」まで徒歩8分
- 4DK
-
-
- 中古一戸建て 2025.03.02
-
-
- 980万円
-
和歌山市木広町2丁目
-
和歌山電鐵貴志川線「田中口駅」まで徒歩10分
- 4LDK
-
-
- 中古一戸建て 2025.03.16
-
-
- 980万円
-
和歌山市粟
-
南海電鉄本線「紀ノ川駅」まで徒歩22分
- 4LDK
-
-
- 中古一戸建て 2025.03.20
-
-
- 980万円
-
和歌山市島橋北ノ丁
-
南海電気鉄道加太線「東松江駅」まで徒歩9分
- 2LDK+S
-
-
- 中古一戸建て 2025.04.04
-
-
- 1,080万円
-
和歌山市楠本
-
JR阪和線「紀伊駅」まで徒歩29分
- 4LDK
-
-
- 中古一戸建て 2025.04.04
-
-
- 880万円
-
和歌山市六十谷
-
JR阪和線「六十谷駅」まで徒歩15分
- 6LDK
-
-
- 中古一戸建て 2025.04.05
-
-
- 880万円
-
和歌山市直川
-
JR阪和線「六十谷駅」まで徒歩23分
- 5LDK
-
-
- 中古一戸建て 2025.04.06
-
-
- 980万円
-
和歌山市粟
-
南海電鉄本線「紀ノ川駅」まで徒歩19分
- 4LDK
-
-
- 中古一戸建て 2025.04.13
-
-
- 980万円
-
和歌山市島橋北ノ丁
-
南海電気鉄道加太線「東松江駅」まで徒歩9分
- 3LDK
-
-
- 中古一戸建て 2025.05.01
-
-
- 980万円
-
和歌山市西庄
-
南海電気鉄道加太線「西ノ庄駅」まで徒歩12分
- 4LDK
-
-
- 中古一戸建て 2025.05.09
-
-
- 990万円
-
和歌山市古屋
-
南海電気鉄道加太線「八幡前駅」まで徒歩5分
- 4LDK
-
-
- 中古一戸建て 2025.05.12
-
-
- 1,080万円
-
和歌山市毛見
-
和歌山バス浜の宮まで徒歩5分
- 5LDK+S
-
-
- 中古一戸建て 2025.05.18
-
-
- 1,080万円
-
和歌山市弘西
-
JR阪和線「紀伊駅」まで徒歩9分
- 4LDK+S
-
-
- 中古一戸建て 2025.05.18
-
-
- 1,080万円
-
和歌山市弘西
-
JR阪和線「紀伊駅」まで徒歩14分
- 4LDK+S
-
-
- 中古一戸建て 2025.06.13
-
-
- 950万円
-
和歌山市市小路
-
南海電鉄本線「紀ノ川駅」まで徒歩9分
- 3LDK
-
-
- 中古一戸建て 2025.06.14
-
-
- 950万円
-
和歌山市市小路
-
南海電鉄本線「紀ノ川駅」まで徒歩9分
- 3LDK
-
-
- 中古一戸建て 2025.07.13
-
-
- 980万円
-
和歌山市杭ノ瀬
-
JR紀勢本線「宮前駅」まで徒歩10分
- 5DK
-
-
- 中古一戸建て 2025.07.13
-
-
- 1,050万円
-
和歌山市秋月
-
和歌山電鐵貴志川線「日前宮駅」
- 3LDK
-
-
- 中古一戸建て 2025.08.08
-
-
- 1,080万円
-
和歌山市毛見
-
JR紀勢本線「黒江駅」まで徒歩34分
- 5DK
-
-
- 中古一戸建て 2025.08.28
-
-
- 930万円
-
和歌山市西高松2丁目
-
JR紀勢本線「宮前駅」まで徒歩34分
- 4DK
-
-
- 中古一戸建て 2025.09.25
-
-
- 980万円
-
和歌山市塩屋1丁目
-
JR紀勢本線「宮前駅」まで徒歩25分
- 4DK+S
-
-
- 中古一戸建て 2025.10.04
-
-
- 950万円
-
和歌山市市小路
-
南海電鉄本線「紀ノ川駅」まで徒歩9分
- 3LDK
-
-
- 中古一戸建て 2025.10.04
-
-
- 1,030万円
-
和歌山市西庄
-
南海電気鉄道加太線「西ノ庄駅」まで徒歩13分
- 4LDK
-
-
- 中古一戸建て 2025.10.05
-
-
- 980万円
-
和歌山市杭ノ瀬
-
JR紀勢本線「宮前駅」まで徒歩10分
- 5DK
-
-
- 中古一戸建て 2025.10.09
-
-
- 980万円
-
和歌山市和歌浦東2丁目
-
JR紀勢本線「紀三井寺駅」まで徒歩24分
- 6DK
-
-
- 中古一戸建て 2025.10.11
-
-
- 1,080万円
-
和歌山市善明寺
-
南海電鉄本線「紀ノ川駅」まで徒歩32分
- 4LDK
-
-
- 中古一戸建て 2025.10.19
-
-
- 880万円
-
和歌山市畑屋敷新道丁
-
JR紀勢本線「紀和駅」まで徒歩15分
- 3LDK
-
-
- 中古一戸建て 2025.10.19
-
-
- 999万円
-
和歌山市岩橋
-
JR和歌山線「田井ノ瀬駅」まで徒歩25分
- 4DK
-
-
- 中古一戸建て 2025.10.24
-
-
- 980万円
-
和歌山市野崎
-
南海電気鉄道加太線「東松江駅」まで徒歩20分
- 3LDK
-
-
- 中古一戸建て 2025.10.26
-
-
- 1,050万円
-
和歌山市古屋
-
南海電気鉄道加太線「八幡前駅」まで徒歩8分
- 8DK
-
-
-
中古一戸建て
2025.11.01
-
-
- 980万円
-
和歌山市大谷
-
南海電鉄本線「紀ノ川駅」まで徒歩27分
- 3LDK
-
-
中古一戸建て
2025.11.01
-
-
中古一戸建て
2025.11.02
-
-
- 1,000万円
-
和歌山市小雑賀
-
JR紀勢本線「紀三井寺駅」まで徒歩22分
- 5LDK+S
-
-
中古一戸建て
2025.11.02
-
-
中古一戸建て
2025.11.23
-
-
- 880万円
-
和歌山市直川
-
JR阪和線「六十谷駅」まで徒歩19分
- 5DK+S
-
-
中古一戸建て
2025.11.23
- 和歌山県
マイページ物件数 - 1,327件
最近見た物件
-
-

-
- 中古一戸建て
- 2,900万円
-
宮崎市清武町加納乙
-
追分
-
-
-

-
- 中古一戸建て
- 700万円
-
宮崎市下北方町観音免
-
JR日豊本線宮崎神宮
-
和歌山県中古一戸建て新着物件
- お近くの店舗を探す
-
おすすめ物件
-
-

-
- 中古一戸建て
- 2,100万円
-
和歌山市中筋日延
-
和歌山バス池の川
-
-
-

-
- 中古一戸建て
- 398万円
-
和歌山市神波
-
JR阪和線紀伊
-
-
-

-
- 中古一戸建て
- 2,780万円
-
和歌山市栄谷
-
南海電鉄本線和歌山大学前
-
-
-

-
- 中古一戸建て
- 2,100万円
-
和歌山市中筋日延
-
JR阪和線紀伊
-
-
-

-
- 中古一戸建て
- 450万円
-
和歌山市関戸2丁目
-
JR紀勢本線紀三井寺
-
-
-

-
- 中古一戸建て
- 890万円
-
和歌山市北休賀町
-
JR和歌山線和歌山
-
-
-

-
- 中古一戸建て
- 2,980万円
-
和歌山市栄谷
-
南海電鉄本線紀ノ川
-
-
-

-
- 中古一戸建て
- 3,300万円
-
和歌山市小倉
-
JR和歌山線紀伊小倉
-
-
-

-
- 中古一戸建て
- 1,900万円
-
和歌山市船所
-
南海電鉄本線紀ノ川
-
-
-

-
- 中古一戸建て
- 2,780万円
-
和歌山市松島
-
JR阪和線紀伊中ノ島
-















担当エージェント:尾関 親代
落ち着いた住環境でファミリー層にも単身者にも◎♪
住宅ローン相談会開催中です!
ぜひお気軽にお問い合わせください!