和歌山市湊北町1丁目の中古戸建
NEW 11.27掲載情報更新日:2025年11月27日 次回更新予定日:2025年12月11日
- 1,580万円
-
- 借入ご希望金額
万円 - 借入期間
年 - 借入金利
% - 月々のお支払い金額
円
- 借入ご希望金額
※ 月々のお支払例は目安の試算となりますので、実際の金額とは異なる場合がございます。詳しくは店舗までお問合わせください。
- 和歌山市湊北町1丁目
-
南海電鉄和歌山港線『和歌山市』 徒歩7分 (約500m)
JR紀勢本線『紀和』 徒歩28分 (約2200m)
南海電鉄和歌山港線『和歌山港』 徒歩37分 (約2900m)
和歌山市湊北町1丁目一戸建て | 物件情報
月々4.2万円~ 即内見可!
☆月々4.2万円~
☆陽当たり良好!
☆閑静な住宅街
☆駐車場あり
☆近隣に学校、幼稚園、保育園、公園あり
☆スーパー・ドラッグストア・コンビニ・郵便局が揃う便利な立地
【内覧会開催中】
本日ご案内可能な場合もございます。
複数件併せてご内見も可能♪
他の掲載物件もまとめてご内見頂けます。気になる物件をお教え下さい。
☆立地のポイント
【和歌山市駅】徒歩約7分
【紀和駅】徒歩約28分
【和歌山港駅】徒歩約37分
物件の設備
- 電気
- 上水道
- 下水道
- 都市ガス
物件の特徴
- 前道6m以上
- 2階建
物件詳細情報
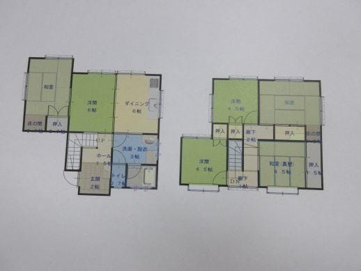
| 価格 | 1,580万円 | 間取り | 6DK |
|---|---|---|---|
| 物件種別 | 中古一戸建て | ||
| 所在地 | 和歌山県和歌山市湊北町1丁目 | ||
| アクセス |
|
||
| 建物面積 | 83.83㎡ | 駐車場 | あり |
| 築年月 | 1971年(昭和46年)11月築 | ||
| 建物構造 | 木造 2階建 | 工法 | |
| 主要採光 | バルコニー | ||
| 保証・評価 | |||
| リフォーム | |||
| 土地面積 | 公98.03㎡(29.65坪) | 接道 | 北側(公道)幅 約8.0m 間口 約8.90m |
| 私道 | セットバック | 無 | |
| 地目 | 宅地 | 地勢 | 平坦 |
| 権利 | 所有権 |
||
| 都市計画 | 市街化区域 |
用途地域 | 2種中高 |
| 建ぺい/容積率 | 60% / 200% | 土地国土法 | |
| 許可番号 | 建築基準法 | ||
| 法令制限 | |||
| 小学区 | 伏虎義務教育学校 徒歩10分 (約750m) | 中学区 | 伏虎義務教育学校 徒歩10分 (約750m) |
| 現況 | 空 | 引渡 | 相談 |
| その他費用 | |||
| 備考 | |||
| 物件番号 | 4503332 | 取引態様 | 媒介 |
取扱店舗情報
| 電話番号 | 050-5805-9447 |
|---|---|
| 所在地 | 〒536-0006 大阪府大阪市城東区野江4丁目10-13 クリエイト野江内代1F |
| 営業時間 | 10:00~19:00 |
| 定休日 | なし |
| 宅建免許番号 | 国土交通大臣(1)第10706号 |
| アクセス | 店舗への地図はこちら |

来店ご予約
和歌山県和歌山市で価格が似ている物件はこちら
- 和歌山県
マイページ物件数 - 1,324件
和歌山県中古一戸建て新着物件
- お近くの店舗を探す
-
おすすめ物件
-
-

-
- 中古一戸建て
- 450万円
-
和歌山市関戸2丁目
-
JR紀勢本線紀三井寺
-
-
-

-
- 中古一戸建て
- 1,900万円
-
和歌山市船所
-
南海電鉄本線紀ノ川
-
-
-

-
- 中古一戸建て
- 2,780万円
-
和歌山市松島
-
JR阪和線紀伊中ノ島
-
-
-

-
- 中古一戸建て
- 2,100万円
-
和歌山市中筋日延
-
JR阪和線紀伊
-
-
-

-
- 中古一戸建て
- 398万円
-
和歌山市神波
-
JR阪和線紀伊
-
-
-

-
- 中古一戸建て
- 2,780万円
-
和歌山市栄谷
-
南海電鉄本線和歌山大学前
-
-
-

-
- 中古一戸建て
- 3,380万円
-
和歌山市栄谷
-
南海電鉄本線和歌山大学前
-
-
-

-
- 中古一戸建て
- 1,150万円
-
和歌山市六十谷
-
JR阪和線六十谷
-
-
-

-
- 中古一戸建て
- 2,100万円
-
和歌山市中筋日延
-
和歌山バス池の川
-
-
-

-
- 中古一戸建て
- 2,980万円
-
和歌山市栄谷
-
南海電鉄本線紀ノ川
-












担当エージェント:尾関 親代
落ち着いた住環境でファミリー層にも単身者にも◎♪
住宅ローン相談会開催中です!
ぜひお気軽にお問い合わせください!