三島市御園の中古戸建
掲載情報更新日:2026年05月03日 次回更新予定日:2026年05月17日
- 3,280万円
-
- 借入ご希望金額
万円 - 借入期間
年 - 借入金利
% - 月々のお支払い金額
円
- 借入ご希望金額
※ 月々のお支払例は目安の試算となりますので、実際の金額とは異なる場合がございます。詳しくは店舗までお問合わせください。
- 三島市御園
-
伊豆箱根鉄道駿豆線『伊豆仁田』 徒歩28分 (約2240m)
三島市御園一戸建て | 物件情報
スレートぶき
リフォームのご相談も、お任せ下さい。
ピンポイントリフォームからフルリフォームや間取を変えるフルリノベまでお気軽にご相談下さい。またご予算に応じました様々なプランもご用意致します。快適な家づくり・住み心地の良い家づくり、お手伝い致します。
物件の設備
- 電気
- 上水道
- 公営水道
- 浄化槽
- プロパンガス
- 給湯
- コンロ三口
- システムキッチン
- バス
- ユニットバス
- 追焚機能
- 浴室に窓
- トイレ
- トイレ2箇所
- 温水洗浄便座
- 室内洗濯機置場
- 洗髪洗面化粧台
- エアコン
- 照明器具
- モニタ付インターホン
- 火災警報器/報知機
- グルニエ
- ロフト
- 出窓
- 複層ガラス
- シャッター雨戸
- クローゼット
- 納戸
- 全居室収納
- 屋根裏収納
- シューズボックス
物件の特徴
- セットバック済
- 閑静な住宅街
- 通風良好
- 陽当り良好
- 2階建
物件詳細情報
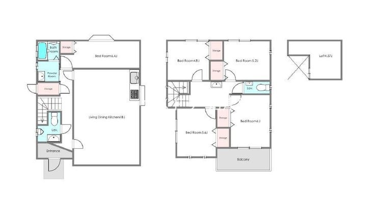
| 価格 | 3,280万円 | 間取り | 5LDK |
|---|---|---|---|
| 物件種別 | 中古一戸建て | ||
| 所在地 | 静岡県三島市御園 | ||
| アクセス |
|
||
| 建物面積 | 公113.34㎡ | 駐車場 | あり 普通:5台 |
| 築年月 | 2014年(平成26年)08月築 | ||
| 建物構造 | 木造 スレートぶき 2階建 | 工法 | |
| 主要採光 | バルコニー | ||
| 保証・評価 | |||
| リフォーム | |||
| 土地面積 | 公220.17㎡(66.60坪) | 接道 | 東側(公道)幅 約4.0m 間口 約19.32m |
| 私道 | セットバック | 済 | |
| 地目 | 宅地 | 地勢 | |
| 権利 | 所有権 |
||
| 都市計画 | 調整区域 |
用途地域 | 指定無 |
| 建ぺい/容積率 | 50% / 80% | 土地国土法 | |
| 許可番号 | 建築基準法 | ||
| 法令制限 | 景観法 | ||
| 小学区 | 長伏小学校 徒歩17分 (約1300m) | 中学区 | 中郷西中学校 徒歩22分 (約1700m) |
| 現況 | 居住中 | 引渡 | 相談 |
| その他費用 | |||
| 備考 | ※前面道路には下水管が埋設されていますが、敷地内に接続されておりません。 | ||
| 物件番号 | 4511179 | 取引態様 | 媒介 |
取扱店舗情報
| 電話番号 | 055-969-3366 |
|---|---|
| 所在地 | 〒410-0312 静岡県沼津市原1418-40 |
| 営業時間 | 10:00~18:00 |
| 定休日 | 水曜日 |
| 宅建免許番号 | 静岡県知事(2)第14312号 |
| アクセス | 店舗への地図はこちら |

来店ご予約
静岡県三島市で価格が似ている物件はこちら
- 静岡県
マイページ物件数 - 2,726件
最近見た物件
静岡県中古一戸建て新着物件
-
-

-
- 中古一戸建て
- 1,880万円
-
伊豆の国市南條
-
伊豆箱根鉄道駿豆線伊豆長岡駅
-
-
-

-
- 中古一戸建て
- 2,680万円
-
裾野市佐野
-
JR御殿場線裾野駅
-
-
-

-
- 中古一戸建て
- 1,599万円
-
浜松市中央区篠原町
-
JR東海道本線浜松駅
-
-
-

-
- 中古一戸建て
- 1,420万円
-
富士市富士見台6丁目
-
岳南電車岳南原田駅
-
-
-

-
- 中古一戸建て
- 1億800万円
-
伊東市八幡野
-
伊豆急行城ヶ崎海岸駅
-
-
-

-
- 中古一戸建て
- 2,300万円
-
富士宮市人穴
-
JR身延線富士宮駅
-
-
-

-
- 中古一戸建て
- 1,650万円
-
裾野市千福が丘3丁目
-
JR御殿場線裾野駅
-
- お近くの店舗を探す
-
おすすめ物件
-
-

-
- 中古一戸建て
- 5,380万円
-
静岡市葵区西千代田町
-
静岡鉄道静岡清水線新静岡
-
-
-

-
- 中古一戸建て
- 1,320万円
-
静岡市葵区辰起町
-
JR東海道本線静岡
-
-
-

-
- 中古一戸建て
- 2,249万円
-
菊川市柳3丁目
-
JR東海道本線菊川
-
-
-

-
- 中古一戸建て
- 4,990万円
-
静岡市葵区瀬名川2丁目
-
JR東海道本線草薙
-
-
-

-
- 中古一戸建て
- 2,680万円
-
静岡市葵区新間
-
JR東海道本線静岡
-
-
-

-
- 中古一戸建て
- 390万円
-
富士市鮫島
-
JR東海道本線富士
-
-
-

-
- 中古一戸建て
- 1,200万円
-
静岡市葵区川辺町2丁目
-
静岡鉄道静岡清水線新静岡
-
-
-

-
- 中古一戸建て
- 1,410万円
-
沼津市下香貫木ノ宮
-
JR東海道本線沼津
-
-
-

-
- 中古一戸建て
- 3,780万円
-
袋井市栄町
-
JR東海道本線袋井
-
-
-

-
- 中古一戸建て
- 1,099万円
-
静岡市葵区北4丁目
-
JR東海道本線静岡
-


















担当エージェント:米山 渉
住宅ローンのご質問・ご相談、何なりとお申し付け下さい。
「物件の場所はどこ?」「○○エリアで物件を探しているんだけど?」
内見予約等、どんな事でもハウスドゥ沼津原までお気軽にお問い合わせ下さい♪