大阪市東住吉区針中野1丁目の中古戸建
NEW 12.05掲載情報更新日:2025年12月05日 次回更新予定日:2025年12月19日
- 4,580万円
-
- 借入ご希望金額
万円 - 借入期間
年 - 借入金利
% - 月々のお支払い金額
円
- 借入ご希望金額
※ 月々のお支払例は目安の試算となりますので、実際の金額とは異なる場合がございます。詳しくは店舗までお問合わせください。
- 大阪市東住吉区針中野1丁目
-
近鉄南大阪線『針中野』 徒歩4分 (約320m)
大阪市谷町線『駒川中野』 徒歩5分 (約400m)
大阪市東住吉区針中野1丁目一戸建て | 物件情報
■2路線利用可能! ■築浅物件♪小学校徒歩9分! ■駅近で近所に商店街があり便利です♪
◆ 戸建てを買うなら【ハウスドゥ長居公園東】へ! ◆
全国700店舗以上を展開し、売買専門店舗数No.1のハウスドゥグループ。
その中でも当店は、不動産売買に特化した専門店舗として、地域密着サービスを提供しています。
特に長居公園周辺に強く、地元ならではの情報力と提案力が自慢です。学区・周辺環境・資産性など、細かなご希望に対しても的確にご提案可能です。
◇ 新築戸建て・中古住宅
◇ 中古+リフォームのご提案
◇ 投資用物件・収益不動産
◇ 住宅ローン相談・事前審査
◇ 売却・買替え・住み替え相談
ご購入からローン、リフォームまでワンストップで対応可能。お客様専属エージェントが、お客様の理想の住まい探しを全力でサポートします。
さらに、店舗限定の非公開物件も多数ご用意しております。「良い物件が見つからない」とお悩みの方も、ぜひ一度ご相談ください。
◆住宅ローン相談会も随時開催中!
「まずは話だけでも聞いてみたい」そんな方も大歓迎です。
【ハウスドゥ長居公園東】へお問合せください!
無料問い合わせ→【0120-885-123】
物件の設備
- 電気
- 公営水道
- 公共下水
- 都市ガス
- 給湯
- コンロ三口
- バス
- 浴室に窓
- トイレ2箇所
- 室内洗濯機置場
- 洗面所独立
- ロフト
- LDK20畳以上
- クローゼット
- 全居室収納
- シューズボックス
物件の特徴
- 2沿線利用可
- 小学校徒歩10分以内
- スーパーが近い
- 2階建
物件詳細情報
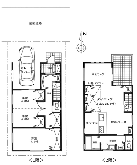
| 価格 | 4,580万円 | 間取り | 3LDK |
|---|---|---|---|
| 物件種別 | 中古一戸建て | ||
| 所在地 | 大阪府大阪市東住吉区針中野1丁目 | ||
| アクセス |
|
||
| 建物面積 | 公95.77㎡ | 駐車場 | あり |
| 築年月 | 2021年(令和3年)11月築 | ||
| 建物構造 | 木造 2階建 | 工法 | |
| 主要採光 | 北向 | バルコニー | |
| 保証・評価 | |||
| リフォーム | |||
| 土地面積 | 公83.63㎡(25.29坪) | 接道 | 北側(私道)幅 約4.0m |
| 私道 | 別:12.00㎡ | セットバック | |
| 地目 | 宅地 | 地勢 | 平坦 |
| 権利 | 所有権 |
||
| 都市計画 | 市街化区域 |
用途地域 | 2種中高 |
| 建ぺい/容積率 | 60% / 116% | 土地国土法 | |
| 許可番号 | 建築基準法 | ||
| 法令制限 | |||
| 小学区 | 南百済小学校 徒歩9分 (約650m) | 中学区 | 中野中学校 徒歩9分 (約700m) |
| 現況 | 居住中 | 引渡 | 期日指定:2026年05月以降 |
| その他費用 | |||
| 周辺環境 | 駒川中野駅 徒歩2分 (約160m) 針中野わくわく公園 徒歩2分 (約160m) 近商ストア針中野店 徒歩3分 (約240m) スーパー玉出 駒川店 徒歩5分 (約360m) ファミリーマート近鉄針中野駅前店 徒歩5分 (約360m) ローソン東住吉駒川5丁目 徒歩5分 (約360m) 東住吉駒川五郵便局 徒歩5分 (約360m) 近鉄南大阪線 針中野駅 徒歩4分 (約290m) こまがわ商店街 徒歩6分 (約420m) マックスバリュ駒川中野店 徒歩9分 (約670m) |
||
| 備考 | |||
| 物件番号 | 4514288 | 取引態様 | 媒介 |
取扱店舗情報
| 電話番号 | 06-6657-5963 |
|---|---|
| 所在地 | 〒546-0014 大阪府大阪市東住吉区鷹合1丁目13-3 KIDビル1階 |
| 営業時間 | 10:00~19:00 |
| 定休日 | 水曜日 |
| 宅建免許番号 | 大阪府知事(1)第65144号 |
| アクセス | 店舗への地図はこちら |

来店ご予約
- 大阪府
マイページ物件数 - 16,173件
大阪府中古一戸建て新着物件
-
-

-
- 中古一戸建て
- 1,780万円
-
泉佐野市南中安松
-
南海電鉄本線羽倉崎駅
-
-
-

-
- 中古一戸建て
- 3,980万円
-
豊中市三国2丁目
-
阪急電鉄宝塚線三国駅
-
-
-

-
- 中古一戸建て
- 899万円
-
大阪市東成区玉津3丁目
-
大阪市千日前線鶴橋駅
-
-
-

-
- 中古一戸建て
- 1,280万円
-
大阪市東成区東今里3丁目
-
大阪市千日前線新深江駅
-
-
-

-
- 中古一戸建て
- 1億5,000万円
-
豊中市服部南町2丁目
-
阪急電鉄宝塚線服部天神駅
-
-
-

-
- 中古一戸建て
- 3,580万円
-
豊中市上野西3丁目
-
大阪モノレール少路駅
-
-
-

-
- 中古一戸建て
- 5,880万円
-
池田市石橋2丁目
-
阪急電鉄宝塚線石橋阪大前駅
-
- お近くの店舗を探す
-
おすすめ物件
-
-

-
- 中古一戸建て
- 1,600万円
-
八尾市垣内4丁目
-
近鉄信貴線信貴山口
-
-
-

-
- 中古一戸建て
- 2,780万円
-
大阪市住吉区山之内4丁目
-
JR阪和線杉本町
-
-
-

-
- 中古一戸建て
- 3,480万円
-
大阪市住吉区万代5丁目
-
南海電鉄高野線帝塚山
-
-
-

-
- 中古一戸建て
- 4,480万円
-
高槻市月見町
-
JR東海道線高槻
-
-
-

-
- 中古一戸建て
- 3,550万円
-
茨木市郡3丁目
-
JR東海道線茨木
-
-
-

-
- 中古一戸建て
- 3,280万円
-
大阪市西成区鶴見橋2丁目
-
JR大阪環状線今宮
-
-
-

-
- 中古一戸建て
- 880万円
-
堺市中区深井北町
-
JR阪和線上野芝
-
-
-

-
- 中古一戸建て
- 380万円
-
貝塚市橋本
-
JR阪和線和泉橋本
-
-
-

-
- 中古一戸建て
- 2,380万円
-
泉大津市寿町
-
南海電鉄本線松ノ浜
-
-
-

-
- 中古一戸建て
- 4,080万円
-
高槻市高垣町
-
JR東海道線高槻
-



「購入後すぐに不具合があったらどうしよう・・・」
そんな中古住宅の不安解消をハウスドゥがサポート。
◆住宅設備あんしん保証プラス5つの安心サポート!
◇修理無制限
修理回数制限なしOK!契約期間中は、同じ部位の故障も何度でも修理可能です。
◇出張費・工賃無料
出張費、施工料、技術料0円!メーカー保証対象の修理は全て保証いたします。
◇経年劣化対応
消耗品以外なら、住宅設備の経年劣化による故障、自然故障にも対応。
◇事前審査なし
面倒な事前審査は一切ございません。今すぐといったご要望に対応可能です。
◇24時間365日コール受付
お電話一本で、簡単修理受付。全国対応24時間365日、コールセンターにてお電話受付対応いたします。
◆ハウスドゥなら確かな保証のおまもりDoで充実サポート!
◇3つのおまもりで安心プラス!
1.インスペクション
2.既存住宅保険
3.設備機器保証
※詳細、費用については担当者へお問合せください。
築年数や構造等により保証の対象とならない場合がございますので事前に必ずご確認ください。