千歳市北陽6丁目 中古戸建
掲載情報更新日:2026年01月23日 次回更新予定日:2026年02月06日
- 3,280万円
-
- 借入ご希望金額
万円 - 借入期間
年 - 借入金利
% - 月々のお支払い金額
円
- 借入ご希望金額
※ 月々のお支払例は目安の試算となりますので、実際の金額とは異なる場合がございます。詳しくは店舗までお問合わせください。
- 千歳市北陽6丁目
-
JR千歳線『長都』 徒歩40分 (約3190m)
JR千歳線『千歳』 車5分(約3.4km)
JR千歳線『南千歳』 車10分(約6.3km)
『北陽高校前』 徒歩4分 (約320m)
千歳市北陽6丁目 中古戸建一戸建て | 物件情報
【築14年・長期優良住宅】天井高2.5mの開放感!造作家具が映える18帖LDK・都市ガス4LDK
千歳市北陽6丁目の閑静な住宅街に位置する、2011年築の4LDK中古戸建です。 最大の魅力は、デザイン性と機能性を兼ね備えた「長期優良住宅認定」の造りです。天井高2.5m以上の開放的なリビング(約18帖)には、空間をすっきり見せる埋め込み暖房を採用。キッチンや洗面台、収納にはこだわりの造作家具が使われており、木の温かみを感じる特別な空間となっています。 食洗機、追い焚き機能、都市ガスなどの充実設備に加え、耐震・省令準耐火構造で安心のスペック。敷地内には2台分の駐車スペースを確保しています。 北陽小学校まで徒歩12分、勇舞中学校まで徒歩10分と通学環境も良好で、スーパーやドラッグストアも徒歩圏内。子育て世帯に嬉しい利便性と、こだわりの住空間が調和したおすすめの一邸です。現在は居住中ですが、事前の日程調整にてご内覧いただけます。
物件の設備
- 電気
- 公営水道
- 公共下水
- 都市ガス
- 食器洗浄乾燥機
- コンロ三口
- システムキッチン
- バス1坪以上
- 追焚機能
- トイレ2箇所
- 温水洗浄便座
- 室内洗濯機置場
- 洗髪洗面化粧台
- ガス暖房
- モニタ付インターホン
- LDK18畳以上
- 全室フローリング
- クローゼット
- ウォークインクローゼット
物件の特徴
- 前道6m以上
- 2階建
物件詳細情報
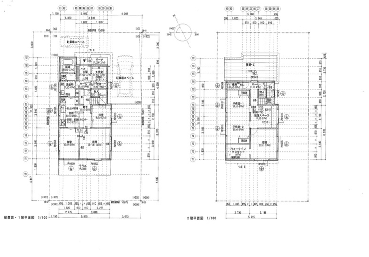
| 価格 | 3,280万円 | 間取り | 4LDK |
|---|---|---|---|
| 物件種別 | 中古一戸建て | ||
| 所在地 | 北海道千歳市北陽6丁目 | ||
| アクセス |
|
||
| 建物面積 | 公116.75㎡ | 駐車場 | あり 普通:2台 |
| 築年月 | 2011年(平成23年)11月築 | ||
| 建物構造 | 木造 2階建 | 工法 | |
| 主要採光 | バルコニー | ||
| 保証・評価 | |||
| リフォーム | |||
| 土地面積 | 公210.11㎡(63.55坪) | 接道 | 北東側(公道)幅 約14.0m 間口 約10.68m |
| 私道 | セットバック | ||
| 地目 | 宅地 | 地勢 | 平坦 |
| 権利 | 所有権 |
||
| 都市計画 | 市街化区域 |
用途地域 | 1種低層 |
| 建ぺい/容積率 | 40% / 60% | 土地国土法 | |
| 許可番号 | 建築基準法 | ||
| 法令制限 | 景観法 | ||
| 小学区 | 北陽小学校 徒歩12分 (約890m) | 中学区 | 勇舞中学校 徒歩10分 (約790m) |
| 現況 | 居住中 | 引渡 | 相談 |
| その他費用 | |||
| 周辺環境 | 北陽ファミリークリニック 徒歩7分 (約490m) 勇舞中学校 徒歩10分 (約790m) 北陽小学校 徒歩12分 (約890m) セイコーマート千歳あずさ西店 徒歩14分 (約1100m) 市立千歳市民病院 徒歩17分 (約1360m) |
||
| 備考 | 千歳市北陽6丁目の落ち着いた住宅街に位置する、築2011年(約14年)の4LDK・中古戸建が 3,280万円 で登場しました。敷地面積約210㎡、建物116.75㎡のゆとりある住まいで、18帖の広々LDKを中心に洋室4室を配置したファミリー向けプランです。造作キッチンや洗面台、収納造作が空間に温かみをプラスし、埋め込み暖房や天井高2.5m以上の開放感が日々の暮らしを豊かに演出します。長期優良住宅認定・耐震・省令準耐火構造の安心設計に加え、追い焚き機能・食洗機・都市ガスなど設備も充実。駐車スペースは2台分確保され、子育てに嬉しい北陽小学校徒歩10分圏内、幼稚園・保育園・スーパー・ドラッグストア・病院も徒歩圏内の便利な生活環境です。JR長都駅へは車で約5分、通勤・通学にも適しています。ご入居中ですが事前予約で現地見学も可能ですので、ぜひお問い合わせください。 | ||
| 物件番号 | 4523677 | 取引態様 | 媒介 |
取扱店舗情報
ハウスドゥ 千歳北 株式会社千歳不動産販売 店舗詳細ページへ
| 電話番号 | 0123-21-8800 |
|---|---|
| 所在地 | 〒066-0039 北海道千歳市富士3丁目5番11号 |
| 営業時間 | 9:30~18:30 |
| 定休日 | 年末年始 |
| 宅建免許番号 | 北海道知事 石狩(1)第9648号 |
| アクセス | 店舗への地図はこちら |

来店ご予約
北海道千歳市で価格が似ている物件はこちら
- 北海道
マイページ物件数 - 6,143件
最近見た物件
-
-

-
- 新築一戸建て
- 3,698万円
-
大和郡山市泉原町
-
JR関西本線大和小泉
-
-
-

-
- 中古一戸建て
- 1,799万円
-
豊橋市大岩町字前荒田
-
JR東海道本線二川
-
-
-

-
- 新築一戸建て
- 3,899万円
-
名古屋市港区西川町2丁目
-
名古屋臨海高速鉄道荒子川公園
-
北海道中古一戸建て新着物件
-
-

-
- 中古一戸建て
- 2,390万円
-
帯広市西二十一条南5丁目
-
JR根室本線帯広駅
-
-
-

-
- 中古一戸建て
- 2,390万円
-
帯広市西二十一条南5丁目
-
JR根室本線帯広駅
-
-
-

-
- 中古一戸建て
- 1,400万円
-
千歳市寿1丁目
-
JR千歳線千歳駅
-
-
-

-
- 中古一戸建て
- 480万円
-
夕張郡由仁町東栄
-
JR室蘭本線由仁駅
-
-
-

-
- 中古一戸建て
- 2,580万円
-
旭川市神楽六条1丁目
-
JR函館本線旭川駅
-
-
-

-
- 中古一戸建て
- 340万円
-
小樽市最上2丁目
-
JR函館本線小樽駅
-
-
-

-
- 中古一戸建て
- 770万円
-
苫小牧市柏木町2丁目
-
JR室蘭本線糸井駅
-
- お近くの店舗を探す
-
おすすめ物件
-
-

-
- 中古一戸建て
- 500万円
-
岩見沢市春日町1丁目
-
JR函館本線岩見沢
-
-
-

-
- 中古一戸建て
- 750万円
-
札幌市清田区清田八条2丁目
-
札幌市東豊線福住
-
-
-

-
- 中古一戸建て
- 2,180万円
-
札幌市東区東苗穂八条1丁目
-
札幌市東豊線栄町
-
-
-

-
- 中古一戸建て
- 1,200万円
-
札幌市南区石山一条7丁目
-
札幌市南北線真駒内
-
-
-

-
- 中古一戸建て
- 2,580万円
-
札幌市北区篠路町上篠路
-
JR札沼線百合が原
-
-
-

-
- 中古一戸建て
- 2,250万円
-
旭川市亀吉三条3丁目
-
JR函館本線旭川
-
-
-

-
- 中古一戸建て
- 3,180万円
-
江別市野幌町
-
JR函館本線野幌
-
-
-

-
- 中古一戸建て
- 2,400万円
-
北見市北央町
-
JR石北本線北見
-
-
-

-
- 中古一戸建て
- 640万円
-
小樽市若竹町
-
JR函館本線小樽築港
-
-
-

-
- 中古一戸建て
- 320万円
-
小樽市入船4丁目
-
JR函館本線南小樽
-




「普通のお家じゃ物足りない」という方にぜひ見ていただきたい物件です。 本物件は、キッチンや洗面台などに「造作(オリジナル)」の要素が取り入れられており、既製品にはない温かみとお洒落な雰囲気があります。リビングの天井が高く設計されているため、畳数以上の広がりを感じられるのもポイントです。 長期優良住宅の認定を受けているため、建物の基本性能が高く、長く安心してお住まいいただけます。経済的な「都市ガス」物件であることも、光熱費を抑えたいご家庭には大きなメリットです。 学校や買い物施設が近く、生活環境も申し分ありません。売主様が大切にお使いですので、室内状況も良好です。こだわりの詰まった空間を、ぜひ現地でご体感ください。お問い合わせをお待ちしております。