大東町2丁目 中古戸建
掲載情報更新日:2026年03月01日 次回更新予定日:2026年03月15日
- 3,880万円
-
- 借入ご希望金額
万円 - 借入期間
年 - 借入金利
% - 月々のお支払い金額
円
- 借入ご希望金額
※ 月々のお支払例は目安の試算となりますので、実際の金額とは異なる場合がございます。詳しくは店舗までお問合わせください。
- 大阪市都島区大東町2丁目
-
JRおおさか東線『城北公園通』 徒歩4分 (約320m)
大阪市谷町線『都島』 徒歩26分 (約2070m)
大阪市谷町線『野江内代』 徒歩28分 (約2240m)
大東町2丁目 中古戸建一戸建て | 物件情報
月々10.6万円~ 城北公園通駅徒歩4分! 3階建て戸建
☆月々10.6万円~
☆最寄駅から新大阪駅まで8分
☆日当たり良好
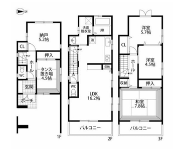
☆16帖LDK
☆トイレ2箇所(1階、2階)
☆駐車場2台可(車種制限有り)
☆近隣に学校、幼稚園、保育園、公園あり
☆複数スーパーあり
【内覧会開催中】
本日ご案内可能な場合もございます。
複数件併せてご内見も可能♪
他の掲載物件もまとめてご内見頂けます。気になる物件をお教え下さい。
☆0120ー684-571
お気軽にお電話ください♪
☆立地のポイント
【上告公園通駅】徒歩約4分
【都島駅】徒歩約26分
物件の設備
- 電気
- 上水道
- 下水道
- 都市ガス
- 食器洗浄乾燥機
- コンロ三口
- カウンターキッチン
- システムキッチン
- 追焚機能
- 浴室乾燥機
- 浴室に窓
- トイレ2箇所
- 温水洗浄便座
- 洗髪洗面化粧台
- モニタ付インターホン
- 2面採光
- シャッター雨戸
物件の特徴
- 3階建以上
物件詳細情報
| 価格 | 3,880万円 | 間取り | 4LDK+S |
|---|---|---|---|
| 物件種別 | 中古一戸建て | ||
| 所在地 | 大阪府大阪市都島区大東町2丁目 | ||
| アクセス |
|
||
| 建物面積 | 102.65㎡ | 駐車場 | あり 普通:1台 |
| 築年月 | 2009年(平成21年)08月築 | ||
| 建物構造 | 木造 3階建 | 工法 | |
| 主要採光 | 東向 | バルコニー | |
| 保証・評価 | |||
| リフォーム | |||
| 土地面積 | 公72.45㎡(21.91坪) | 接道 | |
| 私道 | セットバック | ||
| 地目 | 宅地 | 地勢 | |
| 権利 | 所有権 |
||
| 都市計画 | 市街化区域 |
用途地域 | 1種住居 |
| 建ぺい/容積率 | 80% / 200% | 土地国土法 | |
| 許可番号 | 建築基準法 | ||
| 法令制限 | |||
| 小学区 | 大東小学校 徒歩7分 (約550m) | 中学区 | 淀川中学校 徒歩17分 (約1330m) |
| 現況 | 居住中 | 引渡 | 相談 |
| その他費用 | |||
| 周辺環境 | 淀川幼稚園 徒歩5分 (約360m) JR城北公園通駅 徒歩4分 (約310m) 大東保育園 徒歩5分 (約390m) 赤川南公園 徒歩6分 (約450m) サンディ 都島毛馬店 徒歩8分 (約570m) ライフ 毛馬店 徒歩10分 (約760m) |
||
| 備考 | ※入居日・引渡日変更や付帯条件、別途料金等が発生するする場合あり ・淀川幼稚園まで徒歩5分(約360m) ・JR城北公園通駅まで徒歩4分(約310m) ・大東保育園まで徒歩5分(約390m) ・赤川南公園まで徒歩6分(約450m) ・サンディ 都島毛馬店まで徒歩8分(約570m) ・ライフ 毛馬店まで徒歩10分(約760m) |
||
| 物件番号 | 4548871 | 取引態様 | 媒介 |
取扱店舗情報
| 電話番号 | 050-5805-9447 |
|---|---|
| 所在地 | 〒536-0006 大阪府大阪市城東区野江4丁目10-13 クリエイト野江内代1F |
| 営業時間 | 10:00~19:00 |
| 定休日 | なし |
| 宅建免許番号 | 国土交通大臣(1)第10706号 |
| アクセス | 店舗への地図はこちら |

来店ご予約
大阪府大阪市都島区で価格が似ている物件はこちら
- 大阪府
マイページ物件数 - 17,836件
最近見た物件
-
-

-
- 土地
- 550万円
-
倉敷市船穂町船穂
-
JR山陽本線西阿知
-
-
-

-
- 中古一戸建て
- 2,630万円
-
宮崎市大字島之内
-
JR日豊本線日向住吉
-
-
-

-
- 中古一戸建て
- 600万円
-
旭川市東四条11丁目
-
JR函館本線旭川
-
大阪府中古一戸建て新着物件
-
-

-
- 中古一戸建て
- 4,000万円
-
大阪市阿倍野区王子町3丁目
-
阪堺電気軌道上町線北畠駅
-
-
-

-
- 中古一戸建て
- 3,280万円
-
大阪市東淀川区豊里1丁目
-
大阪市今里筋線だいどう豊里駅
-
-
-

-
- 中古一戸建て
- 780万円
-
大阪市阿倍野区北畠3丁目
-
阪堺電気軌道阪堺線天神ノ森駅
-
-
-

-
- 中古一戸建て
- 2,980万円
-
大阪市東淀川区上新庄2丁目
-
阪急電鉄京都線上新庄駅
-
-
-

-
- 中古一戸建て
- 5,980万円
-
高槻市富田丘町
-
阪急電鉄京都線富田駅
-
-
-

-
- 中古一戸建て
- 8,000万円
-
大阪市阿倍野区天王寺町南2丁目
-
近鉄南大阪線河堀口駅
-
-
-

-
- 中古一戸建て
- 3,200万円
-
堺市美原区南余部
-
南海電鉄高野線北野田駅
-
- お近くの店舗を探す
-
おすすめ物件
-
-

-
- 中古一戸建て
- 1,680万円
-
豊中市城山町2丁目
-
阪急電鉄宝塚線曽根
-
-
-

-
- 中古一戸建て
- 2,380万円
-
大阪市住之江区平林南2丁目
-
南港ポートタウン線(ニュートラム)平林
-
-
-

-
- 中古一戸建て
- 2,580万円
-
大阪市住吉区山之内3丁目
-
JR阪和線杉本町
-
-
-

-
- 中古一戸建て
- 2,880万円
-
大阪市平野区平野本町4丁目
-
大阪市谷町線平野
-
-
-

-
- 中古一戸建て
- 580万円
-
河内長野市楠ケ丘
-
南海電鉄高野線三日市町
-
-
-

-
- 中古一戸建て
- 2,980万円
-
八尾市栄町2丁目
-
JR関西本線八尾
-
-
-

-
- 中古一戸建て
- 2,698万円
-
泉大津市我孫子1丁目
-
JR阪和線和泉府中
-
-
-

-
- 中古一戸建て
- 2,980万円
-
大阪市平野区平野東3丁目
-
大阪市谷町線平野
-
-
-

-
- 中古一戸建て
- 780万円
-
堺市北区長曽根町
-
大阪市御堂筋線なかもず
-
-
-

-
- 中古一戸建て
- 4,490万円
-
大阪市住吉区万代東2丁目
-
大阪市御堂筋線西田辺
-







担当エージェント:尾関 親代
最寄り駅から新大阪まで8分の好立地!
落ち着いた住環境でファミリー層にも単身者にも◎♪
住宅ローン相談会開催中です!
ぜひお気軽にお問い合わせください!
※入居日・引渡日変更や付帯条件、別途料金等が発生するする場合あり