中古戸建
NEW 01.10掲載情報更新日:2026年01月10日 次回更新予定日:2026年01月24日
- 880万円
-
- 借入ご希望金額
万円 - 借入期間
年 - 借入金利
% - 月々のお支払い金額
円
- 借入ご希望金額
※ 月々のお支払例は目安の試算となりますので、実際の金額とは異なる場合がございます。詳しくは店舗までお問合わせください。
- 大津市和邇高城
-
JR湖西線『和邇』 徒歩7分 (約560m)
中古戸建一戸建て | 物件情報
☆4LDK・庭・車1台駐車可 ☆リフォーム向き物件 ☆駅・スーパーへ徒歩約7分 ☆閑静な住宅地
■4LDK・庭付き・車1台駐車可(堀込ガレージ)
■お好みのお住まいにリフォーム・リノベーションのできる物件です♪
■JR和邇駅、和邇平和堂まで徒歩約7分の便利な立地
■小学校・コンビニ・ドラッグストアなど徒歩圏内
■閑静な住宅地「高城台」内
物件の設備
- 電気
- 公営水道
- 公共下水
- プロパンガス
- 個別プロパン
- システムキッチン
- ユニットバス
- 追焚機能
- 温水洗浄便座
- 洗髪洗面化粧台
- モニタ付インターホン
物件の特徴
- 内装リフォーム済
- 2階建
物件詳細情報
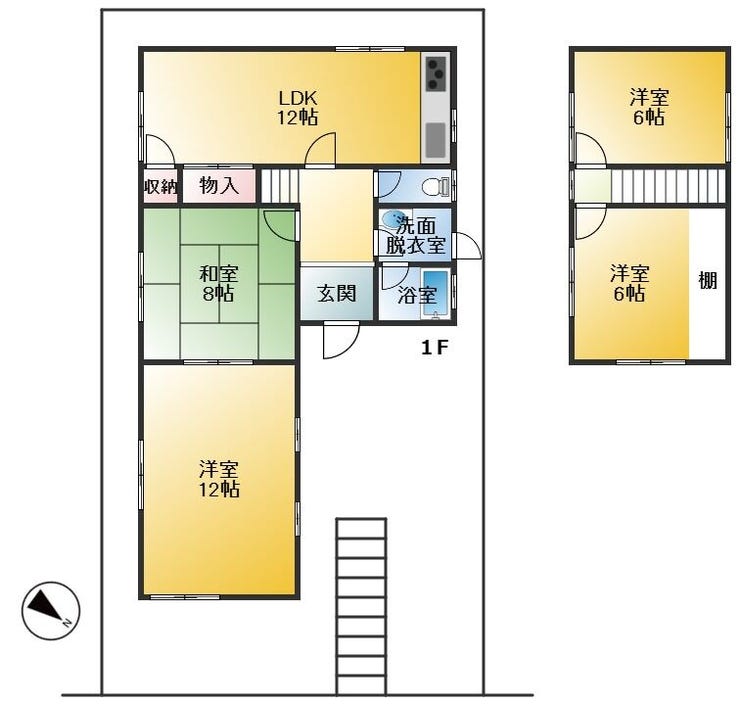
| 価格 | 880万円 | 間取り | 4LDK |
|---|---|---|---|
| 物件種別 | 中古一戸建て | ||
| 所在地 | 滋賀県大津市和邇高城341-25 | ||
| アクセス |
|
||
| 建物面積 | 公80.07㎡ | 駐車場 | あり 普通:1台 |
| 築年月 | 1976年(昭和51年)04月築 | ||
| 建物構造 | 木造 スレート葺 2階建 | 工法 | |
| 主要採光 | バルコニー | ||
| 保証・評価 | |||
| リフォーム | 【水回り】2020年08月 浴室 ユニットバス新調 【内装】2020年08月 リビング床張替(LDKの畳6帖分をフローリングに変更)、玄関ホールフロアタイル上張 |
||
| 土地面積 |
公181㎡(54.75坪) 持分:1/1 |
接道 | 東側(公道)幅 約5.9m 間口 約9.60m |
| 私道 | セットバック | 無 | |
| 地目 | 雑種地 | 地勢 | 高台 |
| 権利 | 所有権 |
||
| 都市計画 | 市街化区域 |
用途地域 | 1種住居 |
| 建ぺい/容積率 | 60% / 200% | 土地国土法 | 届出不要 |
| 許可番号 | 建築基準法 | ||
| 法令制限 | 第3種高度地区 | ||
| 小学区 | 和邇小学校 徒歩10分 (約750m) | 中学区 | 志賀中学校 徒歩32分 (約2500m) |
| 現況 | 空 | 引渡 | 相談 |
| その他費用 | |||
| 周辺環境 | JR和邇駅 徒歩7分 (約500m) 滋賀銀行志賀町支店 徒歩8分 (約610m) 平和堂和邇店 徒歩7分 (約550m) アスクわにこども園 徒歩9分 (約660m) 大津市立和邇小学校 徒歩11分 (約830m) ファミリーマート 和邇南浜店 徒歩10分 (約800m) 和邇郵便局 徒歩11分 (約850m) ドラッグユタカ和邇店 徒歩12分 (約910m) 大津市立志賀南幼稚園 徒歩19分 (約1490m) 大津市立志賀中学校 徒歩32分 (約2520m) |
||
| 備考 | ■増築部分未登記19.87㎡(1F洋室12帖) ■建物面積に堀込車庫面積は含まれていません ■堀込車庫は未登記です ・JR和邇駅まで徒歩7分(約500m) ・滋賀銀行志賀町支店まで徒歩8分(約610m) ・平和堂和邇店まで徒歩7分(約550m) ・アスクわにこども園まで徒歩9分(約660m) ・大津市立和邇小学校まで徒歩11分(約830m) ・ファミリーマート 和邇南浜店まで徒歩10分(約800m) ・和邇郵便局まで徒歩11分(約850m) ・ドラッグユタカ和邇店まで徒歩12分(約910m) ・大津市立志賀南幼稚園まで徒歩19分(約1490m) ・大津市立志賀中学校まで徒歩32分(約2520m) |
||
| 物件番号 | 4548874 | 取引態様 | 媒介 |
取扱店舗情報
ハウスドゥ 滋賀湖西 有限会社ケア・サポート愛 店舗詳細ページへ
| 電話番号 | 077-532-3173 |
|---|---|
| 所在地 | 〒520-0232 滋賀県大津市真野5丁目9-13 |
| 営業時間 | 9:00~18:00 |
| 定休日 | 毎週火曜日・水曜日 夏季、年末年始 |
| 宅建免許番号 | 滋賀県知事(1)第3950号 |
| アクセス | 店舗への地図はこちら |

来店ご予約
滋賀県大津市で価格が似ている物件はこちら
- 滋賀県
マイページ物件数 - 3,021件
滋賀県中古一戸建て新着物件
- お近くの店舗を探す
-
おすすめ物件
-
-

-
- 中古一戸建て
- 3,298万円
-
京都市左京区北白川西瀬ノ内町
-
叡山電鉄茶山・京都芸術大学
-
-
-

-
- 中古一戸建て
- 2,750万円
-
野洲市三上
-
JR東海道線野洲
-
-
-

-
- 中古一戸建て
- 2,498万円
-
大津市比叡辻2丁目
-
JR湖西線比叡山坂本
-
-
-

-
- 中古一戸建て
- 730万円
-
米原市宇賀野
-
JR北陸本線坂田
-
-
-

-
- 中古一戸建て
- 2,200万円
-
大津市島の関
-
JR東海道線大津
-
-
-

-
- 中古一戸建て
- 2,880万円
-
守山市幸津川町
-
JR東海道線守山
-
-
-

-
- 中古一戸建て
- 700万円
-
甲賀市甲賀町毛枚
-
JR草津線油日
-
-
-

-
- 中古一戸建て
- 1,990万円
-
東近江市今堀町
-
近江鉄道本線長谷野
-
-
-

-
- 中古一戸建て
- 1,990万円
-
守山市水保町
-
JR東海道線守山
-
-
-

-
- 中古一戸建て
- 2,590万円
-
近江八幡市若葉町2丁目
-
JR東海道線近江八幡
-







担当エージェント:木村 大祐
ハウスドゥ滋賀湖西をご覧いただき誠にありがとうございます。
弊社では主に湖西エリアの中古・新築の戸建て・マンション、売土地を取り扱っております。
リフォーム・リノベ―ションや建物建築、外構工事、住宅ローン相談、火災保険の取り扱いなど住宅購入に関わる全ての事にワンストップでご対応し、お客様が知りたい情報を全てご提供できる環境を整えております。
ベテランスタッフがトータルでサポートいたしますので住宅購入の事でしたら何なりと弊社にお任せください。