明石市魚住町住吉4丁目の中古戸建
NEW 01.12掲載情報更新日:2026年01月13日 次回更新予定日:2026年01月27日
- 3,090万円
-
- 借入ご希望金額
万円 - 借入期間
年 - 借入金利
% - 月々のお支払い金額
円
- 借入ご希望金額
※ 月々のお支払例は目安の試算となりますので、実際の金額とは異なる場合がございます。詳しくは店舗までお問合わせください。
- 明石市魚住町住吉4丁目
-
山陽電鉄本線『山陽魚住』 徒歩11分 (約880m)
JR山陽本線『魚住』 徒歩13分 (約1040m)
山陽電鉄本線『東二見』 徒歩16分 (約1280m)
明石市魚住町住吉4丁目一戸建て | 物件情報
不動産会社のイメージを変えたい。全国700店舗展開中!不動産はハウスドゥ明石藤江におまかせください!
【ハウスドゥ明石藤江】おすすめ
□南向きで陽当り・通風良好
□JR ・山電の2wayアクセス
□オール電化住宅
□普通車2台駐車可
現地へ行って陽当りや周辺環境・街並みを確かめよう!
お気軽にお問合せください!
錦浦小学校 約650m(徒歩約9分)
魚住中学校 約1700m(徒歩約22分)
【ハウスドゥ明石藤江】ご来店サービス♪
♪お客様を駅まで送迎いたします!JR「西明石」「大久保」駅 山陽電鉄線もご相談ください♪
♪ご来店のお客様へウェルカムドリンクのご提供♪ゆっくりと店内でご相談ください♪
どんな小さな事でもご相談ください!エージェントが全力でお手伝い・サポートさせていただきます!
【ハウスドゥ明石藤江】はお客様のより近くにある安心・便利・信頼されるお店づくりを展開中!
【ハウスドゥ明石藤江】はすべての物件情報を公開中!
お問合せはこちらまで →0120-077-712
物件の設備
- 電気
- 上水道
- 公営水道
- 下水道
- 公共下水
- 給湯
- 食品庫
- カウンターキッチン
- システムキッチン
- バス
- 浴室に窓
- トイレ
- トイレ2箇所
- 室内洗濯機置場
- 洗面所独立
- リビング階段
- モニタ付インターホン
- LDK18畳以上
- 和室
- クローゼット
- クローゼット2箇所
- クローゼット3箇所
物件の特徴
- 2沿線利用可
- 前道6m以上
- 南側道路面す
- 閑静な住宅街
- 周辺交通量少なめ
- 通風良好
- 陽当り良好
- 2階建
- 平坦地
物件詳細情報
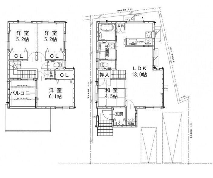
| 価格 | 3,090万円 | 間取り | 4LDK |
|---|---|---|---|
| 物件種別 | 中古一戸建て | ||
| 所在地 | 兵庫県明石市魚住町住吉4丁目 | ||
| アクセス |
|
||
| 建物面積 | 100.19㎡ | 駐車場 | あり 普通:1台 軽:1台 |
| 築年月 | 2014年(平成26年)09月築 | ||
| 建物構造 | 木造 2階建 | 工法 | |
| 主要採光 | 南向 | バルコニー | |
| 保証・評価 | |||
| リフォーム | |||
| 土地面積 | 125.57㎡(37.98坪) | 接道 | 南側(公道)幅 約6.0m |
| 私道 | セットバック | ||
| 地目 | 宅地 | 地勢 | 平坦 |
| 権利 | 所有権 |
||
| 都市計画 | 市街化区域 |
用途地域 | 1種中高 |
| 建ぺい/容積率 | 60% / 200% | 土地国土法 | |
| 許可番号 | 建築基準法 | ||
| 法令制限 | |||
| 小学区 | 錦浦小学校 徒歩9分 (約650m) | 中学区 | 魚住中学校 徒歩22分 (約1700m) |
| 現況 | 居住中 | 引渡 | 相談 |
| その他費用 | |||
| 周辺環境 | きらりん保育園 徒歩3分 (約210m) 明石さくらんぼこども園 徒歩7分 (約560m) キリン堂魚住店 徒歩8分 (約630m) ファミリーマート明石住吉店 徒歩10分 (約750m) 明石市立錦浦小学校 徒歩9分 (約720m) 錦浦幼稚園 徒歩9分 (約720m) ファーマーズマーケット ふぁーみん二見 徒歩12分 (約890m) デイリーヤマザキ魚住町駅前店 徒歩13分 (約1020m) 山陽電鉄 魚住駅 徒歩11分 (約850m) JR魚住駅 徒歩14分 (約1070m) |
||
| 備考 | □南向きで陽当り・通風良好 □JR ・山電の2wayアクセス □オール電化住宅 □普通車2台駐車可 |
||
| 物件番号 | 4551540 | 取引態様 | 媒介 |
取扱店舗情報
| 電話番号 | 078-962-7712 |
|---|---|
| 所在地 | 〒673-0044 兵庫県明石市藤江927-5 |
| 営業時間 | 10:00~18:00 |
| 定休日 | 水曜日 |
| 宅建免許番号 | 兵庫県知事(1)第401744号 |
| アクセス | 店舗への地図はこちら |

来店ご予約
兵庫県明石市で価格が似ている物件はこちら
- 兵庫県
マイページ物件数 - 3,121件
最近見た物件
-
-

-
- 新築一戸建て
- 4,340万円
-
佐賀市巨勢町大字牛島
-
バス停「東佐賀」
-
兵庫県中古一戸建て新着物件
-
-

-
- 中古一戸建て
- 1,680万円
-
加古川市尾上町口里
-
山陽電鉄本線浜の宮駅
-
-
-

-
- 中古一戸建て
- 980万円
-
尼崎市大庄北5丁目
-
JR東海道線立花駅
-
-
-

-
- 中古一戸建て
- 1,580万円
-
明石市大久保町江井島
-
山陽電鉄本線江井ヶ島駅
-
-
-

-
- 中古一戸建て
- 4,180万円
-
明石市魚住町清水
-
JR山陽本線土山駅
-
-
-

-
- 中古一戸建て
- 5,299万円
-
明石市松が丘3丁目
-
JR山陽本線朝霧駅
-
-
-

-
- 中古一戸建て
- 3,090万円
-
明石市魚住町住吉4丁目
-
山陽電鉄本線山陽魚住駅
-
-
-

-
- 中古一戸建て
- 2,150万円
-
明石市岬町
-
山陽電鉄本線西新町駅
-
- お近くの店舗を探す
-
おすすめ物件
-
-

-
- 中古一戸建て
- 2,698万円
-
神戸市西区玉津町今津
-
JR山陽本線明石
-
-
-

-
- 中古一戸建て
- 1,080万円
-
加古川市西神吉町岸
-
JR山陽本線宝殿
-
-
-

-
- 中古一戸建て
- 1,848万円
-
西宮市一ケ谷町
-
阪急電鉄甲陽線甲陽園
-
-
-

-
- 中古一戸建て
- 3,980万円
-
加古川市加古川町友沢
-
山陽電鉄本線尾上の松
-
-
-

-
- 中古一戸建て
- 1,780万円
-
神戸市須磨区神の谷3丁目
-
神戸市営地下鉄西神山手線名谷
-
-
-

-
- 中古一戸建て
- 1,280万円
-
尼崎市尾浜町2丁目
-
JR東海道線尼崎
-
-
-

-
- 中古一戸建て
- 3,000万円
-
姫路市飾磨区構3丁目
-
山陽電鉄本線亀山
-
-
-

-
- 中古一戸建て
- 1,580万円
-
姫路市御国野町国分寺
-
JR山陽本線御着
-
-
-

-
- 中古一戸建て
- 200万円
-
高砂市米田町米田
-
JR山陽本線宝殿
-
-
-

-
- 中古一戸建て
- 290万円
-
姫路市的形町福泊
-
山陽電鉄本線的形
-
























担当エージェント:春木 宏友
納得のお住まい購入をお手伝い。より多くの住まい情報をお客様に迅速にお届けし、お住まいをご自由にお選びいただける環境を作り出すよう最善を尽くします。お客様の10年後、20年後の将来を考えたお住まいのご提案を目指します。お住まいのご購入が終わった後も、末永いお付き合いをお約束し誠意を持って対応させていただくことを誓います。全国のネットワークを通じ、情報収集し、お客様に最良のお住まいをご提案いたします。