倉敷市安江の中古戸建
NEW 01.18掲載情報更新日:2026年01月18日 次回更新予定日:2026年02月01日
- 2,650万円
-
- 借入ご希望金額
万円 - 借入期間
年 - 借入金利
% - 月々のお支払い金額
円
- 借入ご希望金額
※ 月々のお支払例は目安の試算となりますので、実際の金額とは異なる場合がございます。詳しくは店舗までお問合わせください。
- 倉敷市安江
-
JR山陽本線『倉敷』 徒歩20分 (約1600m)
倉敷市安江一戸建て | 物件情報
●2階バルコニー前にはオープンスペースがあります
●前面道路は6.7mあり、ゆったりした住宅地です
●セブンイレブンやザグザグが歩いて4~5分ほど
※鍵交換は買主負担
※駐車場は1台はカーポート有、2台目はやや狭いです
※給湯器交換必要:385,000円
物件の設備
- 上水道
- 公営水道
- 下水道
- 公共下水
- 都市ガス
- 食器洗浄乾燥機
- システムキッチン
- 浴室に窓
- 和室
- 納戸
- 全居室収納
物件の特徴
- 全室南向
- 前道6m以上
- 市街地が近い
- 2階建
- 角地
- 建築確認完了検査済証
- 新築
- 増改築設計図書
物件詳細情報
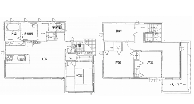
| 価格 | 2,650万円 | 間取り | 3LDK+S |
|---|---|---|---|
| 物件種別 | 中古一戸建て | ||
| 所在地 | 岡山県倉敷市安江 | ||
| アクセス |
|
||
| 建物面積 | 102.89㎡ | 駐車場 | あり 普通:1台 軽:1台 |
| 築年月 | 2006年(平成18年)07月築 | ||
| 建物構造 | 軽量鉄骨 2階建 | 工法 | |
| 主要採光 | バルコニー | ||
| 保証・評価 | |||
| リフォーム | |||
| 土地面積 | 実152.53㎡(46.14坪) | 接道 | 東側(公道)幅 約6.7m 北側(公道)幅 約6.9m |
| 私道 | セットバック | ||
| 地目 | 宅地 | 地勢 | |
| 権利 | 所有権 |
||
| 都市計画 | 市街化区域 |
用途地域 | 1種低層 |
| 建ぺい/容積率 | 50% / 100% | 土地国土法 | |
| 許可番号 | 建築基準法 | ||
| 法令制限 | |||
| 小学区 | 中洲小学校 徒歩13分 (約1000m) | 中学区 | 西中学校 徒歩4分 (約300m) |
| 現況 | 空 | 引渡 | 相談 |
| その他費用 | |||
| 周辺環境 | 倉敷市立精思高校 徒歩3分 (約210m) みらい保育園 徒歩4分 (約320m) 玉島信用金庫 八王寺支店 徒歩7分 (約500m) 倉敷八王寺郵便局 徒歩8分 (約580m) 山陽マルナカ老松店 徒歩10分 (約800m) ファミリーマート 倉敷老松五丁目店 徒歩10分 (約750m) 倉敷老松郵便局 徒歩10分 (約740m) 倉敷第一病院 徒歩11分 (約840m) なかやま牧場ハート酒津店 徒歩12分 (約890m) 中国銀行倉敷八王寺支店 徒歩11分 (約840m) |
||
| 備考 | ●2階バルコニー前にはオープンスペースがあります ●前面道路は6.7mあり、ゆったりした住宅地です ●セブンイレブンやザグザグが歩いて4~5分ほど ※鍵交換は買主負担 ※駐車場は1台はカーポート有、2台目はやや狭いです ※給湯器交換必要:385,000円 |
||
| 物件番号 | 4559021 | 取引態様 | 媒介 |
取扱店舗情報
ハウスドゥ 倉敷駅東 株式会社アールイープロジェクト 店舗詳細ページへ
| 電話番号 | 086-424-6400 |
|---|---|
| 所在地 | 〒710-0003 岡山県倉敷市平田681-4 |
| 営業時間 | 9:00~18:00 |
| 定休日 | 水曜日、年末年始 |
| 宅建免許番号 | 岡山県知事(2)第5855号 |
| アクセス | 店舗への地図はこちら |

来店ご予約
岡山県倉敷市で価格が似ている物件はこちら
- 岡山県
マイページ物件数 - 4,510件
岡山県中古一戸建て新着物件
- お近くの店舗を探す
-
おすすめ物件
-
-

-
- 中古一戸建て
- 1,480万円
-
岡山市中区福泊
-
岡山電軌東山本線東山岡電ミュージアム
-
-
-

-
- 中古一戸建て
- 100万円
-
岡山市北区建部町福渡
-
JR津山線福渡
-
-
-

-
- 中古一戸建て
- 2,500万円
-
倉敷市粒浦
-
水島臨海鉄道浦田
-
-
-

-
- 中古一戸建て
- 3,050万円
-
倉敷市二日市
-
JR山陽本線倉敷
-
-
-

-
- 中古一戸建て
- 2,580万円
-
倉敷市児島赤崎4丁目
-
JR本四備讃線児島
-
-
-

-
- 中古一戸建て
- 980万円
-
倉敷市真備町箭田
-
井原鉄道吉備真備
-
-
-

-
- 中古一戸建て
- 1,350万円
-
総社市宿
-
JR吉備線備中高松
-
-
-

-
- 中古一戸建て
- 2,390万円
-
高梁市川上町臘数
-
JR伯備線備中高梁
-
-
-

-
- 中古一戸建て
- 2,650万円
-
倉敷市白楽町
-
JR山陽本線倉敷
-
-
-

-
- 中古一戸建て
- 2,500万円
-
倉敷市東塚1丁目
-
水島臨海鉄道水島
-


























