熊本市南区島町5丁目の中古戸建
掲載情報更新日:2026年02月14日 次回更新予定日:2026年02月28日
- 2,498万円
-
- 借入ご希望金額
万円 - 借入期間
年 - 借入金利
% - 月々のお支払い金額
円
- 借入ご希望金額
※ 月々のお支払例は目安の試算となりますので、実際の金額とは異なる場合がございます。詳しくは店舗までお問合わせください。
- 熊本市南区島町5丁目
-
JR鹿児島本線『西熊本』 徒歩7分 (約550m)
JR豊肥本線『平成』 車11分(約4.3km)
九州産交バス『鳶町』 徒歩7分 (約500m)
熊本市南区島町5丁目一戸建て | 物件情報
《一気見ツアー今すぐOK》☆仲介手数料無料物件(80万円相当がお得!)お気軽にお問合せください♪
【内覧ツアー×最安値保証】ネットの物件、すべて当社で紹介可能!交渉力で「理想の価格」を叶えます
当社は通常かかる仲介手数料(物件価格の3%+6万円)が無料(例:3000万円の場合、90万円相当)
売主様への価格交渉も得意なので、どこよりもお安くご購入いただけるよう徹底サポートします!
他社様でお見積もりを取った後でも大丈夫!もっと安く買えるのでは?そんな悩みは当社が解決します
【内覧ツアー】
熊本県内全域の気になる物件をすべて当社でご内覧いただける『内覧ツアー』を実施中☆
新築・中古・中古マンションも!見学されたい物件を1日で内覧可能♪
窓口を一つに絞れるから、手間も時間もかかりません。
【最安値保証】
\最 安 値 徹 底 宣 言/
他社様よりも必ずお得にご購入いただけることをお約束します
当社ではオプション費用(エアコン、網戸、太陽光等)もお客様に代わり相見積もりします
トータルの費用が100万円以上変わることも!
全国700店舗以上展開!
ハウスドゥだからこその豊富な物件数・情報量でお客様のお家選びをトータルサポートいたします!
物件の設備
- 電気
- 上水道
- 公営水道
- 下水道
- 公共下水
- 側溝
- プロパンガス
- 個別プロパン
- 給湯
- IHクッキングヒータ
- コンロ三口
- グリル
- カウンターキッチン
- システムキッチン
- バス
- ユニットバス
- オートバス
- バス1坪以上
- 追焚機能
- トイレ
- 室内洗濯機置場
- 洗髪洗面化粧台
- 洗面所独立
- エアコン
- ダウンライト
- 省エネ給湯器
- モニタ付インターホン
- 火災警報器/報知機
- LDK15畳以上
- 2面採光
- 全室フローリング
- フローリング張替
- 床下収納
- シューズボックス
物件の特徴
- 内装リフォーム済
- 外装リフォーム済
- 内外装リフォーム済
- スーパーが近い
- 閑静な住宅街
- 通風良好
- 陽当り良好
- 2階建
- 即入居可
物件詳細情報
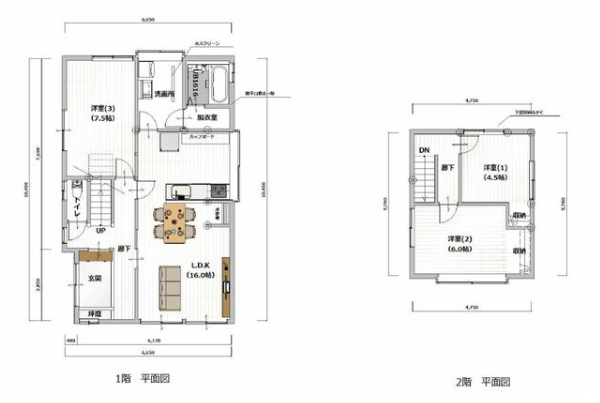
| 価格 | 2,498万円 | 間取り | 3LDK |
|---|---|---|---|
| 物件種別 | 中古一戸建て | ||
| 所在地 | 熊本県熊本市南区島町5丁目22-20 | ||
| アクセス |
|
||
| 建物面積 | 95.19㎡ | 駐車場 | あり 普通:3台 |
| 築年月 | 1988年(昭和63年)10月築 | ||
| 建物構造 | 木造 2階建 | 工法 | |
| 主要採光 | 南西向 | バルコニー | |
| 保証・評価 | |||
| リフォーム | 【水回り】2025年12月 キッチン・浴室・トイレ・洗面・給湯器 【外装】2025年12月 外壁 【内装】2025年12月 全面 ・壁、天井 ・床 ・全室クロス ・建具 ・サッシ 建具に関しては一部、既存のモノを使用しております。 |
||
| 土地面積 | 164.58㎡(49.78坪) | 接道 | |
| 私道 | セットバック | ||
| 地目 | 宅地 | 地勢 | |
| 権利 | 所有権 |
||
| 都市計画 | 市街化区域 |
用途地域 | 1種低層 |
| 建ぺい/容積率 | 40% / 80% | 土地国土法 | |
| 許可番号 | 建築基準法 | ||
| 法令制限 | |||
| 小学区 | 力合小学校 徒歩8分 (約590m) | 中学区 | 力合中学校 徒歩4分 (約280m) |
| 現況 | 空 | 引渡 | 即 |
| その他費用 | |||
| 周辺環境 | 力合小学校 徒歩8分 (約590m) 力合中学校 徒歩4分 (約280m) ひまわり保育園 徒歩3分 (約230m) デイリーヤマザキ熊本日吉店 徒歩7分 (約550m) マルショク 薄場店 徒歩11分 (約870m) いしはら皮膚外科クリニック 徒歩13分 (約1000m) 熊本南高江郵便局 徒歩16分 (約1230m) 肥後銀行 力合近見支店 徒歩5分 (約390m) イオンタウン西熊本 徒歩9分 (約710m) |
||
| 備考 | ・力合小学校まで徒歩8分(約590m) ・力合中学校まで徒歩4分(約280m) ・ひまわり保育園まで徒歩3分(約230m) ・デイリーヤマザキ 熊本日吉店まで徒歩7分(約550m) ・マルショク 薄場店まで徒歩11分(約870m) ・いしはら皮膚外科クリニックまで徒歩13分(約1000m) ・熊本南高江郵便局まで徒歩16分(約1230m) ・肥後銀行力合近見支店まで徒歩5分(約390m) ・イオンタウン西熊本まで徒歩9分(約710m) |
||
| 物件番号 | 4562271 | 取引態様 | 媒介 |
取扱店舗情報
ハウスドゥ 御幸田迎 株式会社Remado 店舗詳細ページへ
| 電話番号 | 096-243-3000 |
|---|---|
| 所在地 | 〒861-4108 熊本県熊本市南区幸田1丁目7-20 |
| 営業時間 | 10:00~18:00 |
| 定休日 | お盆、年末年始 |
| 宅建免許番号 | 熊本県知事(1)第5556号 |
| アクセス | 店舗への地図はこちら |

来店ご予約
熊本県熊本市南区で価格が似ている物件はこちら
- 熊本県
マイページ物件数 - 2,983件
最近見た物件
-
-

-
- 新築一戸建て
- 2,288万円
-
大分市大字細
-
JR日豊本線坂ノ市
-
熊本県中古一戸建て新着物件
-
-

-
- 中古一戸建て
- 1,498万円
-
熊本市南区野田3丁目
-
JR鹿児島本線川尻駅
-
-
-

-
- 中古一戸建て
- 1,758万円
-
熊本市南区日吉2丁目
-
JR鹿児島本線西熊本駅
-
-
-

-
- 中古一戸建て
- 750万円
-
熊本市北区徳王1丁目
-
JR鹿児島本線崇城大学前駅
-
-
-

-
- 中古一戸建て
- 1,498万円
-
熊本市南区野田3丁目
-
JR鹿児島本線川尻駅
-
-
-

-
- 中古一戸建て
- 1,758万円
-
熊本市南区日吉2丁目
-
JR鹿児島本線西熊本駅
-
-
-

-
- 中古一戸建て
- 2,280万円
-
熊本市北区梶尾町
-
熊本電気鉄道黒石駅
-
-
-

-
- 中古一戸建て
- 1,598万円
-
熊本市南区富合町杉島
-
JR鹿児島本線川尻駅
-
- お近くの店舗を探す
-
おすすめ物件
-
-

-
- 中古一戸建て
- 1,998万円
-
熊本市東区京塚本町
-
熊本市健軍線神水交差点
-
-
-

-
- 中古一戸建て
- 640万円
-
熊本市北区兎谷1丁目
-
熊本電気鉄道亀井
-
-
-

-
- 中古一戸建て
- 2,648万円
-
菊池郡菊陽町大字津久礼
-
JR豊肥本線三里木
-
-
-

-
- 中古一戸建て
- 2,790万円
-
合志市合生
-
熊本電気鉄道御代志
-
-
-

-
- 中古一戸建て
- 2,398万円
-
熊本市南区野口1丁目
-
JR鹿児島本線西熊本
-
-
-

-
- 中古一戸建て
- 2,598万円
-
熊本市東区月出6丁目
-
JR豊肥本線東海学園前
-
-
-

-
- 中古一戸建て
- 1,670万円
-
熊本市南区城南町藤山
-
JR三角線富合
-
-
-

-
- 中古一戸建て
- 5,500万円
-
熊本市北区楡木2丁目
-
JR豊肥本線武蔵塚
-
-
-

-
- 中古一戸建て
- 2,058万円
-
熊本市北区清水岩倉2丁目
-
熊本電気鉄道新須屋
-
-
-

-
- 中古一戸建て
- 1,500万円
-
合志市須屋
-
熊本電気鉄道三ツ石
-























担当エージェント:堀川 颯太
【月々の支払い例】
2500万円借り入れの場合
月々50,331円(頭金・ボーナス払いなし)
金利0.780%の場合(SBI新生銀行、金利優遇有)
変動金利 返済期間50年
※あくまで一例。条件有。
【周辺環境】
・力合小学校まで徒歩8分(約590m)
・力合中学校まで徒歩4分(約280m)
・ひまわり保育園まで徒歩3分(約230m)
・デイリーヤマザキ 熊本日吉店まで徒歩7分(約550m)
・マルショク 薄場店まで徒歩11分(約870m)
・いしはら皮膚外科クリニックまで徒歩13分(約1000m)
・熊本南高江郵便局まで徒歩16分(約1230m)
・肥後銀行力合近見支店まで徒歩5分(約390m)
・イオンタウン西熊本まで徒歩9分(約710m)
いつでもお気軽にご連絡ください☆彡
お問い合わせは『株式会社Remado』まで♪