熊本市南区島町5丁目の中古戸建
掲載情報更新日:2026年04月14日 次回更新予定日:2026年04月28日
- 2,498万円
-
- 借入ご希望金額
万円 - 借入期間
年 - 借入金利
% - 月々のお支払い金額
円
- 借入ご希望金額
※ 月々のお支払例は目安の試算となりますので、実際の金額とは異なる場合がございます。詳しくは店舗までお問合わせください。
- 熊本市南区島町5丁目
-
JR鹿児島本線『西熊本』 徒歩7分 (約550m)
JR鹿児島本線『川尻』 徒歩30分 (約2400m)
JR鹿児島本線『熊本』 徒歩53分 (約4200m)
熊本市南区島町5丁目一戸建て | 物件情報
【リフォーム済み】各居室収納やウォークインクローゼットなど収納力も充実。駐車スペースは3台可能◎
ご相談/ご内覧は土日祝日問わず平日も随時受付中♪
女性スタッフも在籍中です!
サービス内容
・気になる物件の【周辺エリア調査レポート】を無料でプレゼント!
・【銀行】【司法書士】【ハウスメーカー・工務店】など、
契約からお引渡しまでワンストップでご紹介・サポートいたします(すべて無料)
内覧は土・日・祝・平日すべて対応可能!
まずはお気軽にご見学ください。
現地集合・近隣でのお待ち合わせ、どちらもOKです!
お支払い・銀行サポートもお任せください
・諸費用や月々のお支払いシミュレーションのご提示
・銀行選びや自己資金のご相談
・地震・火災保険のご提案
・引越し業者のご紹介
仮審査・本審査のサポートまで、経験豊富なスタッフが丁寧にご案内いたします。
☆キッズスペース有の店内☆
土日のご相談・ご内覧可能です。
お子様とのご来店でもキッズスペースがございますのでご安心してご来店ください♪
お仕事終わりでもお電話対応可能です♪お気軽にお電話お待ちしております!
□お気軽にお問い合わせください♪
物件の設備
- 電気
- 上水道
- 下水道
- 側溝
- プロパンガス
- IHクッキングヒータ
- カウンターキッチン
- システムキッチン
- 独立キッチン
- II型キッチン
- バス
- オートバス
- バス1坪以上
- 追焚機能
- 温水洗浄便座
- 洗髪洗面化粧台
- エアコン
- 照明器具
- ダウンライト
- 省エネ給湯器
- モニタ付インターホン
- 火災警報器/報知機
- LDK15畳以上
- フローリング
- 全室フローリング
- 床下収納
物件の特徴
- セキュリティ充実
- 内装リフォーム後渡
- 外装リフォーム後渡
- 内外装リフォーム後渡
- 南向
- スーパーが近い
- 閑静な住宅街
- 市街地が近い
- 通風良好
- 陽当り良好
- 2階建
- 整形地
物件詳細情報
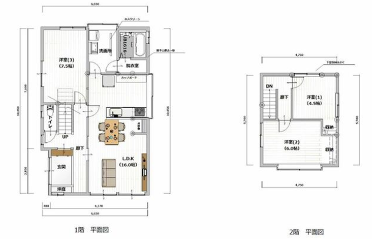
| 価格 | 2,498万円 | 間取り | 3LDK |
|---|---|---|---|
| 物件種別 | 中古一戸建て | ||
| 所在地 | 熊本県熊本市南区島町5丁目 | ||
| アクセス |
|
||
| 建物面積 | 95.19㎡ | 駐車場 | あり 普通:3台 |
| 築年月 | 1988年(昭和63年)10月築 | ||
| 建物構造 | 木造 2階建 | 工法 | |
| 主要採光 | バルコニー | ||
| 保証・評価 | |||
| リフォーム | |||
| 土地面積 | 164.58㎡(49.78坪) | 接道 | |
| 私道 | セットバック | ||
| 地目 | 宅地 | 地勢 | |
| 権利 | 所有権 |
||
| 都市計画 | 市街化区域 |
用途地域 | 1種低層 |
| 建ぺい/容積率 | 40% / 80% | 土地国土法 | |
| 許可番号 | 建築基準法 | ||
| 法令制限 | |||
| 小学区 | 力合小学校 徒歩5分 (約400m) | 中学区 | 力合中学校 徒歩5分 (約400m) |
| 現況 | 空 | 引渡 | 相談 |
| その他費用 | |||
| 周辺環境 | 力合中学校 徒歩3分 (約220m) 肥後銀行 飽田支店 徒歩5分 (約390m) 力合小学校 徒歩8分 (約590m) ドラッグイレブン島町店 徒歩6分 (約480m) ローソン 熊本薄場力合店 徒歩9分 (約650m) マックスバリュ西熊本店 徒歩9分 (約710m) イオンタウン西熊本 徒歩9分 (約720m) ファミリーマート 熊本薄場三丁目店 徒歩11分 (約850m) セブンイレブン 熊本近見2丁目店 徒歩14分 (約1100m) ニトリ熊本近見店 徒歩15分 (約1160m) |
||
| 備考 | |||
| 物件番号 | 4570192 | 取引態様 | 媒介 |
取扱店舗情報
ハウスドゥ 大江 まつばや百貨店不動産株式会社 店舗詳細ページへ
| 電話番号 | 096-206-1230 |
|---|---|
| 所在地 | 〒862-0971 熊本県熊本市中央区大江1丁目2-19 |
| 営業時間 | 9:00~18:00 |
| 定休日 | 水曜日 |
| 宅建免許番号 | 熊本県知事(1)第5729号 |
| アクセス | 店舗への地図はこちら |

来店ご予約
熊本県熊本市南区で価格が似ている物件はこちら
- 熊本県
マイページ物件数 - 3,009件
最近見た物件
-
-

-
- 新築一戸建て
- 5,498万円
-
千葉市美浜区磯辺1丁目
-
JR京葉線検見川浜
-
-
-

-
- 中古一戸建て
- 4,000万円
-
北九州市若松区青葉台南2丁目
-
JR鹿児島本線折尾
-
-
-

-
- 土地
- 798万円
-
熊本市南区城南町今吉野
-
JR三角線富合
-
熊本県中古一戸建て新着物件
-
-

-
- 中古一戸建て
- 2,698万円
-
熊本市東区尾ノ上4丁目
-
熊本市健軍線健軍町駅
-
-
-

-
- 中古一戸建て
- 1,758万円
-
熊本市南区日吉2丁目
-
JR鹿児島本線西熊本駅
-
-
-

-
- 中古一戸建て
- 3,598万円
-
熊本市東区健軍3丁目
-
熊本市健軍線健軍交番前駅
-
-
-

-
- 中古一戸建て
- 2,998万円
-
熊本市北区鶴羽田2丁目
-
熊本電気鉄道新須屋駅
-
-
-

-
- 中古一戸建て
- 1,298万円
-
熊本市西区小島3丁目
-
JR鹿児島本線西熊本駅
-
-
-

-
- 中古一戸建て
- 1,298万円
-
熊本市西区小島3丁目
-
JR鹿児島本線西熊本駅
-
-
-

-
- 中古一戸建て
- 3,198万円
-
八代市松江町
-
JR鹿児島本線八代駅
-
- お近くの店舗を探す
-
おすすめ物件
-
-

-
- 中古一戸建て
- 640万円
-
熊本市北区兎谷1丁目
-
熊本電気鉄道亀井
-
-
-

-
- 中古一戸建て
- 2,298万円
-
熊本市東区戸島西1丁目
-
熊本市健軍線健軍町
-
-
-

-
- 中古一戸建て
- 5,500万円
-
熊本市北区楡木2丁目
-
JR豊肥本線武蔵塚
-
-
-

-
- 中古一戸建て
- 3,098万円
-
合志市幾久富
-
JR豊肥本線光の森
-
-
-

-
- 中古一戸建て
- 4,698万円
-
熊本市南区八幡11丁目
-
JR鹿児島本線川尻
-
-
-

-
- 中古一戸建て
- 2,898万円
-
熊本市北区鶴羽田2丁目
-
熊本電気鉄道新須屋
-
-
-

-
- 中古一戸建て
- 2,498万円
-
熊本市東区花立5丁目
-
熊本市健軍線健軍町
-
-
-

-
- 中古一戸建て
- 1,798万円
-
熊本市東区小山5丁目
-
JR豊肥本線武蔵塚
-
-
-

-
- 中古一戸建て
- 1,300万円
-
菊池市下河原日向
-
熊本電気鉄道御代志
-
-
-

-
- 中古一戸建て
- 750万円
-
熊本市北区徳王1丁目
-
JR鹿児島本線崇城大学前
-





















担当エージェント:上 貴大
\土日祝日問わずご内覧可能です/
▼ご内覧までの流れ♪
まずはご希望のライフスタイルやご条件を丁寧にヒアリング。厳選した物件の中から、ご納得いただける住まいをご提案いたします。
ご内覧のスケジュールも、お客様のご都合に合わせて柔軟に調整いたします。
▼資金計画・住宅ローンもワンストップでサポート♪
「年収・資産に応じた最適な借入額を知りたい」「転職後でもローンは組めるか」などのお悩みに経験豊富な担当者が丁寧にご対応。安心して次のステージへ進めるよう、的確なアドバイスを行います。
自社HPでは、公開以外の物件もご紹介しております。