さいたま市見沼区大字蓮沼の中古戸建
NEW 01.22掲載情報更新日:2026年01月22日 次回更新予定日:2026年02月05日
- 2,980万円
-
- 借入ご希望金額
万円 - 借入期間
年 - 借入金利
% - 月々のお支払い金額
円
- 借入ご希望金額
※ 月々のお支払例は目安の試算となりますので、実際の金額とは異なる場合がございます。詳しくは店舗までお問合わせください。
- さいたま市見沼区大字蓮沼
-
東武野田線『大和田』 徒歩23分 (約1780m)
さいたま市見沼区大字蓮沼一戸建て | 物件情報
◇土地面積約30坪!◇カースペース1台◇3LDK◇住宅ローン相談乗ります!
まずは私たちにご連絡ください!どんな些細なことでも力になります!
◇住宅ローン相談◇
「他社で断られた」
「審査が通らない」
「返済をできるだけ抑えたい」
そんなお悩みもぜひお聞かせください。
お客様一人ひとりに寄り添い、これからの暮らしを見据えた“最適なご提案”をいたします。
◇現地見学会開催中◇
平日や仕事終わりの夜でも「今日見てみたい!」そんなときでもOK♪
お電話1本でスタッフがすぐに駆けつけます!
048-762-8871こちらから
◇ご案内方法◇
ご来店いただかなくても、現地待ち合わせ・自宅、最寄りまでの送迎サービスで柔軟に対応!周辺環境や他にも見たい物件もあわせてご案内できます!
◇ご来店方法◇
ナビで「ハウスドゥさいたま北宿通り」で検索♪
ローソンストア100に駐車場に4台駐車可能!
手ぶらでOK!キッズスペース完備でお子様ずれでも問題なし!
◇売却査定相談◇
「急な転勤」「相続による売却」「金銭的な理由」など住まいの売却をそれぞれです。
仲介はもちろんのこと、弊社独自のネットワークで買取案件もご相談できます!
物件の設備
- 電気
- 公営水道
- 下水道
- 都市ガス
- コンロ三口
- カウンターキッチン
- システムキッチン
- ユニットバス
- 追焚機能
- 浴室乾燥機
- トイレ2箇所
- 温水洗浄便座
- 火災警報器/報知機
- LDK15畳以上
- LDK18畳以上
- LDK20畳以上
- 2面採光
- 全室2面採光
- フローリング
- 24時間換気システム
- クローゼット
- クローゼット2箇所
- クローゼット3箇所
- バルコニー
物件の特徴
- 前道6m以上
- 南側道路面す
- 2階建
- 即入居可
物件詳細情報
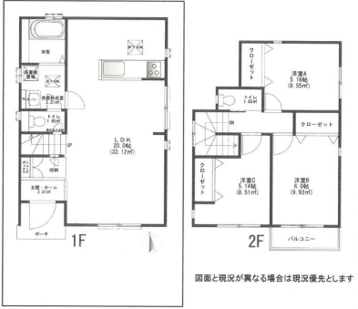
| 価格 | 2,980万円 | 間取り | 3LDK |
|---|---|---|---|
| 物件種別 | 中古一戸建て | ||
| 所在地 | 埼玉県さいたま市見沼区大字蓮沼 | ||
| アクセス |
|
||
| 建物面積 | 公84.92㎡ | 駐車場 | あり 普通:1台 |
| 築年月 | 2014年(平成26年)05月築 | ||
| 建物構造 | 木造 2階建 | 工法 | |
| 主要採光 | 南向 | バルコニー | |
| 保証・評価 | |||
| リフォーム | |||
| 土地面積 | 公100.2㎡(30.31坪) | 接道 | 南側(公道)幅 約6.0m 間口 約8.23m |
| 私道 | セットバック | ||
| 地目 | 宅地 | 地勢 | |
| 権利 | 所有権 |
||
| 都市計画 | 市街化区域 |
用途地域 | 1種低層 |
| 建ぺい/容積率 | 50% / 100% | 土地国土法 | |
| 許可番号 | 建築基準法 | ||
| 法令制限 | 蓮沼下特定土地区画事業27街区20画地 | ||
| 小学区 | 大谷小学校 徒歩5分 (約395m) | 中学区 | 大谷中学校 徒歩8分 (約600m) |
| 現況 | 空 | 引渡 | 即 |
| その他費用 | |||
| 備考 | ゴミ集積所:27街区21画地 面積2㎡ 持分8分の1 | ||
| 物件番号 | 4563789 | 取引態様 | 媒介 |
取扱店舗情報
ハウスドゥ さいたま北宿通り 株式会社アークウェイホーム 店舗詳細ページへ
| 電話番号 | 048-762-8871 |
|---|---|
| 所在地 | 〒336-0907 埼玉県さいたま市緑区道祖土1丁目26-5 |
| 営業時間 | 9:00~18:00 |
| 定休日 | 水曜日 |
| 宅建免許番号 | 埼玉県知事(1)第25521号 |
| アクセス | 店舗への地図はこちら |

来店ご予約
埼玉県さいたま市見沼区で価格が似ている物件はこちら
- 埼玉県
マイページ物件数 - 3,165件
最近見た物件
-
-

-
- 新築一戸建て
- 2,930万円
-
海部郡大治町大字長牧字向
-
名古屋市東山線中村公園
-
埼玉県中古一戸建て新着物件
-
-

-
- 中古一戸建て
- 1,680万円
-
さいたま市岩槻区大字小溝
-
東武野田線豊春駅
-
-
-

-
- 中古一戸建て
- 2,280万円
-
さいたま市岩槻区本丸3丁目
-
東武野田線東岩槻駅
-
-
-

-
- 中古一戸建て
- 3,000万円
-
さいたま市岩槻区加倉5丁目
-
東武野田線岩槻駅
-
-
-

-
- 中古一戸建て
- 2,980万円
-
さいたま市見沼区大字蓮沼
-
東武野田線大和田駅
-
-
-

-
- 中古一戸建て
- 4,480万円
-
川口市大字安行小山
-
東武伊勢崎・大師線草加駅
-
-
-

-
- 中古一戸建て
- 1,680万円
-
さいたま市見沼区大字中川
-
JR京浜東北・根岸線大宮駅
-
-
-

-
- 中古一戸建て
- 4,290万円
-
さいたま市見沼区大和田町1丁目
-
東武野田線大和田駅
-
- お近くの店舗を探す
-
おすすめ物件
-
-

-
- 中古一戸建て
- 2,499万円
-
上尾市大字平塚
-
JR高崎線上尾
-
-
-

-
- 中古一戸建て
- 3,780万円
-
さいたま市緑区大字中尾
-
JR武蔵野線東浦和
-
-
-

-
- 中古一戸建て
- 3,990万円
-
さいたま市緑区大間木2丁目
-
JR東北本線浦和
-
-
-

-
- 中古一戸建て
- 1,640万円
-
北葛飾郡杉戸町大字堤根
-
東武伊勢崎・大師線北春日部
-
-
-

-
- 中古一戸建て
- 730万円
-
北葛飾郡松伏町大字下赤岩
-
JR武蔵野線吉川
-
-
-

-
- 中古一戸建て
- 3,490万円
-
北足立郡伊奈町内宿台5丁目
-
埼玉新都市交通内宿
-
-
-

-
- 中古一戸建て
- 1,350万円
-
北葛飾郡松伏町田中3丁目
-
東武伊勢崎・大師線北越谷
-
-
-

-
- 中古一戸建て
- 2,999万円
-
三郷市早稲田6丁目
-
JR武蔵野線三郷
-
-
-

-
- 中古一戸建て
- 2,650万円
-
川越市岸町2丁目
-
東武東上線川越
-
-
-

-
- 中古一戸建て
- 2,990万円
-
川越市大字山田
-
西武新宿線本川越
-







~☆☆当日で案内可能な物件☆☆~さいたまの土地、戸建て、マンションのご相談はハウスドゥさいたま北宿通りにお気軽にお問い合わせ下さい!!