中古戸建 富合町清藤 2階建
NEW 01.27掲載情報更新日:2026年01月27日 次回更新予定日:2026年02月10日
- 2,900万円
-
- 借入ご希望金額
万円 - 借入期間
年 - 借入金利
% - 月々のお支払い金額
円
- 借入ご希望金額
※ 月々のお支払例は目安の試算となりますので、実際の金額とは異なる場合がございます。詳しくは店舗までお問合わせください。
- 熊本市南区富合町清藤
-
JR鹿児島本線『富合』 徒歩8分 (約640m)
JR鹿児島本線『宇土』 徒歩34分 (約2700m)
中古戸建 富合町清藤 2階建一戸建て | 物件情報
家族が帰宅を焦がれる4LDK。当社では豊富な不動産情報をご用意して、お客様をお待ちしております。皆様がより良い暮らしを送れるような不動産を紹介いたしますので、ぜひご利用ください。
物件の設備
- オール電化
- IHクッキングヒータ
- カウンターキッチン
- システムキッチン
- オートバス
- 追焚機能
- 浴室暖房
- 浴室乾燥機
- トイレ2箇所
- モニタ付インターホン
- 複層ガラス
- シューズインクローク
物件の特徴
- 2階建
物件詳細情報
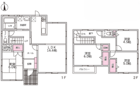
| 価格 | 2,900万円 | 間取り | 4LDK |
|---|---|---|---|
| 物件種別 | 中古一戸建て | ||
| 所在地 | 熊本県熊本市南区富合町清藤 | ||
| アクセス |
|
||
| 建物面積 | 96.39㎡ | 駐車場 | あり 普通:2台 |
| 築年月 | 2023年(令和5年)03月築 | ||
| 建物構造 | 木造 2階建 | 工法 | |
| 主要採光 | バルコニー | ||
| 保証・評価 | |||
| リフォーム | |||
| 土地面積 | 200.69㎡(60.70坪) | 接道 | |
| 私道 | セットバック | ||
| 地目 | 宅地 | 地勢 | |
| 権利 | 所有権 |
||
| 都市計画 | 調整区域 |
用途地域 | 指定無 |
| 建ぺい/容積率 | 40% / 80% | 土地国土法 | |
| 許可番号 | 建築基準法 | ||
| 法令制限 | |||
| 小学区 | 富合小学校 徒歩19分 (約1477m) | 中学区 | 富合中学校 徒歩31分 (約2410m) |
| 現況 | 居住中 | 引渡 | 相談 |
| その他費用 | |||
| 備考 | |||
| 物件番号 | 4570683 | 取引態様 | 媒介 |
取扱店舗情報
ハウスドゥ 熊本平成 新日本不動産株式会社 店舗詳細ページへ
| 電話番号 | 096-200-7031 |
|---|---|
| 所在地 | 〒860-0822 熊本県熊本市中央区本山町212-1 |
| 営業時間 | 9時~18時 |
| 定休日 | 無し |
| 宅建免許番号 | 熊本県知事(1)第5743号 |
| アクセス | 店舗への地図はこちら |

来店ご予約
熊本県熊本市南区で価格が似ている物件はこちら
- 熊本県
マイページ物件数 - 2,579件
最近見た物件
-
-

-
- 土地
- 1,400万円
-
高槻市北大樋町
-
JR東海道線高槻
-
-
-

-
- 土地
- 100万円
-
いなべ市員弁町大泉新田
-
三岐鉄道北勢線楚原
-
熊本県中古一戸建て新着物件
-
-

-
- 中古一戸建て
- 1,398万円
-
宇城市松橋町両仲間
-
JR鹿児島本線松橋駅
-
-
-

-
- 中古一戸建て
- 2,900万円
-
熊本市南区富合町清藤
-
JR鹿児島本線富合駅
-
-
-

-
- 中古一戸建て
- 2,398万円
-
合志市須屋
-
熊本電気鉄道須屋駅
-
-
-

-
- 中古一戸建て
- 2,498万円
-
菊池郡大津町美咲野3丁目
-
JR豊肥本線肥後大津駅
-
-
-

-
- 中古一戸建て
- 2,598万円
-
合志市須屋
-
熊本電気鉄道新須屋駅
-
-
-

-
- 中古一戸建て
- 2,498万円
-
熊本市南区島町5丁目
-
JR鹿児島本線西熊本駅
-
-
-

-
- 中古一戸建て
- 3,480万円
-
合志市竹迫
-
熊本電気鉄道御代志駅
-
- お近くの店舗を探す
-
おすすめ物件
-
-

-
- 中古一戸建て
- 1,798万円
-
熊本市東区小山5丁目
-
JR豊肥本線東海学園前
-
-
-

-
- 中古一戸建て
- 2,350万円
-
熊本市北区楠4丁目
-
JR豊肥本線武蔵塚
-
-
-

-
- 中古一戸建て
- 4,900万円
-
合志市御代志
-
熊本電気鉄道御代志
-
-
-

-
- 中古一戸建て
- 2,630万円
-
合志市御代志
-
熊本電気鉄道御代志
-
-
-

-
- 中古一戸建て
- 2,898万円
-
熊本市北区鶴羽田2丁目
-
熊本電気鉄道新須屋
-
-
-

-
- 中古一戸建て
- 2,498万円
-
合志市野々島
-
熊本電気鉄道御代志
-
-
-

-
- 中古一戸建て
- 1,680万円
-
熊本市南区城南町藤山
-
JR三角線富合
-
-
-

-
- 中古一戸建て
- 3,480万円
-
合志市竹迫
-
JR豊肥本線三里木
-
-
-

-
- 中古一戸建て
- 1,880万円
-
合志市須屋
-
熊本電気鉄道新須屋
-
-
-

-
- 中古一戸建て
- 2,398万円
-
熊本市東区沼山津1丁目
-
熊本市健軍線健軍町
-








担当エージェント:森本 のどか
当社では豊富な不動産情報をご用意して、お客様をお待ちしております。皆様がより良い暮らしを送れるような不動産を紹介いたしますので、ぜひご利用ください。