都島区友渕町1丁目中古戸建
NEW 02.09掲載情報更新日:2026年02月09日 次回更新予定日:2026年02月23日
- 4,990万円
-
- 借入ご希望金額
万円 - 借入期間
年 - 借入金利
% - 月々のお支払い金額
円
- 借入ご希望金額
※ 月々のお支払例は目安の試算となりますので、実際の金額とは異なる場合がございます。詳しくは店舗までお問合わせください。
- 大阪市都島区友渕町1丁目
-
大阪市谷町線『都島』 徒歩10分 (約800m)
JRおおさか東線『城北公園通』 徒歩15分 (約1200m)
大阪市今里筋線『関目成育』 徒歩25分 (約2000m)
都島区友渕町1丁目中古戸建一戸建て | 物件情報
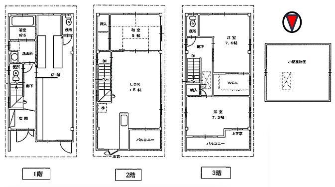
■ゆったりとした間取りの3LDK+1階店舗
*---*---*---*〇ここに注目〇*---*---*--*
〇物件特徴
・雨の日のお洗濯に便利な浴室乾燥機付き
・寒い冬でも快適に過ごせる床暖房完備
・WIC、屋根裏収納あり
〇2WAYアクセス
・大阪メトロ谷町線【都島駅】徒歩約10分
・JRおおさか東線【城北公園通駅】徒歩約15分
*---*---*---**---*----*---**---*---*---*
物件の設備
- 公営水道
- 公共下水
- 都市ガス
- システムキッチン
- バス
- ユニットバス
- オートバス
- 追焚機能
- 浴室乾燥機
- トイレ
- トイレ3箇所
- 室内洗濯機置場
- 洗面所独立
- 床暖房
- LDK15畳以上
- 和室
- フローリング
- クローゼット
- ウォークインクローゼット
- 屋根裏収納
物件の特徴
- 2沿線利用可
- 駅まで平坦
- 小学校徒歩10分以内
- 前道6m以上
- スーパーが近い
- 市街地が近い
- 都市近郊
- 3階建以上
- 即入居可
物件詳細情報
| 価格 | 4,990万円 | 間取り | 3LDK |
|---|---|---|---|
| 物件種別 | 中古一戸建て | ||
| 所在地 | 大阪府大阪市都島区友渕町1丁目 | ||
| アクセス |
|
||
| 建物面積 | 116.04㎡ | 駐車場 | なし |
| 築年月 | 2006年(平成18年)02月築 | ||
| 建物構造 | 鉄骨 3階建 | 工法 | |
| 主要採光 | 北向 | バルコニー | |
| 保証・評価 | |||
| リフォーム | |||
| 土地面積 | 53㎡(16.03坪) | 接道 | 北側幅 約11.5m 間口 約5.00m |
| 私道 | セットバック | ||
| 地目 | 宅地 | 地勢 | |
| 権利 | 所有権 |
||
| 都市計画 | 市街化区域 |
用途地域 | 1種住居 |
| 建ぺい/容積率 | 80% / 200% | 土地国土法 | |
| 許可番号 | 建築基準法 | ||
| 法令制限 | 準防火地域 | ||
| 小学区 | 友渕小学校 徒歩7分 (約550m) | 中学区 | 友渕中学校 徒歩3分 (約210m) |
| 現況 | 空 | 引渡 | 即 |
| その他費用 | |||
| 周辺環境 | 大阪市立友渕小学校 徒歩5分 (約350m) 大阪市立友渕中学校 徒歩5分 (約350m) ミニストップ 都島友渕町店 徒歩2分 (約160m) ライフ 都島高倉店 徒歩3分 (約240m) スギドラッグ 都島友渕店 徒歩2分 (約160m) ふみもとクリニック 徒歩2分 (約160m) 都島郵便局 徒歩5分 (約360m) 三井住友銀行 都島出張所 徒歩5分 (約400m) トレジャーキッズともぶち保育園 徒歩2分 (約160m) 友渕中央公園 徒歩5分 (約350m) |
||
| 備考 | |||
| 物件番号 | 4591600 | 取引態様 | 媒介 |
取扱店舗情報
| 電話番号 | 06-6167-8666 |
|---|---|
| 所在地 | 〒535-0005 大阪府大阪市旭区赤川2丁目2-4 PHOERME城北公園1階 |
| 営業時間 | 9:00~18:00 |
| 定休日 | |
| 宅建免許番号 | 大阪府知事(1)第64057号 |
| アクセス | 店舗への地図はこちら |

来店ご予約
- 大阪府
マイページ物件数 - 17,109件
最近見た物件
-
-

-
- 新築一戸建て
- 4,299万円
-
合志市幾久富
-
JR豊肥本線武蔵塚
-
大阪府中古一戸建て新着物件
-
-

-
- 中古一戸建て
- 2,399万円
-
八尾市神宮寺5丁目
-
近鉄大阪線恩智駅
-
-
-

-
- 中古一戸建て
- 3,480万円
-
高槻市下田部町1丁目
-
阪急電鉄京都線高槻市駅
-
-
-

-
- 中古一戸建て
- 1,800万円
-
守口市小春町
-
京阪本線土居駅
-
-
-

-
- 中古一戸建て
- 1,980万円
-
泉南郡田尻町嘉祥寺
-
南海電鉄本線吉見ノ里駅
-
-
-

-
- 中古一戸建て
- 3,070万円
-
枚方市町楠葉2丁目
-
京阪本線樟葉駅
-
-
-

-
- 中古一戸建て
- 800万円
-
泉南郡熊取町山の手台1丁目
-
JR阪和線熊取駅
-
-
-

-
- 中古一戸建て
- 4,680万円
-
松原市阿保7丁目
-
近鉄南大阪線河内松原駅
-
- お近くの店舗を探す
-
おすすめ物件
-
-

-
- 中古一戸建て
- 2,980万円
-
高槻市真上町5丁目
-
JR東海道線高槻
-
-
-

-
- 中古一戸建て
- 450万円
-
河内長野市大矢船中町
-
南海電鉄高野線三日市町
-
-
-

-
- 中古一戸建て
- 2,490万円
-
八尾市南本町7丁目
-
JR関西本線八尾
-
-
-

-
- 中古一戸建て
- 2,380万円
-
大阪市住之江区平林南2丁目
-
南港ポートタウン線(ニュートラム)平林
-
-
-

-
- 中古一戸建て
- 380万円
-
堺市中区深阪5丁
-
南海電鉄泉北線泉ケ丘
-
-
-

-
- 中古一戸建て
- 2,280万円
-
和泉市伯太町2丁目
-
JR阪和線信太山
-
-
-

-
- 中古一戸建て
- 2,599万円
-
茨木市庄1丁目
-
JR東海道線JR総持寺
-
-
-

-
- 中古一戸建て
- 2,280万円
-
東大阪市稲葉1丁目
-
近鉄難波・奈良線河内花園
-
-
-

-
- 中古一戸建て
- 2,980万円
-
茨木市北春日丘1丁目
-
JR東海道線茨木
-
-
-

-
- 中古一戸建て
- 3,980万円
-
大阪市都島区友渕町3丁目
-
JRおおさか東線城北公園通
-























担当エージェント:舛谷 尚丸
弊社は不動産売買専門の仲介会社とし、全国700店舗展開中のハウスドゥ城北公園でございます。
大阪市、守口市、門真市、東大阪市、八尾市を中心に物件のご提案をさせていただいております。
購入・売却に関する様々なご相談承っております。
弊社は他社様が掲載されている物件でもご紹介可能です。お気軽にご相談くださいませ。