奥沢8丁目 中古戸建
NEW 02.11掲載情報更新日:2026年02月11日 次回更新予定日:2026年02月25日
- 1億7,500万円
-
- 借入ご希望金額
万円 - 借入期間
年 - 借入金利
% - 月々のお支払い金額
円
- 借入ご希望金額
※ 月々のお支払例は目安の試算となりますので、実際の金額とは異なる場合がございます。詳しくは店舗までお問合わせください。
- 世田谷区奥沢8丁目
-
東急大井町線『九品仏』 徒歩9分 (約720m)
東急大井町線『尾山台』 徒歩10分 (約800m)
奥沢8丁目 中古戸建一戸建て | 物件情報
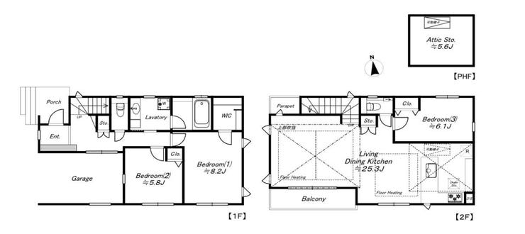
■南西×北西の角地 ■3LDK+WIC+グルニエ ■シャッター付ビルトインガレージ
《Access》
・大井町線「九品仏駅」歩9分
・同線「尾山台駅」歩10分
《Point》
・人気の角地♪
・2016年4月築
・シャッター付ビルトインガレージ
・リビング上部吹抜
・LDK約25.3帖のゆとりある間取り
・全居室2面採光&LDK3面採光 日当たり・通風良好
・WIC+小屋根裏収納で豊富な収納が可能
・LD床暖房完備
~2026年1月末完工予定~
・新規クロス張替え
・ハウスクリーニングなど
■お気軽にお問い合わせください♪
物件の設備
- 電気
- 公営水道
- 公共下水
- 都市ガス
- 給湯
- コンロ三口
- グリル
- ガスコンロ付
- カウンターキッチン
- システムキッチン
- オープンキッチン
- バス
- オートバス
- バスサイズ1620
- バス1坪以上
- 追焚機能
- 浴室暖房
- 浴室乾燥機
- 浴室に窓
- トイレ
- トイレ2箇所
- 温水洗浄便座
- 室内洗濯機置場
- 洗面所独立
- 床暖房
- リビング階段
- モニタ付インターホン
- 火災警報器/報知機
- グルニエ
- LDK20畳以上
- 2面採光
- 3面採光
- 全室2面採光
- 天井高2.5m以上
- 吹抜
- フローリング
- 全室フローリング
- シャッター雨戸
- 24時間換気システム
- クローゼット
- クローゼット2箇所
- ウォークインクローゼット
- 床下収納
- 全居室収納
- 屋根裏収納
- シューズボックス
- 庭
物件の特徴
- 内装リフォーム済
- 内装リフォーム後渡
- 耐震構造
- 前道6m以上
- 緑豊かな住宅地
- 閑静な住宅街
- 周辺交通量少なめ
- 市街地が近い
- 都市近郊
- 眺望良好
- 通風良好
- 陽当り良好
- 2階建
- 前面棟無
- 角地
- 修繕
- 点検記録
物件詳細情報
| 価格 | 1億7,500万円 | 間取り | 3LDK |
|---|---|---|---|
| 物件種別 | 中古一戸建て | ||
| 所在地 | 東京都世田谷区奥沢8丁目 | ||
| アクセス |
|
||
| 建物面積 | 公123.36㎡ | 駐車場 | あり 普通:1台 |
| 築年月 | 2016年(平成28年)04月築 | ||
| 建物構造 | 木造 2階建 | 工法 | |
| 主要採光 | 南西向 | バルコニー | |
| 保証・評価 | |||
| リフォーム | 【内装】2026年01月 壁、天井 ・他[ハウスクリーニング] |
||
| 土地面積 | 公92.62㎡(28.01坪) | 接道 | 北西側(公道)幅 約9.8m 南西側(私道)幅 約4.0m(位置指定) |
| 私道 | セットバック | ||
| 地目 | 宅地 | 地勢 | |
| 権利 | 所有権 |
||
| 都市計画 | 市街化区域 |
用途地域 | 2種低層 |
| 建ぺい/容積率 | 70% / 150% | 土地国土法 | |
| 許可番号 | 建築基準法 | ||
| 法令制限 | |||
| 小学区 | 九品仏小学校 徒歩5分 (約330m) | 中学区 | 八幡中学校 徒歩14分 (約1080m) |
| 現況 | 空 | 引渡 | 相談 |
| その他費用 | |||
| 周辺環境 | 世田谷区立九品仏小学校 徒歩5分 (約330m) ぽかぽか広場 徒歩7分 (約530m) 尾山台保育園 徒歩7分 (約550m) ワークマンプラス等々力店 徒歩9分 (約720m) スーパーオオゼキ尾山台店 徒歩10分 (約730m) ローソン世田谷玉堤一丁目店 徒歩10分 (約740m) くすりのセイジョー等々力店 徒歩12分 (約890m) 世田谷区立八幡中学校 徒歩14分 (約1080m) |
||
| 備考 | |||
| 物件番号 | 4594372 | 取引態様 | 媒介 |
取扱店舗情報
ハウスドゥ 千歳船橋 R2-CONNECT株式会社 店舗詳細ページへ
| 電話番号 | 03-5799-7621 |
|---|---|
| 所在地 | 〒156-0054 東京都世田谷区桜丘5丁目47-19 |
| 営業時間 | 9:00~19:00 |
| 定休日 | 火曜日、水曜日 |
| 宅建免許番号 | 東京都知事(1)第107079号 |
| アクセス | 店舗への地図はこちら |

来店ご予約
- 東京都
マイページ物件数 - 5,192件
最近見た物件
-
-

-
- 中古一戸建て
- 4,980万円
-
和泉市はつが野6丁目
-
南海電鉄泉北線和泉中央
-
-
-

-
- 新築一戸建て
- 4,248万円
-
福岡市南区長住5丁目
-
西鉄天神大牟田線西鉄平尾
-
-
-

-
- 新築一戸建て
- 2,630万円
-
伊予郡松前町大字筒井
-
伊予鉄道郡中線松前
-
東京都中古一戸建て新着物件
- お近くの店舗を探す
-
おすすめ物件
-
-

-
- 中古一戸建て
- 999万円
-
青梅市師岡町2丁目
-
JR青梅線河辺
-
-
-

-
- 中古一戸建て
- 4,780万円
-
国分寺市光町3丁目
-
JR中央本線国立
-
-
-

-
- 中古一戸建て
- 7,180万円
-
練馬区関町南2丁目
-
西武新宿線上石神井
-
-
-

-
- 中古一戸建て
- 3,280万円
-
葛飾区西水元6丁目
-
JR千代田・常磐緩行線亀有
-
-
-

-
- 中古一戸建て
- 9,500万円
-
世田谷区中町1丁目
-
東急大井町線等々力
-
-
-

-
- 中古一戸建て
- 4,080万円
-
青梅市滝ノ上町
-
JR青梅線青梅
-
-
-

-
- 中古一戸建て
- 7,380万円
-
三鷹市上連雀9丁目
-
JR中央本線三鷹
-
-
-

-
- 中古一戸建て
- 1億9,800万円
-
世田谷区成城8丁目
-
小田急小田原線成城学園前
-
-
-

-
- 中古一戸建て
- 6,780万円
-
練馬区東大泉7丁目
-
西武池袋・豊島線大泉学園
-
-
-

-
- 中古一戸建て
- 6,480万円
-
日野市東豊田1丁目
-
JR中央本線豊田
-










世田谷区物件はハウスドゥ千歳船橋へお任せください。
物件、資金計画、周辺環境もご案内させて頂きます♪
資料請求、ご見学お気軽にお問合せください。