2世帯可能な3階建て住宅!4台駐車可能♪東広島市西条町田口
NEW 03.07掲載情報更新日:2026年03月11日 次回更新予定日:2026年03月25日
- 2,650万円
-
- 借入ご希望金額
万円 - 借入期間
年 - 借入金利
% - 月々のお支払い金額
円
- 借入ご希望金額
※ 月々のお支払例は目安の試算となりますので、実際の金額とは異なる場合がございます。詳しくは店舗までお問合わせください。
- 東広島市西条町田口
-
JR山陽本線『西条』 車15分(約6.3km)
2世帯可能な3階建て住宅!4台駐車可能♪東広島市西条町田口一戸建て | 物件情報
物件の設備
- オール電化
- 公営水道
- 公共下水
- IHクッキングヒータ
- グリル
- システムキッチン
- トイレ
- トイレ2箇所
- 温水洗浄便座
- モニタ付インターホン
- LDK15畳以上
- 和室
- クローゼット
- クローゼット2箇所
- クローゼット3箇所
- ウォークインクローゼット
- 全居室収納
- 屋根裏収納
- バルコニー
- ワイドバルコニー
- 南面バルコニー
物件の特徴
- 前道6m以上
- 陽当り良好
- 3階建以上
- 平坦地
- 整形地
- 二世帯向
物件詳細情報
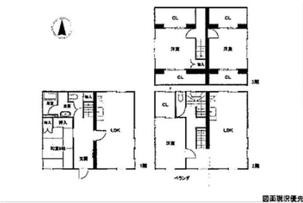
| 価格 | 2,650万円 | 間取り | 4LDK |
|---|---|---|---|
| 物件種別 | 中古一戸建て | ||
| 所在地 | 広島県東広島市西条町田口 | ||
| アクセス |
|
||
| 建物面積 | 公152.31㎡ | 駐車場 | あり 普通:4台 |
| 築年月 | 1995年(平成7年)02月築 | ||
| 建物構造 | 軽量鉄骨 3階建 | 工法 | |
| 主要採光 | 南向 | バルコニー | |
| 保証・評価 | |||
| リフォーム | |||
| 土地面積 | 公184.75㎡(55.88坪) | 接道 | 東側(公道)幅 約6.0m |
| 私道 | セットバック | ||
| 地目 | 宅地 | 地勢 | |
| 権利 | 所有権 |
||
| 都市計画 | 市街化区域 |
用途地域 | 1種中高 |
| 建ぺい/容積率 | 60% / 200% | 土地国土法 | |
| 許可番号 | 建築基準法 | ||
| 法令制限 | |||
| 小学区 | 郷田小学校 徒歩37分 (約2900m) | 中学区 | 向陽中学校 徒歩35分 (約2750m) |
| 現況 | 引渡 | 相談 | |
| その他費用 | |||
| 周辺環境 | ファミリーマート西条町田口店 徒歩10分 (約770m) セブンイレブン東広島田口店 徒歩17分 (約1300m) サイエンスパーク前郵便局 徒歩24分 (約1850m) エブリィ西条御薗宇店 徒歩23分 (約1830m) ウォンツ西条御薗宇店 徒歩23分 (約1800m) ゆめタウン学園店 徒歩34分 (約2690m) 東広島市立向陽中学校 徒歩35分 (約2750m) |
||
| 備考 | ミサワセラミックホームの家で3階建て 2世帯仕様のオール電化住宅 |
||
| 物件番号 | 4627401 | 取引態様 | 媒介 |
取扱店舗情報
ハウスドゥ 八本松正力 株式会社ノア・コーポレーション 店舗詳細ページへ
| 電話番号 | 082-490-3341 |
|---|---|
| 所在地 | 〒739-0132 広島県東広島市八本松町正力1089-6 |
| 営業時間 | 9:00~18:00 |
| 定休日 | 水曜日、年末年始 |
| 宅建免許番号 | 広島県知事(1)第11474号 |
| アクセス | 店舗への地図はこちら |

来店ご予約
- 広島県
マイページ物件数 - 4,819件
広島県中古一戸建て新着物件
-
-

-
- 収益
- 100万円
-
尾道市長江2丁目
-
JR山陽本線尾道駅
-
-
-

-
- 収益
- 100万円
-
尾道市長江2丁目
-
JR山陽本線尾道駅
-
-
-

-
- 中古一戸建て
- 4,480万円
-
尾道市栗原町
-
JR山陽新幹線新尾道駅
-
-
-

-
- 中古一戸建て
- 4,480万円
-
尾道市栗原町
-
JR山陽新幹線新尾道駅
-
-
-

-
- 中古一戸建て
- 7,480万円
-
広島市西区南観音2丁目
-
広島電鉄江波線舟入川口町駅
-
-
-

-
- 中古一戸建て
- 2,900万円
-
東広島市八本松東2丁目
-
JR山陽本線寺家駅
-
-
-

-
- 中古一戸建て
- 4,498万円
-
広島市東区牛田東3丁目
-
広島電鉄白島線白島駅
-
- お近くの店舗を探す
-
おすすめ物件
-
-

-
- 中古一戸建て
- 500万円
-
尾道市久山田町
-
JR山陽新幹線新尾道
-
-
-

-
- 中古一戸建て
- 300万円
-
尾道市御調町大蔵
-
本村バス停
-
-
-

-
- 中古一戸建て
- 2,880万円
-
福山市神辺町
-
JR福塩線湯田村
-
-
-

-
- 中古一戸建て
- 2,300万円
-
福山市新涯町6丁目
-
JR山陽本線東福山
-
-
-

-
- 中古一戸建て
- 2,399万円
-
福山市柳津町5丁目
-
JR山陽本線松永
-
-
-

-
- 中古一戸建て
- 200万円
-
尾道市久保町
-
旭が丘団地バス停
-
-
-

-
- 中古一戸建て
- 300万円
-
尾道市栗原町
-
JR山陽新幹線新尾道
-
-
-

-
- 中古一戸建て
- 1,500万円
-
福山市道三町
-
JR山陽本線福山
-
-
-

-
- 中古一戸建て
- 390万円
-
福山市神辺町字西中条
-
井原鉄道湯野
-
-
-

-
- 中古一戸建て
- 3,300万円
-
福山市柳津町
-
JR山陽本線松永
-


