大津市湖城が丘の中古戸建
掲載情報更新日:2026年04月10日 次回更新予定日:2026年04月24日
- 2,580万円
-
- 借入ご希望金額
万円 - 借入期間
年 - 借入金利
% - 月々のお支払い金額
円
- 借入ご希望金額
※ 月々のお支払例は目安の試算となりますので、実際の金額とは異なる場合がございます。詳しくは店舗までお問合わせください。
- 大津市湖城が丘
-
JR東海道線『膳所』 徒歩11分 (約880m)
京阪電鉄石山坂本線『京阪膳所』 徒歩11分 (約880m)
京阪電鉄石山坂本線『錦』 徒歩9分 (約720m)
大津市湖城が丘一戸建て | 物件情報
物件の設備
- 電気
- オール電化
- 上水道
- 公営水道
- 下水道
- 公共下水
- 浄水器
- 食器洗浄乾燥機
- IHクッキングヒータ
- コンロ三口
- グリル
- カウンターキッチン
- バス
- ユニットバス
- 浴室に窓
- トイレ
- 温水洗浄便座
- 室内洗濯機置場
- 洗面所独立
- モニタ付インターホン
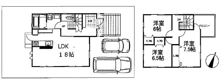
- LDK15畳以上
- 全居室6畳以上
- フローリング
- クローゼット
- 全居室収納
- シューズボックス
- バルコニー
- 庭
物件の特徴
- 2沿線利用可
- 前道6m以上
- 花火が見える
- 2階建
物件詳細情報
| 価格 | 2,580万円 | 間取り | 3LDK |
|---|---|---|---|
| 物件種別 | 中古一戸建て | ||
| 所在地 | 滋賀県大津市湖城が丘 | ||
| アクセス |
|
||
| 建物面積 | 93.56㎡ | 駐車場 | あり 普通:2台 |
| 築年月 | 2011年(平成23年)02月築 | ||
| 建物構造 | 木造 2階建 | 工法 | |
| 主要採光 | バルコニー | ||
| 保証・評価 | |||
| リフォーム | |||
| 土地面積 | 公146.55㎡(44.33坪) | 接道 | 東側(公道)幅 約6.0m 間口 約8.60m |
| 私道 | セットバック | ||
| 地目 | 宅地 | 地勢 | |
| 権利 | 所有権 |
||
| 都市計画 | 市街化区域 |
用途地域 | 1種住居 |
| 建ぺい/容積率 | 60% / 200% | 土地国土法 | |
| 許可番号 | 建築基準法 | ||
| 法令制限 | 宅地造成工事規制区域・第3種高度地区 | ||
| 小学区 | 膳所小学校 徒歩15分 (約1200m) | 中学区 | 粟津中学校 徒歩33分 (約2600m) |
| 現況 | 居住中 | 引渡 | 相談 |
| その他費用 | |||
| 周辺環境 | 湖のこ保育園 徒歩6分 (約410m) 膳所幼稚園 徒歩19分 (約1450m) コープぜぜ 徒歩12分 (約920m) フレンドマート膳所店 徒歩12分 (約950m) ローソン 国道膳所店 徒歩6分 (約460m) ドラッグユタカ 膳所店 徒歩9分 (約650m) |
||
| 備考 | |||
| 物件番号 | 4636331 | 取引態様 | 媒介 |
取扱店舗情報
ハウスドゥ 大津石山 株式会社マキ不動産販売 店舗詳細ページへ
| 電話番号 | 077-531-1777 |
|---|---|
| 所在地 | 〒520-0832 滋賀県大津市粟津町2-63 マキ本社ビル |
| 営業時間 | 9:00~18:30 |
| 定休日 | 水曜日・第3火曜日 |
| 宅建免許番号 | 滋賀県知事(5)第3019号 |
| アクセス | 店舗への地図はこちら |

来店ご予約
滋賀県大津市で価格が似ている物件はこちら
- 滋賀県
マイページ物件数 - 2,868件
最近見た物件
-
-

-
- 土地
- 3,530万円
-
松山市柳井町1丁目
-
伊予鉄道横河原線石手川公園
-
滋賀県中古一戸建て新着物件
- お近くの店舗を探す
-
おすすめ物件
-
-

-
- 中古一戸建て
- 1,480万円
-
大津市瀬田6丁目
-
JR東海道線石山
-
-
-

-
- 中古一戸建て
- 3,880万円
-
大津市大将軍3丁目
-
JR東海道線瀬田
-
-
-

-
- 中古一戸建て
- 3,280万円
-
彦根市野瀬町
-
JR東海道線南彦根
-
-
-

-
- 中古一戸建て
- 3,000万円
-
大津市堅田1丁目
-
JR湖西線堅田
-
-
-

-
- 中古一戸建て
- 1,990万円
-
近江八幡市安土町常楽寺
-
JR東海道線安土
-
-
-

-
- 中古一戸建て
- 5,498万円
-
守山市赤野井町
-
JR東海道線守山
-
-
-

-
- 中古一戸建て
- 3,498万円
-
大津市松が丘6丁目
-
JR東海道線南草津
-
-
-

-
- 中古一戸建て
- 1,050万円
-
大津市朝日1丁目
-
JR湖西線小野
-
-
-

-
- 中古一戸建て
- 980万円
-
彦根市日夏町
-
JR東海道線河瀬
-
-
-

-
- 中古一戸建て
- 2,200万円
-
大津市島の関
-
JR東海道線大津
-












