JUグランドマンションマツバシ 中古マンション 宮崎市末広2丁目の中古マンション
掲載情報更新日:2026年02月17日 次回更新予定日:2026年03月03日
- 1,790万円
-
- 借入ご希望金額
万円 - 借入期間
年 - 借入金利
% - 月々のお支払い金額
円
- 借入ご希望金額
※ 月々のお支払例は目安の試算となりますので、実際の金額とは異なる場合がございます。詳しくは店舗までお問合わせください。
- 宮崎市末広2丁目
-
JR日豊本線『宮崎』 徒歩25分 (約1940m)
JR日豊本線『南宮崎』 徒歩35分 (約2740m)
JR日豊本線『宮崎神宮』 徒歩45分 (約3570m)
宮崎交通『松橋町』 徒歩2分 (約160m)
宮崎市末広2丁目マンション | 物件情報
2025年3月内装リフォーム済!松橋町バス停徒歩2分・眺望良好な6階のお部屋です♪
・2025年3月リフォーム済みのきれいなお部屋
・6階部分で眺望・日当たり良好
・JR「宮崎」駅まで徒歩25分、利便性◎
・周辺にはスーパーやバス停など生活施設充実
・投資用としても、自己居住用としてもおすすめの一室!
物件の設備
- フローリング張替
物件の特徴
- 管理人日勤
- 内装リフォーム済
- 市街地が近い
- 眺望良好
- 陽当り良好
物件詳細情報
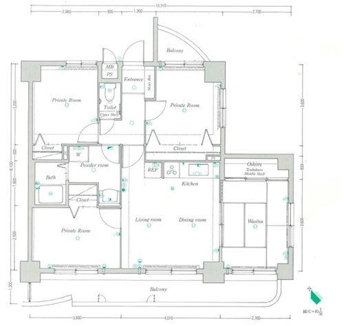
| 価格 | 1,790万円 | 間取り | 4LDK |
|---|---|---|---|
| 物件種別 | 中古マンション | ||
| 所在地 | 宮崎県宮崎市末広2丁目 | ||
| アクセス |
|
||
| 専有面積 | 壁芯 69.81㎡ | 所在階 | 8階建/6階部分 |
| 主要採光 | 南西向 | バルコニー | |
| その他 | |||
| 権利 | 所有権 |
||
| 保証・評価 | |||
| リフォーム | 【水回り】2025年03月 浴室・トイレ 【内装】2025年03月 床 ・他[洗面クロス] |
||
| 総戸数 | 34戸 | 面積 | |
| 築年月 | 1989年(平成1年)10月築 | 建物構造 | RC |
| 施工会社 | |||
| 管理会社 | 東福互光 | 管理方式 | 全部委託 日勤管理 |
| 駐車場 | |||
| 都市計画 | 市街化区域 |
用途地域 | 2種住居 |
| 建ぺい/容積率 | 60% / 200% | 土地国土法 | |
| 法令制限 | |||
| 小学区 | 小戸小学校 徒歩8分 (約600m) | 中学区 | 宮崎西中学校 徒歩19分 (約1480m) |
| 現況 | 空 | 引渡 | 相談 |
| 管理費 | 8,770円/月 | 修繕積立金 | 14,620円/月 |
| その他費用 | |||
| 周辺環境 | セブンイレブン 宮崎松橋2丁目 徒歩2分 (約90m) コスモス 元宮店 徒歩5分 (約380m) 鮮ど市場 元宮店 徒歩7分 (約500m) 宮崎県立宮崎病院 徒歩7分 (約500m) 小戸小学校 徒歩8分 (約600m) 宮崎医療センター病院 徒歩8分 (約610m) 宮崎銀行 大工町支店 徒歩8分 (約620m) セブンイレブン 宮崎大工町店 徒歩9分 (約680m) セブンイレブン 宮崎恵比寿通り 徒歩8分 (約630m) セブンイレブン 宮崎松橋1丁目店 徒歩8分 (約630m) |
||
| 備考 | 眺望良好♪ 2025年3月に内装をリフォームしたばかりの物件です。 |
||
| 物件番号 | 4235297 | 取引態様 | 媒介 |
取扱店舗情報
| 電話番号 | 0985-86-7336 |
|---|---|
| 所在地 | 〒889-1607 宮崎県宮崎市清武町加納3丁目16 メモワールII101号室 |
| 営業時間 | 9:00~20:00 |
| 定休日 | 不定休 |
| 宅建免許番号 | 宮崎県知事(1)第4995号 |
| アクセス | 店舗への地図はこちら |

来店ご予約
宮崎県宮崎市で価格が似ている物件はこちら
- 宮崎県
マイページ物件数 - 1,584件
最近見た物件
-
-

-
- 新築一戸建て
- 2,580万円
-
瀬戸市品野町4丁目
-
名鉄瀬戸線尾張瀬戸
-
-
-

-
- 中古一戸建て
- 3,880万円
-
総社市三輪
-
JR伯備線総社
-
-
-

-
- 中古一戸建て
- 1,750万円
-
丹羽郡大口町替地2丁目
-
名鉄犬山線布袋
-
宮崎県中古マンション新着物件
-
-

-
- 中古マンション
- 4,850万円
-
宮崎市高千穂通1丁目
-
JR日豊本線宮崎駅
-
-
-

-
- 中古マンション
- 4,550万円
-
宮崎市高千穂通1丁目
-
JR日豊本線宮崎駅
-
-
-

-
- 中古マンション
- 1,498万円
-
宮崎市鶴島1丁目
-
JR日豊本線宮崎駅
-
-
-

-
- 中古マンション
- 1,180万円
-
宮崎市中津瀬町
-
JR日豊本線宮崎駅
-
-
-

-
- 中古マンション
- 1,180万円
-
宮崎市中津瀬町
-
JR日豊本線宮崎駅
-
-
-

-
- 中古マンション
- 400万円
-
宮崎市吾妻町
-
JR日豊本線宮崎駅
-
-
-

-
- 中古マンション
- 2,980万円
-
宮崎市橘通東1丁目
-
JR日豊本線宮崎駅
-
- お近くの店舗を探す
-
おすすめ物件
-
-

-
- 中古マンション
- 1,580万円
-
宮崎市大字恒久
-
JR日豊本線南宮崎
-











担当エージェント:小玉 賢太
末広2丁目にある人気の分譲マンション「JUグランドマンションマツバシ」。
604号室は2025年3月に内装をリフォーム済みで、すぐにお住まいいただけます♪
周辺には飲食店やスーパー、コンビニもあり、生活の利便性も◎
単身の方やご夫婦、また投資物件をお探しの方にもぴったりです。
ご内覧も随時受付中!お気軽にお問い合わせください。