プレステージマンションクレール 宮崎市大字恒久の中古マンション
掲載情報更新日:2026年05月23日 次回更新予定日:2026年06月06日
- 1,580万円
-
- 借入ご希望金額
万円 - 借入期間
年 - 借入金利
% - 月々のお支払い金額
円
- 借入ご希望金額
※ 月々のお支払例は目安の試算となりますので、実際の金額とは異なる場合がございます。詳しくは店舗までお問合わせください。
- 宮崎市大字恒久
-
JR日豊本線『南宮崎』 徒歩11分 (約820m)
JR宮崎空港線『田吉』 徒歩27分 (約2160m)
JR日豊本線『加納』 徒歩32分 (約2550m)
宮崎交通『中恒久』 徒歩6分 (約480m)
宮崎市大字恒久マンション | 物件情報
駅近で便利な恒久エリア!南向きで明るい3LDKマンション。
◆ 南宮崎駅徒歩11分の好立地
通勤・通学に便利で、日常の移動がスムーズです。
◆ 南東向き×6階の明るい住戸
日当たり・通風ともに良好で、洗濯物も乾きやすい環境です。
◆ 管理人日勤で安心の管理体制
共用部もきれいに保たれ、マンション管理がしっかりしています。
◆ オール電化で経済的な暮らし
IHクッキングヒーターで安心・快適な住環境を実現します。
◆ 周辺施設が充実の便利エリア
宮交シティ、トライアル、ニトリモールなど生活施設が徒歩圏内。
物件の設備
- オール電化
- IHクッキングヒーター
- コンロ三口
- カウンターキッチン
- システムキッチン
- トイレ
- 温水洗浄便座
- 室内洗濯機置場
- 洗髪洗面化粧台
- モニタ付インターホン
- 和室
- フローリング
- クローゼット
- シューズボックス
- エレベーター
物件の特徴
- 管理人日勤
- 駅まで平坦
- 通風良好
- 陽当り良好
物件詳細情報
| 価格 | 1,580万円 | 間取り | 3LDK |
|---|---|---|---|
| 物件種別 | 中古マンション | ||
| 所在地 | 宮崎県宮崎市大字恒久 | ||
| アクセス |
|
||
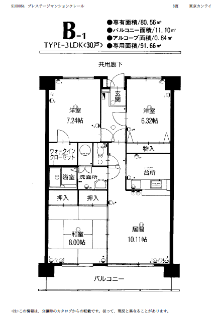
| 専有面積 | 壁芯 77.38㎡ | 所在階 | 11階建/6階部分 |
| 主要採光 | 南東向 | バルコニー | |
| その他 | |||
| 権利 | 所有権 |
||
| 保証・評価 | |||
| リフォーム | |||
| 総戸数 | 面積 | 敷地:3632.18㎡ | |
| 築年月 | 1993年(平成5年)01月築 | 建物構造 | RC |
| 施工会社 | |||
| 管理会社 | 東福互光株式会社 | 管理方式 | 一部管理 日勤管理 |
| 駐車場 | 【駐車場】空有 料金:3,500円/月 |
||
| 都市計画 | 市街化区域 |
用途地域 | 1種住居 |
| 建ぺい/容積率 | 60% / 200% | 土地国土法 | |
| 法令制限 | |||
| 小学区 | 恒久小学校 徒歩17分 (約1340m) | 中学区 | 大淀中学校 徒歩19分 (約1510m) |
| 現況 | 居住中 | 引渡 | 相談 |
| 管理費 | 6,400円/月 | 修繕積立金 | 11,400円/月 |
| その他費用 | |||
| 周辺環境 | 鵬翔中学校 徒歩2分 (約140m) ドラッグストアモリ 恒久店 徒歩3分 (約210m) 宮交シティ 徒歩7分 (約550m) スーパーセンタートライアル宮崎恒久店 徒歩8分 (約600m) ローソン 宮崎大淀四丁目店 徒歩8分 (約630m) 南宮崎駅 徒歩11分 (約820m) 鮮ど市場 南宮崎店 徒歩13分 (約980m) 宮崎銀行 西大淀出張所 徒歩13分 (約980m) 宮崎銀行 大淀支店 徒歩12分 (約940m) ニトリモール宮崎 徒歩15分 (約1130m) |
||
| 備考 | |||
| 物件番号 | 4337291 | 取引態様 | 一般媒介 |
取扱店舗情報
| 電話番号 | 0985-86-7336 |
|---|---|
| 所在地 | 〒889-1607 宮崎県宮崎市清武町加納3丁目16 メモワールII101号室 |
| 営業時間 | 9:00~20:00 |
| 定休日 | 不定休 |
| 宅建免許番号 | 宮崎県知事(2)第4995号 |
| アクセス | 店舗への地図はこちら |

来店ご予約
宮崎県宮崎市で価格が似ている物件はこちら
- 宮崎県
マイページ物件数 - 1,509件
最近見た物件
-
-

-
- 収益
- 780万円
-
大分市古国府1丁目
-
JR久大本線古国府
-
-
-

-
- 新築一戸建て
- 2,798万円
-
菊池郡菊陽町大字津久礼
-
JR豊肥本線三里木
-
宮崎県中古マンション新着物件
- お近くの店舗を探す
-
おすすめ物件
-
-

-
- 中古マンション
- 1,580万円
-
宮崎市大字恒久
-
JR日豊本線南宮崎
-
































担当エージェント:小玉 賢太
南宮崎駅近くで暮らしやすい環境がそろった3LDKです。
明るい南東向きの6階住戸で、オール電化の安心仕様。
生活施設も充実しており快適にお過ごしいただけます。