ルネ千里丘2号棟 吹田市山田南の中古マンション
掲載情報更新日:2026年02月07日 次回更新予定日:2026年02月21日
- 2,250万円
-
- 借入ご希望金額
万円 - 借入期間
年 - 借入金利
% - 月々のお支払い金額
円
- 借入ご希望金額
※ 月々のお支払例は目安の試算となりますので、実際の金額とは異なる場合がございます。詳しくは店舗までお問合わせください。
- 吹田市山田南
-
JR東海道線『千里丘』 徒歩21分 (約1650m)
JR東海道線『岸辺』 徒歩24分 (約1900m)
阪急電鉄京都線『摂津市』 徒歩27分 (約2110m)
吹田市山田南マンション | 物件情報
水廻り設備全て交換 2LDKへ変更 全居室フルリフォーム
住宅ローン・資金計画にお悩みの方、是非当社にご相談ください!
住宅購入・お住み替えにつきもののお悩みを一緒に解決していきましょう!
・頭金0円で購入したい・・・
・駅近くのマンションに住み替えたい・・・
・住宅ローンが通るか不安・・・
・頭金が用意できない・・・
・毎月いくらまで払えるかわからない・・・
など、様々なお悩みをお持ちの方。
お気軽にお申し付け下さい♪
★物件のご内覧は、ご自宅への送迎や指定場所お待合わせでのご案内可。
★キッズスペース完備!DVDおもちゃなどご用意していますので安心してご来店ください。
★お客様専用駐車場完備!お気軽にご来店お待ちいたしております。
物件の設備
- 食器洗浄乾燥機
- システムキッチン
- オートバス
- 浴室乾燥機
- 温水洗浄便座
- モニタ付インターホン
- LDK20畳以上
- 全室フローリング
- 全居室収納
- 平面駐車場
- エレベーター
物件の特徴
- 管理人日勤
- 2沿線利用可
- 小学校徒歩10分以内
- 整備された歩道
- 緑豊かな住宅地
- スーパーが近い
- 通風良好
- 陽当り良好
- ペット相談
- ペット対応
物件詳細情報
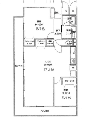
| 価格 | 2,250万円 | 間取り | 2LDK |
|---|---|---|---|
| 物件種別 | 中古マンション | ||
| 所在地 | 大阪府吹田市山田南 | ||
| アクセス |
|
||
| 専有面積 | 78.98㎡ | 所在階 | 11階建/2階部分 |
| 主要採光 | 南東向 | バルコニー | |
| その他 | |||
| 権利 | 所有権 |
||
| 保証・評価 | |||
| リフォーム | |||
| 総戸数 | 487戸 | 面積 | |
| 築年月 | 1975年(昭和50年)06月築 | 建物構造 | SRC |
| 施工会社 | 株式会社長谷川工務店 | ||
| 管理会社 | 株式会社浪速管理 | 管理方式 | 全部委託 日勤管理 |
| 駐車場 | |||
| 都市計画 | 市街化区域 |
用途地域 | 2種中高 |
| 建ぺい/容積率 | 60% / 200% | 土地国土法 | |
| 法令制限 | |||
| 小学区 | 山田第五小学校 徒歩8分 (約570m) | 中学区 | 山田中学校 徒歩14分 (約1090m) |
| 現況 | 空 | 引渡 | 相談 |
| 管理費 | 6,780円/月 | 修繕積立金 | |
| その他費用 | |||
| 周辺環境 | JR千里丘駅 徒歩21分 (約1650m) JR岸辺 徒歩24分 (約1900m) 阪急摂津市駅 徒歩27分 (約2110m) 阪急正雀駅 徒歩30分 (約2380m) 吹田市立山田第五小学校 徒歩8分 (約570m) 吹田市立山田中学校 徒歩14分 (約1090m) イズミヤ 千里丘店 徒歩7分 (約530m) 大型生鮮スーパーたこ一 千里丘店 徒歩4分 (約300m) スギ薬局 吹田店 徒歩5分 (約380m) ファミリーマート 吹田山田南店 徒歩5分 (約380m) |
||
| 備考 | |||
| 物件番号 | 4270606 | 取引態様 | 媒介 |
取扱店舗情報
ハウスドゥ 阪急茨木市駅南 株式会社エムアイエム 店舗詳細ページへ
| 電話番号 | 072-697-8701 |
|---|---|
| 所在地 | 〒567-0827 大阪府茨木市稲葉町11-8 ローズビルウチダ1F |
| 営業時間 | 10:00~19:00 |
| 定休日 | 水曜日、年末年始 |
| 宅建免許番号 | 大阪府知事(1)第64466号 |
| アクセス | 店舗への地図はこちら |

来店ご予約
大阪府吹田市で価格が似ている物件はこちら
- 大阪府
マイページ物件数 - 16,922件
最近見た物件
-
-

-
- 新築一戸建て
- 2,390万円
-
瀬戸市秋葉町
-
名鉄瀬戸線尾張瀬戸
-
-
-

-
- 中古マンション
- 2,040万円
-
泉南市男里6丁目
-
南海電鉄本線樽井
-
-
-

-
- 中古マンション
- 3,590万円
-
春日市下白水北5丁目
-
JR博多南線博多南
-
大阪府中古マンション新着物件
-
-

-
- 中古マンション
- 3,180万円
-
八尾市安中町3丁目
-
JR関西本線八尾駅
-
-
-

-
- 中古マンション
- 1,980万円
-
泉佐野市下瓦屋3丁目
-
南海電鉄本線井原里駅
-
-
-

-
- 中古マンション
- 1,780万円
-
大阪市城東区中央3丁目
-
大阪市長堀鶴見緑地線蒲生四丁目駅
-
-
-

-
- 中古マンション
- 450万円
-
箕面市粟生間谷西4丁目
-
北大阪急行南北線箕面萱野駅
-
-
-

-
- 中古マンション
- 450万円
-
箕面市粟生間谷西4丁目
-
北大阪急行南北線箕面萱野駅
-
-
-

-
- 中古マンション
- 2,898万円
-
大阪市都島区中野町1丁目
-
大阪市長堀鶴見緑地線京橋駅
-
-
-

-
- 中古マンション
- 4,890万円
-
箕面市温泉町
-
阪急電鉄箕面線箕面駅
-
- お近くの店舗を探す
-
おすすめ物件
-
-

-
- 中古マンション
- 2,280万円
-
八尾市永畑町3丁目
-
JR関西本線八尾
-
-
-

-
- 中古マンション
- 4,650万円
-
吹田市垂水町3丁目
-
大阪市御堂筋線江坂
-
-
-

-
- 中古マンション
- 2,480万円
-
大阪市淀川区西中島2丁目
-
阪急電鉄京都線南方
-
-
-

-
- 中古マンション
- 1,180万円
-
泉大津市尾井千原町
-
南海電鉄本線北助松
-
-
-

-
- 中古マンション
- 1,360万円
-
茨木市白川3丁目
-
阪急電鉄京都線茨木市
-
-
-

-
- 中古マンション
- 2,498万円
-
大阪市淀川区新高4丁目
-
阪急電鉄宝塚線三国
-
-
-

-
- 中古マンション
- 1,380万円
-
大阪市淀川区新高1丁目
-
阪急電鉄宝塚線三国
-
-
-

-
- 中古マンション
- 5,280万円
-
茨木市庄2丁目
-
JR東海道線JR総持寺
-
-
-

-
- 中古マンション
- 2,290万円
-
茨木市豊原町
-
JR東海道線茨木
-
-
-

-
- 中古マンション
- 930万円
-
大阪狭山市西山台6丁目
-
南海電鉄高野線金剛
-





住宅ローン・資金計画にお悩みの方、是非当社にご相談ください!住宅購入・お住み替えにつきもののお悩みを一緒に解決していきましょう!お気軽にお申し付け下さい♪