中戸マンション ダイヤモンドフォーラム大供 502号室 岡山市北区大供1丁目の中古マンション
掲載情報更新日:2025年12月02日 次回更新予定日:2025年12月16日
- 2,780万円
-
- 借入ご希望金額
万円 - 借入期間
年 - 借入金利
% - 月々のお支払い金額
円
- 借入ご希望金額
※ 月々のお支払例は目安の試算となりますので、実際の金額とは異なる場合がございます。詳しくは店舗までお問合わせください。
- 岡山市北区大供1丁目
-
JR山陽本線『岡山』 徒歩15分 (約1200m)
岡山電軌清輝橋線『大雲寺前』 徒歩7分 (約560m)
岡電バス『市役所前』 徒歩4分 (約320m)
岡山市北区大供1丁目マンション | 物件情報
◆南東角住戸!スキップフロア!収納が充実した物件です! ◆2023年リフォーム済物件!
◆敷地内機械式駐車場1台確保(全高1,550mmまで)
◆買い物施設・医療機関・バス停など生活利便施設が整った立地です。
◆室内の設計は新築当時にフルオーダーで一級建築士と売主様が作られたこだわりの間取りです。
物件の設備
- 公営水道
- 下水道
- 公共下水
- 都市ガス
- 給湯
- IHクッキングヒータ
- 独立キッチン
- オープンキッチン
- バス
- バス1坪以上
- 追焚機能
- シャワー
- 温水洗浄便座
- 室内洗濯機置場
- 洗髪洗面化粧台
- 洗面所独立
- エアコン2基
- 照明器具
- BS
- 人感照明センサー
- ディンプルキー
- ダブルロックキー
- オートロック
- モニタ付インターホン
- 防犯カメラ
- 火災警報器/報知機
- 2面採光
- 複層ガラス
- フローリング張替
- 二重床構造
- ハイサッシ
- ウォークインクローゼット
- 床下収納
- 収納スペース
- 昇降ウォール収納
- バルコニー
- 2面バルコニー
- 来客用パーキング
- 宅配BOX
- エレベーター
- 駐輪場
物件の特徴
- 管理人日勤
- 24時間セキュリティ
- 内装リフォーム済
- 角部屋
- 逆梁工法
- 陽当り良好
- 前面棟無
- 外観タイル張
- 外装コンクリート打
- デザイナーズ物件
- 隣接建物距離2m以上
- 即入居可
- ペット不可
物件詳細情報
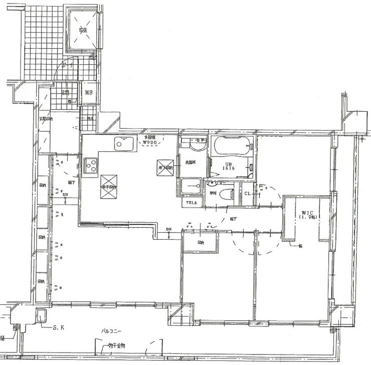
| 価格 | 2,780万円 | 間取り | 3LDK |
|---|---|---|---|
| 物件種別 | 中古マンション | ||
| 所在地 | 岡山県岡山市北区大供1丁目 | ||
| アクセス |
|
||
| 専有面積 | 壁芯 82.62㎡ | 所在階 | 14階建/5階部分 |
| 主要採光 | バルコニー | ||
| その他 | |||
| 権利 | 所有権 |
||
| 保証・評価 | |||
| リフォーム | 【内装】2023年03月 壁、天井 ・床 一部壁クロス貼替、床カーペットをCFに貼替 |
||
| 総戸数 | 56戸 | 面積 | |
| 築年月 | 2003年(平成15年)02月築 | 建物構造 | RC |
| 施工会社 | |||
| 管理会社 | 株式会社穴吹ハウジングサービス | 管理方式 | 全部委託 日勤管理 |
| 駐車場 | 【駐車場】空有 料金:13,000円/月 【駐輪場】あり |
||
| 都市計画 | 市街化区域 |
用途地域 | 商業 |
| 建ぺい/容積率 | 80% / 500% | 土地国土法 | |
| 法令制限 | 防火地域 | ||
| 小学区 | 鹿田小学校 徒歩10分 (約780m) | 中学区 | 桑田中学校 徒歩10分 (約800m) |
| 現況 | 空 | 引渡 | 即 |
| 管理費 | 4,200円/月 | 修繕積立金 | 11,600円/月 |
| その他費用 | 町内会費:0円/月 |
||
| 周辺環境 | 清輝橋駅 徒歩10分 (約760m) 岡山市立鹿田小学校 徒歩9分 (約720m) 桑田中学校 徒歩10分 (約800m) 杜の街グレース 徒歩7分 (約490m) イオンモール岡山 徒歩13分 (約1020m) セブンイレブン岡山厚生町東店 徒歩9分 (約700m) ファミリーマート錦町東店 徒歩10分 (約790m) ウエルシア岡山東島田店 徒歩12分 (約900m) 岡山市役所 徒歩4分 (約320m) 岡山中央郵便局 徒歩14分 (約1120m) 清輝橋駅 徒歩10分 (約760m) 岡山市立鹿田小学校 徒歩9分 (約720m) 桑田中学校 徒歩10分 (約800m) 杜の街グレース 徒歩7分 (約490m) イオンモール岡山 徒歩13分 (約1020m) セブンイレブン岡山厚生町東店 徒歩9分 (約700m) ファミリーマート錦町東店 徒歩10分 (約790m) ウエルシア岡山東島田店 徒歩12分 (約900m) 岡山市役所 徒歩4分 (約320m) 岡山中央郵便局 徒歩14分 (約1120m) 清輝橋駅 徒歩10分 (約760m) 岡山市立鹿田小学校 徒歩9分 (約720m) 桑田中学校 徒歩10分 (約800m) 杜の街グレース 徒歩7分 (約490m) イオンモール岡山 徒歩13分 (約1020m) セブンイレブン岡山厚生町東店 徒歩9分 (約700m) ファミリーマート錦町東店 徒歩10分 (約790m) ウエルシア岡山東島田店 徒歩12分 (約900m) 岡山市役所 徒歩4分 (約320m) 岡山中央郵便局 徒歩14分 (約1120m) |
||
| 備考 | ◆南東角住戸!スキップフロア!収納が充実した物件です! ◆2023年リフォーム済物件! ◆敷地内機械式駐車場1台確保(全高1,550mmまで) ◆買い物施設・医療機関・バス停など生活利便施設が整った立地です。 ◆室内の設計は新築当時にフルオーダーで一級建築士と売主様が作られたこだわりの間取りです。 |
||
| 物件番号 | 4302563 | 取引態様 | 媒介 |
取扱店舗情報
ハウスドゥ 岡山駅西口 株式会社アールイープロジェクト 店舗詳細ページへ
| 電話番号 | 086-239-8621 |
|---|---|
| 所在地 | 〒700-0025 岡山県岡山市北区寿町1-3 ウエストサイドオカヤマ1階 |
| 営業時間 | 9:00~18:00 |
| 定休日 | 水曜日 |
| 宅建免許番号 | 岡山県知事(2)第5855号 |
| アクセス | 店舗への地図はこちら |

来店ご予約
岡山県岡山市北区で価格が似ている物件はこちら
- 岡山県
マイページ物件数 - 4,462件
最近見た物件
岡山県中古マンション新着物件
-
-

-
- 中古マンション
- 310万円
-
倉敷市中畝2丁目
-
水島臨海鉄道水島駅
-
-
-

-
- 収益
- 450万円
-
岡山市北区東島田町2丁目
-
JR山陽本線岡山駅
-
-
-

-
- 中古マンション
- 2,298万円
-
岡山市北区鹿田本町
-
JR山陽本線岡山駅
-
-
-

-
- 収益
- 450万円
-
岡山市北区東島田町2丁目
-
JR山陽本線岡山駅
-
-
-

-
- 中古マンション
- 3,390万円
-
岡山市北区西古松西町
-
JR宇野線大元駅
-
-
-

-
- 中古マンション
- 2,290万円
-
岡山市北区東古松南町
-
JR宇野線大元駅
-
-
-

-
- 中古マンション
- 2,290万円
-
岡山市北区東古松南町
-
JR宇野線大元駅
-
- お近くの店舗を探す
-
おすすめ物件
-
-

-
- 中古マンション
- 550万円
-
岡山市北区内山下1丁目
-
岡山電軌東山本線県庁通り
-
-
-

-
- 中古マンション
- 550万円
-
岡山市北区内山下1丁目
-
岡山電軌東山本線県庁通り
-
-
-

-
- 中古マンション
- 845万円
-
岡山市北区津高
-
中鉄バス中原バス停
-















