ハイホーム立川一番町 414号室
掲載情報更新日:2025年11月03日 次回更新予定日:2025年11月17日
- 2,390万円
-
- 借入ご希望金額
万円 - 借入期間
年 - 借入金利
% - 月々のお支払い金額
円
- 借入ご希望金額
※ 月々のお支払例は目安の試算となりますので、実際の金額とは異なる場合がございます。詳しくは店舗までお問合わせください。
- 立川市一番町1丁目
-
西武拝島線『西武立川』 徒歩15分 (約1200m)
JR青梅線『中神』 徒歩24分 (約1920m)
西武拝島線『武蔵砂川』 徒歩22分 (約1760m)
ハイホーム立川一番町 414号室マンション | 物件情報
【宅地建物取引士賠償責任保険対象物件】お家を買うなら安心の全国720店舗展開中のハウスドゥ立川北へ
・ローンシュミレーションからライフプランの設計まで無料で作成いたします。
お家の見るチェックポイントや住宅ローンの事などなんでもお尋ねください。ご納得いただける物件が見つかるまでご提案させていただきます。ぜひ一度お越しください。お待ちしております。
物件の設備
- 公営水道
- 公共下水
- 都市ガス
- 給湯
- 食器洗浄乾燥機
- コンロ三口
- グリル
- カウンターキッチン
- システムキッチン
- ユニットバス
- 追焚機能
- シャワー
- トイレ
- 温水洗浄便座
- 室内洗濯機置場
- 洗髪洗面化粧台
- 洗面所独立
- フットライト
- 人感照明センサー
- ディンプルキー
- オートロック
- モニタ付インターホン
- モニタ付オートロック
- 火災警報器/報知機
- 全室フローリング
- フローリング張替
- クッションフロア
- 24時間換気システム
- 網戸
- クローゼット3箇所
- 全居室収納
- シューズボックス
- バルコニー
- ワイドバルコニー
- エレベーター2基
物件の特徴
- 管理人日勤
- 内装リフォーム済
- 内装リフォーム後渡
- 耐震構造
- 2沿線利用可
- スーパーが近い
- 閑静な住宅街
- 通風良好
- 陽当り良好
- 外観タイル張
- 即入居可
物件詳細情報
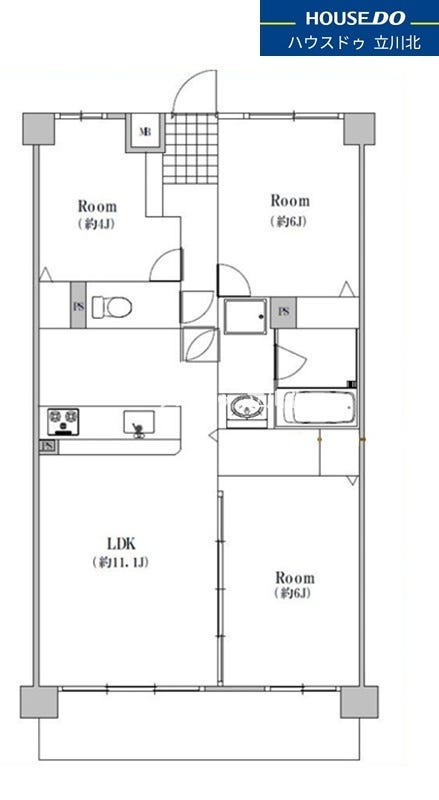
| 価格 | 2,390万円 | 間取り | 3LDK |
|---|---|---|---|
| 物件種別 | 中古マンション | ||
| 所在地 | 東京都立川市一番町1丁目14-1 | ||
| アクセス |
|
||
| 専有面積 | 壁芯 67.10㎡ | 所在階 | 12階建/4階部分 |
| 主要採光 | 南東向 | バルコニー | 南東向8.54㎡ |
| その他 | |||
| 権利 | 所有権 |
||
| 保証・評価 | |||
| リフォーム | 【水回り】2025年07月 キッチン・浴室・トイレ・洗面・給湯器 キッチン:LIXILシエラS人工大理石ワークトップ・食洗機 洗面所:洗濯パン/洗濯用水栓/タオル掛け/CF張替え トイレ:アメージュシャワートイレ 風呂:マグネットシェルフ・アクアシャワーspa 【内装】2025年07月 全面 ・壁、天井 ・床 ・全室クロス ・建具 ・サッシ 建具・巾木/クロス・フローリング/その他:インターホン・網戸・ダウンライト wi-fi機器スペース新設/玄関:間接照明・フットライト・人感センサーライト・エコカラット |
||
| 総戸数 | 168戸 | 面積 | |
| 築年月 | 1995年(平成7年)03月築 | 建物構造 | SRC |
| 施工会社 | |||
| 管理会社 | 株式会社日本ハウズイング | 管理方式 | 全部委託 日勤管理 |
| 駐車場 | |||
| 都市計画 | 用途地域 | 準工業 | |
| 建ぺい/容積率 | 土地国土法 | ||
| 法令制限 | |||
| 小学区 | 大山小学校 徒歩16分 (約1208m) | 中学区 | 立川第五中学校 徒歩12分 (約937m) |
| 現況 | 空 | 引渡 | 即 |
| 管理費 | 8,250円/月 | 修繕積立金 | 9,760円/月 |
| その他費用 | 組合費:200円 |
||
| 備考 | ◆内装フルリノベーション物件(2025年7/3完了予定) ◆人工大理石ワークトップ・食洗機新規設置の対面キッチン TAIRAYA中神店・・・徒歩約7分/セブンイレブン立川東文化通り店・・・徒歩約7分/サンドラッグ中神店・・・徒歩約7分 |
||
| 物件番号 | 4308454 | 取引態様 | 媒介 |
取扱店舗情報
ハウスドゥ 立川北 株式会社シティリノベーション 店舗詳細ページへ
| 電話番号 | 042-537-9361 |
|---|---|
| 所在地 | 〒190-0004 東京都立川市柏町3-19-14 フレンテ1F |
| 営業時間 | 9:00~18:00 |
| 定休日 | GW、夏季、冬季 |
| 宅建免許番号 | 東京都知事(2)第100954号 |
| アクセス | 店舗への地図はこちら |

来店ご予約
東京都立川市で価格が似ている物件はこちら
- 東京都
マイページ物件数 - 5,476件
最近見た物件
-
-

-
- 中古マンション
- 3,990万円
-
小平市花小金井7丁目
-
西武新宿線花小金井
-
-
-

-
- 中古マンション
- 6,500万円
-
小平市花小金井1丁目
-
西武新宿線花小金井
-
-
-

-
- 中古マンション
- 2,999万円
-
大阪市生野区勝山南2丁目
-
JR大阪環状線桃谷
-
東京都中古マンション新着物件
- お近くの店舗を探す
-
おすすめ物件
-
-

-
- 中古マンション
- 7,990万円
-
大田区大森北5丁目
-
JR京浜東北・根岸線大森
-
-
-

-
- 中古マンション
- 2,480万円
-
葛飾区東金町1丁目
-
JR千代田・常磐緩行線金町
-
-
-

-
- 中古マンション
- 6,490万円
-
台東区蔵前4丁目
-
都営浅草線蔵前
-
-
-

-
- 中古マンション
- 4,199万円
-
葛飾区南水元1丁目
-
JR千代田・常磐緩行線金町
-
-
-

-
- 中古マンション
- 1,390万円
-
青梅市千ヶ瀬町1丁目
-
JR青梅線河辺
-
-
-

-
- 中古マンション
- 6,698万円
-
江戸川区中葛西2丁目
-
東京メトロ東西線葛西
-
-
-

-
- 中古マンション
- 3,680万円
-
千葉市中央区千葉港
-
千葉都市モノレール市役所前
-
-
-

-
- 中古マンション
- 1億1,490万円
-
台東区東上野5丁目
-
東京メトロ銀座線稲荷町
-
-
-

-
- 中古マンション
- 1億1,800万円
-
大田区下丸子2丁目
-
東急多摩川線下丸子
-
-
-

-
- 中古マンション
- 1,790万円
-
足立区東和5丁目
-
東京メトロ千代田線北綾瀬
-































担当エージェント:板谷 和友樹
ハウスドゥ立川北のホームページをご覧頂きありがとうございます。
お客様の多くがお家を買うのに不安があるかと思われます。ハウスドゥではお客様の不安や問題解決に一つ一つ誠心誠意お答えいたします。また、お家探しに役立つ多くの物件に関する情報を掲載しております。
ハウスドゥ立川北ではお客様お一人お一人にあったご提案を心がけており、ローンシュミレーションや人工知能を使ったライフプランの作成(要予約)を行いお客様の不安を解決いたします
■頭金は必要なのか?
■ローンは払っていけるのか?
■どのタイミングで住み替えや引越しが出来るのか?etc
お気軽に相談できるハウスドゥ立川北へお問い合わせ下さい
◆ご予約方法◆
直接お電話ください。【0120-537-936】
メールでのご予約も承ります。お気軽にご来店ください。
物件によっては事前に鍵の手配が必要な場合がありますので、お早目にご連絡をいただけるとご案内がスムーズです。
◆ご案内方法◆
最寄駅や周辺地での待ち合わせ、ハウスドゥ立川北店へのご来店などご相談ください。