シンフォニアみなみが丘イーストコート B棟
掲載情報更新日:2026年05月19日 次回更新予定日:2026年06月02日
- 1,980万円
-
- 借入ご希望金額
万円 - 借入期間
年 - 借入金利
% - 月々のお支払い金額
円
- 借入ご希望金額
※ 月々のお支払例は目安の試算となりますので、実際の金額とは異なる場合がございます。詳しくは店舗までお問合わせください。
- 名古屋市緑区有松南
-
名鉄名古屋本線『有松』 徒歩13分 (約1040m)
名鉄名古屋本線『左京山』 徒歩16分 (約1280m)
名古屋市営バス『「三丁山」停』 徒歩6分 (約480m)
シンフォニアみなみが丘イーストコート B棟マンション | 物件情報
【13階×3LDK】令和7年8月リフォーム済みマンション◎
\あれこれ不動産サイトを見なくても当店で解決/
当店はエリア内の物件の大半を最・新・情・報で掲載!
ほかのページで気になる物件もご相談ください。
◆有松小学校/有松中学校
◆名古屋市営バス「三丁山」停 徒歩約6分
◆13階眺望良好◎
◆2面バルコニー
◆駐車場継承可能
※写真をクリックすると、詳細をご覧いただけます。
=========================
《気軽にお寄り下さい♪》
店内にキッズスペースも完備♪
お子様連れでも気軽に立ち寄っていただけるお店です。
=========================
物件の設備
- 公共下水
- 都市ガス
- 給湯
- カウンターキッチン
- 洗髪洗面化粧台
- 和室
- フローリング張替
- クッションフロア
- クローゼット2箇所
- 収納スペース
- 押入
- 全居室収納
- シューズボックス
- バルコニー
- 両面バルコニー
- エレベーター
- 駐輪場
- バイク置場
物件の特徴
- 管理人日勤
- 内装リフォーム済
- 内装リフォーム後渡
- 角部屋
- 通風良好
- 陽当り良好
- 即入居可
- ペット不可
物件詳細情報
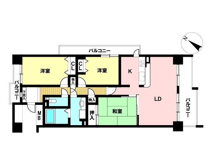
| 価格 | 1,980万円 | 間取り | 3LDK |
|---|---|---|---|
| 物件種別 | 中古マンション | ||
| 所在地 | 愛知県名古屋市緑区有松南 | ||
| アクセス |
|
||
| 専有面積 | 内法 74.47㎡ | 所在階 | 14階建/13階部分 |
| 主要採光 | 南東向 | バルコニー | 南東向19.24㎡ |
| その他 | |||
| 権利 | 所有権 |
||
| 保証・評価 | |||
| リフォーム | 【水回り】2025年08月 キッチン・洗面 ・水回り取替 キッチンコンロ・キッチン水栓・キッチン換気扇・シャワー水栓・洗面台 洗濯パン・洗濯水栓・給湯器交換・ 【内装】2025年08月 床 ・全室クロス ・建具 ・全室クロス貼(天井、壁)・クッションフロア張(洗面脱衣室、トイレ)・畳表替・襖、障子貼替・ハウスクリーニング済他 |
||
| 総戸数 | 262戸 | 面積 | |
| 築年月 | 1996年(平成8年)01月築 | 建物構造 | SRC |
| 施工会社 | 大成・前田建設共同企業体 | ||
| 管理会社 | 積村ビル管理株式会社 | 管理方式 | 全部委託 日勤管理 |
| 駐車場 | 【駐車場】空有 料金:8,000円/月 カースペース 【バイク置き場】あり 【駐輪場】あり |
||
| 都市計画 | 市街化区域 |
用途地域 | 1種住居(一部2種住居 含む) |
| 建ぺい/容積率 | 60% / 200% | 土地国土法 | |
| 法令制限 | 準防火地域・31m高度 | ||
| 小学区 | 有松小学校 徒歩11分 (約850m) | 中学区 | 有松中学校 徒歩13分 (約990m) |
| 現況 | 空 | 引渡 | 即 |
| 管理費 | 9,160円/月 | 修繕積立金 | 8,840円/月 |
| その他費用 | その他負担金:6000円 町内会費年2回集金 ※年額6,000円・4月と10月に管理組合より請求有 |
||
| 周辺環境 | 有松小学校 徒歩10分 (約780m) 有松中学校 徒歩12分 (約920m) 有松幼稚園 徒歩9分 (約700m) めぐみ保育園 徒歩8分 (約620m) マックスバリュ有松駅前店 徒歩13分 (約1000m) ウエルシア名古屋左京山店 徒歩15分 (約1160m) さそうクリニック 徒歩7分 (約520m) 有松南公園 徒歩4分 (約280m) ローソン緑区有松町店 徒歩9分 (約670m) 名古屋有松郵便局 徒歩12分 (約920m) |
||
| 備考 | 駐車場有(継承可)No.140使用 8000円/月額 リフォーム/2025年8月 リフォーム内容:全居室天井、壁クロス張替・洗面・トイレ・クッションフロア張り・洗面台・洗濯板・洗濯水栓・キッチンコンロ・キッチン水栓・キッチン換気扇・シャワー水栓・給湯器交換・畳表替え・襖張替え・ハウスクリーニング等 |
||
| 物件番号 | 4309680 | 取引態様 | 媒介 |
取扱店舗情報
ハウスドゥ みどり市民病院前 ファミリアホームサービス株式会社 店舗詳細ページへ
| 電話番号 | 052-875-8705 |
|---|---|
| 所在地 | 〒458-0037 愛知県名古屋市緑区潮見が丘2丁目290番地1 |
| 営業時間 | 9:00~18:00 |
| 定休日 | 水曜日、年末年始 |
| 宅建免許番号 | 国土交通大臣(2)第9218号 |
| アクセス | 店舗への地図はこちら |

来店ご予約
愛知県名古屋市緑区で価格が似ている物件はこちら
- 愛知県
マイページ物件数 - 32,343件
最近見た物件
-
-

-
- 中古マンション
- 780万円
-
大阪市平野区加美西2丁目
-
JR関西本線加美
-
-
-

-
- 中古マンション
- 2,590万円
-
堺市西区鳳北町8丁
-
JR阪和線津久野
-
-
-

-
- 土地
- 1,200万円
-
光市中島田3丁目
-
JR山陽本線島田
-
愛知県中古マンション新着物件
-
-

-
- 中古マンション
- 3,999万円
-
名古屋市西区新道1丁目
-
名古屋市鶴舞線浅間町駅
-
-
-

-
- 中古マンション
- 1,080万円
-
豊橋市有楽町
-
豊橋鉄道渥美線小池駅
-
-
-

-
- 中古マンション
- 1,080万円
-
豊橋市有楽町
-
豊橋鉄道渥美線小池駅
-
-
-

-
- 中古マンション
- 1,080万円
-
豊橋市有楽町
-
豊橋鉄道渥美線小池駅
-
-
-

-
- 中古マンション
- 2,499万円
-
刈谷市南桜町2丁目
-
JR東海道本線刈谷駅
-
-
-

-
- 中古マンション
- 3,250万円
-
名古屋市天白区平針4丁目
-
名古屋市鶴舞線平針駅
-
-
-

-
- 中古マンション
- 669万円
-
一宮市松降通7丁目
-
名鉄名古屋本線今伊勢駅
-
- お近くの店舗を探す
-
おすすめ物件
-
-

-
- 中古マンション
- 5,380万円
-
名古屋市東区泉3丁目
-
名古屋市桜通線高岳
-
-
-

-
- 中古マンション
- 1,300万円
-
名古屋市瑞穂区田辺通2丁目
-
名古屋市名城線総合リハビリセンター
-
-
-

-
- 中古マンション
- 1,699万円
-
小牧市小牧4丁目
-
名鉄小牧線小牧
-
-
-

-
- 中古マンション
- 3,180万円
-
名古屋市中区栄5丁目
-
名古屋市名城線矢場町
-
-
-

-
- 中古マンション
- 3億3,000万円
-
名古屋市千種区内山3丁目
-
名古屋市東山線今池
-
-
-

-
- 中古マンション
- 2,499万円
-
名古屋市港区千鳥2丁目
-
名古屋市名港線名古屋港
-
-
-

-
- 中古マンション
- 880万円
-
名古屋市南区滝春町
-
名鉄常滑線大同町
-
-
-

-
- 中古マンション
- 4,999万円
-
名古屋市中川区西日置1丁目
-
名鉄名古屋本線山王
-
-
-

-
- 中古マンション
- 2,880万円
-
名古屋市昭和区滝川町
-
名古屋市鶴舞線いりなか
-
-
-

-
- 中古マンション
- 2,380万円
-
北名古屋市徳重土部
-
名鉄犬山線徳重・名古屋芸大
-




























担当エージェント:小崎 瑛大
《実際に現地を体感してみませんか?》
気になる点はお気軽にお問い合わせください!
お客様の理想のお住まいを一緒に見つけましょう!