高井田中1丁目_アクロシャトー永和_河内永和駅
掲載情報更新日:2025年11月21日 次回更新予定日:2025年12月05日
- 1,498万円
-
- 借入ご希望金額
万円 - 借入期間
年 - 借入金利
% - 月々のお支払い金額
円
- 借入ご希望金額
※ 月々のお支払例は目安の試算となりますので、実際の金額とは異なる場合がございます。詳しくは店舗までお問合わせください。
- 東大阪市高井田中1丁目
-
近鉄難波・奈良線『河内永和』 徒歩8分 (約640m)
JRおおさか東線『JR河内永和』 徒歩8分 (約640m)
高井田中1丁目_アクロシャトー永和_河内永和駅マンション | 物件情報
物件の設備
- 公営水道
- 公共下水
- 給湯
- 食器洗浄乾燥機
- グリル
- ガスコンロ付
- システムキッチン
- オープンキッチン
- バス
- オートバス
- 追焚機能
- 浴室乾燥機
- シャワー
- トイレ
- 温水洗浄便座
- 高機能トイレ
- 室内洗濯機置場
- 洗髪洗面化粧台
- 衣類乾燥機
- モニタ付インターホン
- 全室フローリング
- 網戸
- クローゼット
- 収納スペース
- シューズボックス
- 駐輪場
- バイク置場
物件の特徴
- 管理人日勤
- 内装リフォーム済
- 南向
- 駅まで平坦
- 緑豊かな住宅地
- スーパーが近い
- 閑静な住宅街
- 市街地が近い
- 眺望良好
- 通風良好
- 陽当り良好
- 平坦地
- 即入居可
- ペット不可
物件詳細情報
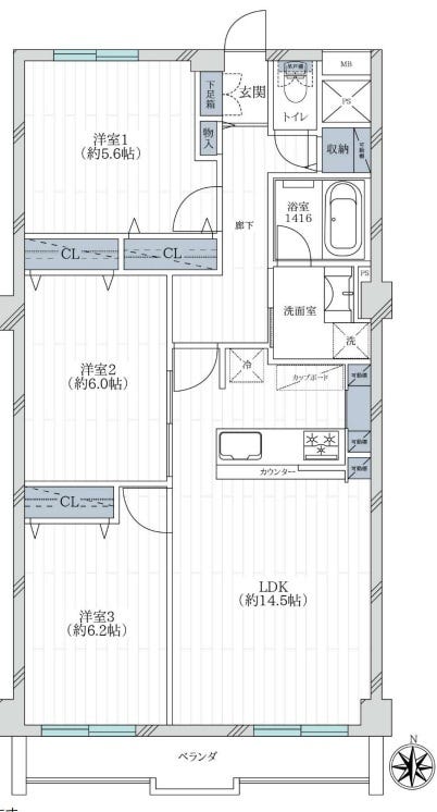
| 価格 | 1,498万円 | 間取り | 3LDK |
|---|---|---|---|
| 物件種別 | 中古マンション | ||
| 所在地 | 大阪府東大阪市高井田中1丁目 | ||
| アクセス |
|
||
| 専有面積 | 壁芯 76.87㎡ | 所在階 | 11階建/8階部分 |
| 主要採光 | 南向 | バルコニー | |
| その他 | |||
| 権利 | 所有権 |
||
| 保証・評価 | |||
| リフォーム | 【水回り】2024年12月 キッチン・浴室・洗面・給湯器 【内装】2024年12月 全室クロス ・建具 |
||
| 総戸数 | 125戸 | 面積 | |
| 築年月 | 1974年(昭和49年)11月築 | 建物構造 | RC |
| 施工会社 | |||
| 管理会社 | 管理方式 | 全部委託 日勤管理 管理組合あり | |
| 駐車場 | 【駐車場】なし 【バイク置き場】空有 料金:2000円/年 【駐輪場】空有 料金:1000円/月 |
||
| 都市計画 | 市街化区域 |
用途地域 | 工業 |
| 建ぺい/容積率 | 60% / 200% | 土地国土法 | |
| 法令制限 | |||
| 小学区 | 高井田東小学校 徒歩14分 (約1120m) | 中学区 | 長栄中学校 徒歩5分 (約400m) |
| 現況 | 空 | 引渡 | 即 |
| 管理費 | 9,330円/月 | 修繕積立金 | 13,530円/月 |
| その他費用 | |||
| 周辺環境 | いわさきクリニック 徒歩24分 (約1850m) ジャパン 東大阪御厨店 徒歩20分 (約1560m) 八戸ノ里駅_近鉄奈良線 徒歩26分 (約2080m) 東大阪生協病院 徒歩28分 (約2240m) 東大阪意岐部郵便局 徒歩29分 (約2320m) 長田駅_地下鉄中央線 徒歩34分 (約2680m) ココカラファイン_長瀬駅前店 徒歩30分 (約2360m) 長瀬駅_近鉄大阪線 徒歩30分 (約2400m) ラッキー_長瀬店 徒歩31分 (約2420m) |
||
| 備考 | ●ペット飼育不可 | ||
| 物件番号 | 4309686 | 取引態様 | 媒介 |
取扱店舗情報
ハウスドゥ 東大阪日下 アルファエステート株式会社 店舗詳細ページへ
| 電話番号 | 072-983-5716 |
|---|---|
| 所在地 | 〒579-8003 大阪府東大阪市日下町4丁目1-42マンハイムグラン石切138号 |
| 営業時間 | 9:00~18:00 (営業時間外でもご対応可能) |
| 定休日 | 火曜日、水曜日、夏季休暇、年末年始休暇 |
| 宅建免許番号 | 大阪府知事(1)第65201号 |
| アクセス | 店舗への地図はこちら |

来店ご予約
大阪府東大阪市で価格が似ている物件はこちら
- 大阪府
マイページ物件数 - 15,503件
最近見た物件
-
-

-
- 中古マンション
- 1,880万円
-
名古屋市港区千鳥1丁目
-
名古屋市名港線築地口
-
-
-

-
- 中古一戸建て
- 3,190万円
-
一宮市馬見塚字郷前
-
名鉄名古屋本線妙興寺
-
-
-

-
- 新築一戸建て
- 3,400万円
-
春日井市町屋町
-
名鉄小牧線間内
-
大阪府中古マンション新着物件
- お近くの店舗を探す
-
おすすめ物件
-
-

-
- 中古マンション
- 2,990万円
-
大阪市住之江区北加賀屋5丁目
-
大阪市四つ橋線北加賀屋
-
-
-

-
- 中古マンション
- 2,598万円
-
大阪市淀川区新高4丁目
-
阪急電鉄宝塚線三国
-
-
-

-
- 中古マンション
- 780万円
-
大阪市住之江区粉浜西3丁目
-
南海電鉄本線住吉大社
-
-
-

-
- 中古マンション
- 5,280万円
-
茨木市若草町
-
大阪モノレール南茨木
-
-
-

-
- 中古マンション
- 2,280万円
-
八尾市永畑町3丁目
-
JR関西本線八尾
-
-
-

-
- 中古マンション
- 1,598万円
-
泉大津市東雲町
-
南海電鉄本線泉大津
-
-
-

-
- 中古マンション
- 1,580万円
-
和泉市伏屋町5丁目
-
南海電鉄泉北線光明池
-
-
-

-
- 中古マンション
- 1,780万円
-
大阪市淀川区木川東4丁目
-
JR山陽新幹線新大阪
-
-
-

-
- 中古マンション
- 1,180万円
-
茨木市東太田1丁目
-
JR東海道線JR総持寺
-
-
-

-
- 中古マンション
- 1,480万円
-
泉大津市助松町3丁目
-
南海電鉄本線松ノ浜
-




























