リビンコート厚生町 岡山市北区厚生町2丁目の中古マンション
掲載情報更新日:2025年10月31日 次回更新予定日:2025年11月14日
- 3,090万円
- 
                    - 借入ご希望金額
 万円
-  借入期間
 年
-  借入金利
 %
-  月々のお支払い金額
 円
 
- 借入ご希望金額
※ 月々のお支払例は目安の試算となりますので、実際の金額とは異なる場合がございます。詳しくは店舗までお問合わせください。
- 岡山市北区厚生町2丁目
- 
                    JR山陽本線『岡山』 徒歩14分 (約1120m)
 岡電バス『厚生町商工会議所前』 徒歩2分 (約130m)
 
岡山市北区厚生町2丁目マンション | 物件情報
☆JR岡山駅徒歩14分の立地!リフォーム済南向き3LDK南西角部屋♪
             
        
            ☆おすすめポイント☆
・毎日の生活が豊かになる便利な機能も充実♪
・市街地も程近く、利便施設も徒歩圏内に充実♪
・小・中学校まで徒歩圏内でお子様の通学も安心♪
☆周辺環境☆
・岡山市立鹿田小学校 徒歩6分(約420m)
・岡山市立桑田中学校 徒歩3分(約240m)
・中国銀行 岡山市役所出張所 徒歩9分(約660m)
・岡山大供郵便局 徒歩5分(約400m)
・森のマルシェ グレース店 徒歩4分(約290m)
・ローソン 岡山厚生町一丁目店 徒歩1分(約50m)
・ウエルシア 岡山東島田店 徒歩3分(約210m)
・大供第1公園 徒歩7分(約560m)
☆★──────────☆★
 物件見学予約受付中♪
 お問い合わせはお早めに!
 TEL:086-238-7778
★☆──────────★☆        
物件の設備
- 公営水道
- 公共下水
- 都市ガス
- 給湯
- 浄水器
- コンロ三口
- ガスコンロ付
- カウンターキッチン
- システムキッチン
- バス
- オートバス
- 浴室暖房
- 浴室乾燥機
- シャワー
- トイレ
- 温水洗浄便座
- 室内洗濯機置場
- 洗髪洗面化粧台
- 照明器具
- ダウンライト
- オートロック
- LDK15畳以上
- 2面採光
- 出窓
- フローリング張替
- 24時間換気システム
- クローゼット
- 全居室収納
- シューズボックス
- バルコニー
- 南面バルコニー
- エレベーター
物件の特徴
- 管理人日勤
- 内装リフォーム済
- 内装リフォーム後渡
- 南向
- 始発駅
- 2沿線利用可
- 3沿線以上利用可
- 駅まで平坦
- 小学校徒歩10分以内
- スーパーが近い
- 市街地が近い
- 都市近郊
- 通風良好
- 陽当り良好
- 平坦地
- 即入居可
- ペット不可
物件詳細情報
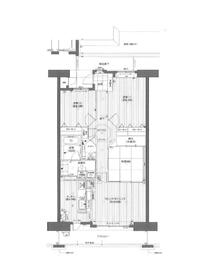
| 価格 | 3,090万円 | 間取り | 3LDK | 
|---|---|---|---|
| 物件種別 | 中古マンション | ||
| 所在地 | 岡山県岡山市北区厚生町2丁目 | ||
| アクセス | 
 | ||
| 専有面積 | 79.10㎡ | 所在階 | 13階建/6階部分 | 
| 主要採光 | 南向 | バルコニー | 南向14.84㎡ | 
| その他 | |||
| 権利 | 所有権 | ||
| 保証・評価 | |||
| リフォーム | 【水回り】2025年09月 キッチン・浴室・トイレ・洗面 【内装】2025年09月 壁、天井 ・床 | ||
| 総戸数 | 48戸(事:0戸 住:48戸) | 面積 | |
| 築年月 | 2000年(平成12年)10月築 | 建物構造 | SRC | 
| 施工会社 | |||
| 管理会社 | 管理方式 | 全部委託 日勤管理 | |
| 駐車場 | |||
| 都市計画 | 市街化区域 | 用途地域 | 商業 | 
| 建ぺい/容積率 | 80% / 400% | 土地国土法 | |
| 法令制限 | |||
| 小学区 | 鹿田小学校 徒歩5分 (約400m) | 中学区 | 桑田中学校 徒歩4分 (約260m) | 
| 現況 | 空 | 引渡 | 即 | 
| 管理費 | 6,400円/月 | 修繕積立金 | 9,500円/月 | 
| その他費用 | 町内会費:150円/月 | ||
| 周辺環境 | 岡山市立鹿田小学校 徒歩6分 (約420m) 岡山市立桑田中学校 徒歩3分 (約240m) 中国銀行 岡山市役所出張所 徒歩9分 (約660m) 岡山大供郵便局 徒歩5分 (約400m) 森のマルシェ グレース店 徒歩4分 (約290m) ローソン 岡山厚生町一丁目店 徒歩1分 (約50m) ウエルシア 岡山東島田店 徒歩3分 (約210m) 大供第1公園 徒歩7分 (約560m) | ||
| 備考 | ・駐車場の空き状況は管理会社へ要確認(月額8,800~22,000円) | ||
| 物件番号 | 4337000 | 取引態様 | 媒介 | 
取扱店舗情報
ハウスドゥ 岡山原尾島 株式会社ジャックネット 店舗詳細ページへ
| 電話番号 | 086-238-7778 | 
|---|---|
| 所在地 | 〒703-8256 岡山県岡山市中区浜3丁目6-15 | 
| 営業時間 | 9:00~18:00 | 
| 定休日 | 水曜日、年末年始 | 
| 宅建免許番号 | 岡山県知事(1)第6006号 | 
| アクセス | 店舗への地図はこちら | 

来店ご予約
岡山県岡山市北区で価格が似ている物件はこちら
- 岡山県
 マイページ物件数
- 4,361件
最近見た物件
- 
                        - 
									                                     
- 
                                - 土地
- 663.64万円
- 
                                        
                                            出雲市斐川町上庄原 
- 
                                        JR山陰本線荘原 
 
 
- 
									                                    
- 
                        - 
									                                     
- 
                                - 新築一戸建て
- 2,590万円
- 
                                        
                                            宮崎市村角町宮崎牟田 
- 
                                        JR日豊本線蓮ケ池 
 
 
- 
									                                    
- 
                        - 
									                                     
- 
                                - 新築一戸建て
- 2,590万円
- 
                                        
                                            宮崎市太田3丁目 
- 
                                        JR日豊本線南宮崎 
 
 
- 
									                                    
岡山県中古マンション新着物件
- 
				- 
							                             
- 
						- 中古マンション
- 1,230万円
- 
								
									岡山市北区東古松4丁目 
- 
                                JR宇野線大元駅 
 
 
- 
							                            
- 
				- 
							                             
- 
						- 中古マンション
- 1,380万円
- 
								
									倉敷市幸町 
- 
                                JR山陽本線倉敷駅 
 
 
- 
							                            
- 
				- 
							                             
- 
						- 中古マンション
- 2,780万円
- 
								
									岡山市北区問屋町 
- 
                                JR伯備線北長瀬駅 
 
 
- 
							                            
- 
				- 
							                             
- 
						- 中古マンション
- 3,498万円
- 
								
									岡山市北区厚生町1丁目 
- 
                                JR山陽新幹線岡山駅 
 
 
- 
							                            
- 
				- 
							                             
- 
						- 中古マンション
- 2,998万円
- 
								
									岡山市北区東古松2丁目 
- 
                                JR宇野線大元駅 
 
 
- 
							                            
- 
				- 
							                             
- 
						- 中古マンション
- 3,390万円
- 
								
									岡山市北区大供1丁目 
- 
                                JR山陽本線岡山駅 
 
 
- 
							                            
- 
				- 
							                             
- 
						- 中古マンション
- 1,890万円
- 
								
									岡山市北区野田2丁目 
- 
                                JR宇野線大元駅 
 
 
- 
							                            
- お近くの店舗を探す
- 
            
            
            
おすすめ物件
- 
				- 
														 
- 
						- 中古マンション
- 845万円
- 
								
									岡山市北区津高 
- 
								中鉄バス中原バス停 
 
 
- 
														
- 
				- 
														 
- 
						- 中古マンション
- 550万円
- 
								
									岡山市北区内山下1丁目 
- 
								岡山電軌東山本線県庁通り 
 
 
- 
														
- 
				- 
														 
- 
						- 中古マンション
- 550万円
- 
								
									岡山市北区内山下1丁目 
- 
								岡山電軌東山本線県庁通り 
 
 
- 
														
 
     
                         
                         
                         
                    







 
                



























 
                 
             
                    

 
                                            
 
                                             
                                             
                                             
                                             
                                     
						 
						
担当エージェント:山田 将伍
当日のご見学も可能な物件となっております!広さ、陽当り、設備面、周辺環境などなど、実際に物件を見てみないと分からない魅力があります!まずはお気軽にご見学くださいませ♪ ☆不動産のことならハウスドゥ 岡山原尾島へ☆