ニューフレックス健軍本町 801号室 熊本市東区健軍本町の中古マンション
掲載情報更新日:2025年10月26日 次回更新予定日:2025年11月09日
- 2,400万円
- 
                    - 借入ご希望金額
 万円
-  借入期間
 年
-  借入金利
 %
-  月々のお支払い金額
 円
 
- 借入ご希望金額
※ 月々のお支払例は目安の試算となりますので、実際の金額とは異なる場合がございます。詳しくは店舗までお問合わせください。
- 熊本市東区健軍本町
- 
                    熊本市健軍線『健軍交番前』 徒歩14分 (約1120m)
 JR豊肥本線『新水前寺』 車12分(約3.8km)
 JR九州新幹線『熊本』 車23分(約7.8km)
 『東町』 徒歩5分 (約400m)
 
熊本市東区健軍本町マンション | 物件情報
■贅沢な最上階1部屋♪ ■マンションでは珍しい6LDK♪ ■広々バルコニーからは花火も見えます♪
             
        
            住宅購入の際のお悩みお聞かせください♪♪
住宅購入はワクワクする人生の一大イベント!まずは自分たちの理想を一緒に思い描きましょう!
複数の物件を比較検討することで絞り込んでいく楽しさがあります。
まずは『ハウスドゥ熊本花立』へご相談ください。
理想の住まい探しの他、資金計画、リフォームプランなどのご相談まで幅広く承ります。
☆頭金0円!おまとめローン可
☆「購入の流れ」だけでもOK!お問合せ下さい◎
☆熊本県内全ての物件ご紹介できます!当店までお気軽にお申し付けください!
"【LINEでやりとり可能】
 お客様のタイミングで気軽にご連絡していただけます。
 お仕事・家事・育児などお忙しい皆様にも喜ばれています♪
*同様条件の物件、周辺物件も一緒にご紹介可能♪
*ローンがどのぐらい組めるのか、会社によって変わります!
*☆―お問合せ方法―☆*
【見学予約(無料)】のフォームをご入力いただくか、
096-237-6412までお問い合わせください☆        
物件の設備
- 公営水道
- 公共下水
- 都市ガス
- 食器洗浄乾燥機
- IHクッキングヒータ
- コンロ三口
- カウンターキッチン
- システムキッチン
- TV付バス
- オートバス
- 浴室暖房
- 浴室乾燥機
- 温水洗浄便座
- 室内洗濯機置場
- 洗髪洗面化粧台
- インターネット接続可
- オートロック
- モニタ付インターホン
- モニタ付オートロック
- 防犯カメラ
- 火災警報器/報知機
- LDK18畳以上
- 和室
- 2面採光
- 網戸
- 納戸
- 全居室収納
- シューズボックス
- バルコニー
- 2面バルコニー
- ワイドバルコニー
- L字型バルコニー
- 宅配BOX
- エレベーター
- 駐輪場
- バイク置場
物件の特徴
- 管理人日勤
- 南西角部屋
- スーパーが近い
- 市街地が近い
- 都市近郊
- 花火が見える
- 眺望良好
- 通風良好
- 陽当り良好
- 最上階
物件詳細情報
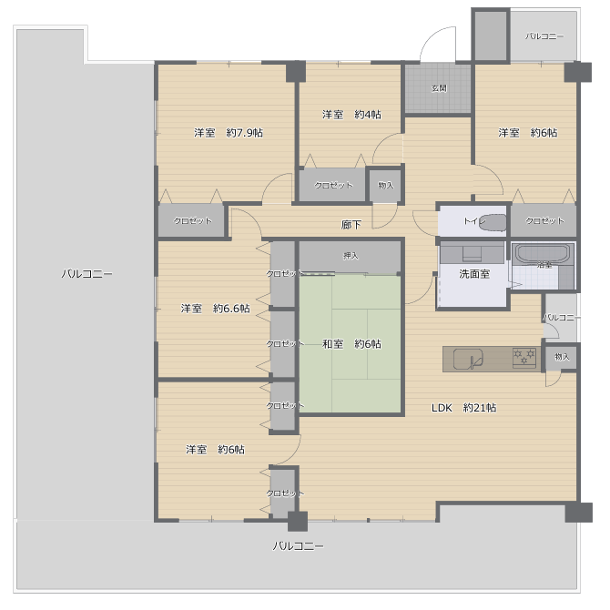
| 価格 | 2,400万円 | 間取り | 6LDK | 
|---|---|---|---|
| 物件種別 | 中古マンション | ||
| 所在地 | 熊本県熊本市東区健軍本町 | ||
| アクセス | 
 | ||
| 専有面積 | 壁芯 122.38㎡ | 所在階 | 8階建/8階部分 | 
| 主要採光 | 南西向 | バルコニー | 南西向74.09㎡ | 
| その他 | |||
| 権利 | 所有権 | ||
| 保証・評価 | |||
| リフォーム | |||
| 総戸数 | 面積 | ||
| 築年月 | 2003年(平成15年)01月築 | 建物構造 | RC | 
| 施工会社 | |||
| 管理会社 | 株式会社合人社計画研究所 | 管理方式 | 全部委託 日勤管理 | 
| 駐車場 | 【駐車場】近有 料金:8,800円/月 料金帯:6,600円/月~8,800円/月 距離:100m 【バイク置き場】あり 【駐輪場】あり | ||
| 都市計画 | 用途地域 | 1種住居 | |
| 建ぺい/容積率 | 土地国土法 | ||
| 法令制限 | |||
| 小学区 | 健軍小学校 徒歩12分 (約950m) | 中学区 | 湖東中学校 徒歩18分 (約1400m) | 
| 現況 | 空 | 引渡 | 相談 | 
| 管理費 | 15,300円/月 | 修繕積立金 | 22,180円/月 | 
| その他費用 | その他負担金:2200円 ルーフバルコニー使用料 2,200円/月 | ||
| 周辺環境 | 熊本東郵便局 徒歩8分 (約620m) 鮮ど市場 本店 徒歩10分 (約760m) 熊本市立健軍小学校 徒歩12分 (約920m) 健軍保育園 徒歩12分 (約940m) 田畑こどもクリニック 徒歩12分 (約940m) マルエイ尾ノ上店 徒歩14分 (約1050m) Maxvalu(マックスバリュ) 神水店 徒歩16分 (約1210m) ファミリーマート熊本動植物園通り店 徒歩16分 (約1250m) セブンイレブン 熊本神水1丁目店 徒歩16分 (約1250m) 熊本市立湖東中学校 徒歩20分 (約1550m) | ||
| 備考 | |||
| 物件番号 | 4367347 | 取引態様 | 媒介 | 
取扱店舗情報
| 電話番号 | 096-237-6412 | 
|---|---|
| 所在地 | 〒862-0918 熊本県熊本市東区花立5丁目1-6 幸ビル1階西1号室 | 
| 営業時間 | 10:00~18:00 | 
| 定休日 | 水曜日 | 
| 宅建免許番号 | 熊本県知事(1)第5757号 | 
| アクセス | 店舗への地図はこちら | 

来店ご予約
熊本県熊本市東区で価格が似ている物件はこちら
- 熊本県
 マイページ物件数
- 3,041件
熊本県中古マンション新着物件
- 
				- 
							                             
- 
						- 中古マンション
- 1,290万円
- 
								
									熊本市中央区新町4丁目 
- 
                                熊本市上熊本線新町駅 
 
 
- 
							                            
- 
				- 
							                             
- 
						- 中古マンション
- 2,090万円
- 
								
									熊本市中央区大江1丁目 
- 
                                熊本電気鉄道黒髪町駅 
 
 
- 
							                            
- 
				- 
							                             
- 
						- 中古マンション
- 2,990万円
- 
								
									熊本市中央区九品寺6丁目 
- 
                                JR豊肥本線南熊本駅 
 
 
- 
							                            
- 
				- 
							                             
- 
						- 収益
- 3,280万円
- 
								
									熊本市中央区新町1丁目 
- 
                                熊本市上熊本線蔚山町駅 
 
 
- 
							                            
- 
				- 
							                             
- 
						- 中古マンション
- 1,499万円
- 
								
									熊本市中央区島崎1丁目 
- 
                                熊本市上熊本線段山町駅 
 
 
- 
							                            
- 
				- 
							                             
- 
						- 中古マンション
- 2,590万円
- 
								
									熊本市中央区国府3丁目 
- 
                                JR豊肥本線新水前寺駅 
 
 
- 
							                            
- 
				- 
							                             
- 
						- 中古マンション
- 2,599万円
- 
								
									熊本市南区田井島1丁目 
- 
                                JR豊肥本線南熊本駅 
 
 
- 
							                            
- お近くの店舗を探す
- 
            
            
            
おすすめ物件
- 
				- 
														 
- 
						- 中古マンション
- 1,850万円
- 
								
									熊本市東区新南部5丁目 
- 
								九州産交バス バス停【北バイパス東新南部】 
 
 
- 
														
- 
				- 
														 
- 
						- 中古マンション
- 1,490万円
- 
								
									熊本市中央区萩原町 
- 
								JR豊肥本線南熊本 
 
 
- 
														
 
     
                         
                         
                         
                    







 
                































 
                 
             
                    

 
                                            
 
                                             
                                             
						 
						
担当エージェント:坂元 亜耶
地域密着だからこその情報量でお客様にぴったりの物件をご提案します!
おうち選びのメリットだけでなく、リスクもお伝えできる人間を目指しております。
不動産のことはハウスドゥ熊本花立にお任せください!