中古マンション チサンマンション倉敷 倉敷市昭和1丁目の中古マンション
掲載情報更新日:2025年10月04日 次回更新予定日:2025年10月18日
- 280万円
-
- 借入ご希望金額
万円 - 借入期間
年 - 借入金利
% - 月々のお支払い金額
円
- 借入ご希望金額
※ 月々のお支払例は目安の試算となりますので、実際の金額とは異なる場合がございます。詳しくは店舗までお問合わせください。
- 倉敷市昭和1丁目
-
JR山陽本線『倉敷』 徒歩7分 (約560m)
下電バス「昭和町」バス停『徒歩』 徒歩1分 (約80m)
倉敷市昭和1丁目マンション | 物件情報
●倉敷駅まで徒歩7分
●地上11階建 7階部分
●ワンルーム
●管理費:4,300円 積立金:7,400円
●オーナーチェンジ
●家賃35,000円にて賃貸中
物件の設備
- 公営水道
- 下水道
- 公共下水
- 都市ガス
物件の特徴
- 管理人日勤
物件詳細情報
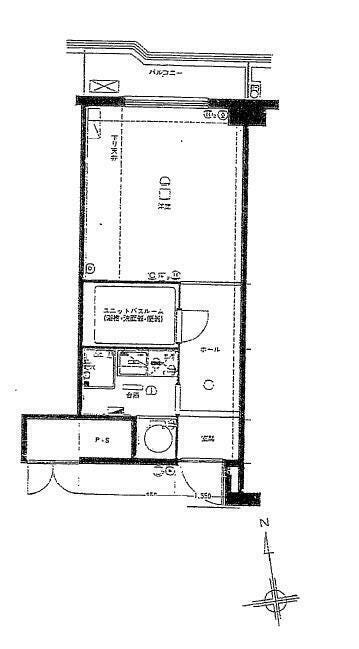
価格 | 280万円 | 間取り | |
---|---|---|---|
物件種別 | 中古マンション | ||
所在地 | 岡山県倉敷市昭和1丁目 | ||
アクセス |
|
||
専有面積 | 壁芯 23.07㎡ | 所在階 | 11階建/7階部分 |
主要採光 | バルコニー | ||
その他 | |||
権利 | 所有権 |
||
保証・評価 | |||
リフォーム | |||
総戸数 | 面積 | ||
築年月 | 1981年(昭和56年)11月築 | 建物構造 | SRC |
施工会社 | |||
管理会社 | 株式会社 穴吹コミュニティ | 管理方式 | 全部委託 日勤管理 |
駐車場 | 【駐車場】空無 |
||
都市計画 | 用途地域 | 商業 | |
建ぺい/容積率 | 土地国土法 | ||
法令制限 | |||
小学区 | 万寿小学校 徒歩7分 (約500m) | 中学区 | 東中学校 徒歩15分 (約1200m) |
現況 | 居住中 | 引渡 | 相談 |
管理費 | 修繕積立金 | ||
その他費用 | |||
周辺環境 | 山陽マルナカ倉敷駅前店 徒歩1分 (約65m) 倉敷駅 徒歩7分 (約500m) 倉敷市立東中学校 徒歩15分 (約1200m) 倉敷市立万寿小学校 徒歩7分 (約500m) 倉敷市立万寿幼稚園 徒歩8分 (約600m) セブンイレブン倉敷幸町店 徒歩6分 (約450m) ディスカウントドラッグコスモス倉敷駅前店 徒歩4分 (約270m) 医療法人創和会しげい病院 徒歩4分 (約300m) 倉敷駅前郵便局 徒歩8分 (約600m) 中国銀行倉敷駅前支店 徒歩7分 (約550m) |
||
備考 | ●倉敷駅まで徒歩7分 ●地上11階建 7階部分 ●ワンルーム ●管理費:4,300円 積立金:7,400円 ●オーナーチェンジ ●家賃35,000円にて賃貸中 |
||
物件番号 | 4371433 | 取引態様 | 媒介 |
取扱店舗情報
ハウスドゥ 倉敷駅東 株式会社アールイープロジェクト 店舗詳細ページへ
電話番号 | 086-424-6400 |
---|---|
所在地 | 〒710-0003 岡山県倉敷市平田681-4 |
営業時間 | 9:00~18:00 |
定休日 | 水曜日、年末年始 |
宅建免許番号 | 岡山県知事(2)第5855号 |
アクセス | 店舗への地図はこちら |
来店ご予約
岡山県倉敷市で価格が似ている物件はこちら
- 岡山県
マイページ物件数 - 4,443件
最近見た物件
-
-
-
- 中古マンション
- 1,890万円
-
倉敷市中島
-
中島口バス停
-
岡山県中古マンション新着物件
-
-
-
- 中古マンション
- 4,580万円
-
岡山市北区表町3丁目
-
JR山陽本線岡山駅
-
-
-
-
- 中古マンション
- 1,399万円
-
岡山市北区七日市西町
-
JR山陽本線岡山駅
-
-
-
-
- 中古マンション
- 1,890万円
-
倉敷市中島
-
水島臨海鉄道球場前駅
-
-
-
-
- 中古マンション
- 2,250万円
-
岡山市北区西古松西町
-
JR宇野線大元駅
-
-
-
-
- 中古マンション
- 1,290万円
-
倉敷市北浜町
-
JR山陽本線倉敷駅
-
-
-
-
- 中古マンション
- 1,199万円
-
岡山市北区奥田1丁目
-
岡山電軌清輝橋線清輝橋駅
-
-
-
-
- 中古マンション
- 1,990万円
-
岡山市北区大元駅前
-
JR宇野線大元駅
-
- お近くの店舗を探す
-
おすすめ物件
-
-
-
- 中古マンション
- 845万円
-
岡山市北区津高
-
中鉄バス中原バス停
-
-
-
-
- 中古マンション
- 550万円
-
岡山市北区内山下1丁目
-
岡山電軌東山本線県庁通り
-
-
-
-
- 中古マンション
- 550万円
-
岡山市北区内山下1丁目
-
岡山電軌東山本線県庁通り
-