Loading
  1. TOP>
  2. 中古マンション>
  3. 関東>
  4. 埼玉県>
  5. 入間市>
  6. 豊岡5丁目>
  7. 朝日パリオ入間市 入間市豊岡5丁目の中古マンション

朝日パリオ入間市 入間市豊岡5丁目の中古マンション

掲載情報更新日:2025年10月09日 次回更新予定日:2025年10月23日

  • 2,290万円
    • 借入ご希望金額
      万円
    • 借入期間
    • 借入金利
    • 月々のお支払い金額

※ 月々のお支払例は目安の試算となりますので、実際の金額とは異なる場合がございます。詳しくは店舗までお問合わせください。

  • 入間市豊岡5丁目
  • 西武池袋・豊島線『入間市』 徒歩12分 (約960m)
取扱会社:ハウスドゥ 上福岡  GLOBAL HOLDINGS株式会社
  • この物件に資料請求・問い合わせをする
  • ■お電話はこちら 通話料無料 0120-141-441

入間市豊岡5丁目マンション | 物件情報

・西武池袋線「入間市」駅より徒歩12分の立地~日当たり・眺望良好3LDK

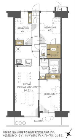
【間取り】
専有面積68.19平米、バルコニー面積7.13平米~日当たり・眺望良好3LDK

【間取り】
専有面積68.19平米、バルコニー面積7.13平米~日当たり・眺望良好3LDK

【外観】
「朝日パリオ入間市」11階建てマンション、西武池袋線「入間市」駅より徒歩12分の立地

【外観】
「朝日パリオ入間市」11階建てマンション、西武池袋線「入間市」駅より徒歩12分の立地

取扱会社
ハウスドゥ 上福岡  
  • この物件に資料請求・問い合わせをする
  • ■お電話はこちら 通話料無料 0120-141-441

アピールポイント

~只今キャンペーン中~ご成約頂いたお客様にもれなく1万円分のクオカードを進呈中~
・西武池袋線「入間市」駅より徒歩12分の立地
・専有面積68.19平米、バルコニー面積7.13平米の3LDK
・南東向きバルコニーにつき日当たり、眺望良好です
・134戸の大規模マンション
・会話が弾む対面式キッチン
・全室収納完備
・令和7年8月リノベーション完成予定
~お気軽にお問い合わせ下さい~

物件の設備

  • カウンターキッチン
  • システムキッチン
  • バス
  • トイレ
  • 室内洗濯機置場
  • 洗面所独立
  • クローゼット
  • クローゼット2箇所
  • ウォークインクローゼット
  • 収納スペース
  • 全居室収納
  • シューズボックス
  • バルコニー
  • ワイドバルコニー
  • 2WAYバルコニー
  • 平面駐車場
  • エレベーター

物件の特徴

  • 管理人日勤
  • リノベーション
  • 小学校徒歩10分以内
  • 閑静な住宅街
  • 眺望良好
  • 通風良好
  • 陽当り良好
  • ペット不可

物件詳細情報

担当エージェント:加藤 柊

弊社はより多くの方が購入し易いリーズナブルな価格の中古物件を取り揃えております。お客様一人一人のニーズに合った物件探しをモットーに全力でサポート致します。是非お気軽にご相談下さい。

価格 2,290万円 間取り 3LDK
物件種別 中古マンション
所在地 埼玉県入間市豊岡5丁目
アクセス
  • 西武池袋・豊島線『入間市』 徒歩12分 (約960m)
専有面積 壁芯 68.19㎡ 所在階 11階建/7階部分
主要採光 南東向 バルコニー 南東向7.13㎡
その他
権利 所有権
保証・評価
リフォーム 【その他】2025年08月
システムキッチン新規交換、ユニットバス新規交換、洗面化粧台新規交換、トイレ新規交換、建具新規交換、配管更新、クロス全室新規貼替、床材新規貼替、ハウスクリーニング
総戸数 134戸 面積
築年月 1995年(平成7年)07月築 建物構造 RC
施工会社
管理会社 朝日管理株式会社 管理方式 全部委託 日勤管理
駐車場 【駐車場】空有
料金:12,100円/月
料金帯:7,300円/月~12,100円/月
都市計画
用途地域 商業
建ぺい/容積率 土地国土法
法令制限
小学区 中学区
現況 引渡 相談
管理費 11,600円/月 修繕積立金 10,430円/月
その他費用
周辺環境 みつばち保育園 徒歩11分 (約820m)
おおぎ第二こども園 徒歩13分 (約990m)
入間市立東町小学校 徒歩9分 (約660m)
入間市立東町中学校 徒歩11分 (約870m)
セブン-イレブン 入間豊岡東店 徒歩4分 (約280m)
Green Garden(グリーンガーデン)武蔵藤沢 徒歩7分 (約550m)
サイオス 徒歩11分 (約830m)
ウエルシア 入間武蔵藤沢店 徒歩7分 (約550m)
入間郵便局 徒歩12分 (約900m)
原田病院 徒歩10分 (約780m)
備考 駐車場等の空き状況要確認
物件番号 4385257 取引態様 媒介

取扱店舗情報

ハウスドゥ 上福岡  GLOBAL HOLDINGS株式会社 店舗詳細ページへ

電話番号 049-264-1010
所在地 〒356-0006
埼玉県ふじみ野市霞ケ丘1丁目2番27 ココネ上福岡1F
営業時間 9:00~19:00
定休日 水曜日、年末年始
宅建免許番号 埼玉県知事(3)第22701号
アクセス 店舗への地図はこちら

ハウスドゥ  上福岡の外観

この物件に関する資料請求・お問合せ

通話料無料 0120-141-441

お問い合わせの際に「ホームページを見た」といっていただくとお話がスムーズになります。

来店ご予約

ウィンドウを閉じる

ハウスドゥ 上福岡  GLOBAL HOLDINGS株式会社への地図

  • ハウスドゥ  上福岡の地図
  • ハウスドゥ  上福岡の外観

GoogleMapで地図を見る

ウィンドウを閉じる

埼玉県入間市で価格が似ている物件はこちら

戻る

次へ

埼玉県入間市の 中古マンション 一覧から探す

埼玉県入間市で種別を変更して探す

埼玉県
マイページ物件数
3,658

マイページサービス

新規登録(無料)
  • 物件探しがもっと便利に
  • 希望情報をいち早くお届け
  • マイページ物件が閲覧可能

最近見た物件

埼玉県中古マンション新着物件

お近くの店舗を探す

おすすめ物件

無料アプリ