コンドミニアム亀有B棟 葛飾区亀有2丁目の中古マンション
掲載情報更新日:2025年11月18日 次回更新予定日:2025年12月02日
- 2,598万円
-
- 借入ご希望金額
万円 - 借入期間
年 - 借入金利
% - 月々のお支払い金額
円
- 借入ご希望金額
※ 月々のお支払例は目安の試算となりますので、実際の金額とは異なる場合がございます。詳しくは店舗までお問合わせください。
- 葛飾区亀有2丁目
-
JR千代田・常磐緩行線『亀有』 徒歩6分 (約480m)
京成本線『お花茶屋』 徒歩26分 (約2080m)
京成本線『青砥』 徒歩30分 (約2400m)
葛飾区亀有2丁目マンション | 物件情報
【即日ご案内可能】フルリノベーション物件!アリオ亀有徒歩7分!近隣に商業施設充実!
■2025年11月フルリノベーション物件
■アフターサービス保証付
■アリオ亀有徒歩7分
■近隣に商業施設充実
物件の設備
- 公営水道
- 公共下水
- 都市ガス
- 給湯
- コンロ三口
- グリル
- システムキッチン
- ユニットバス
- 追焚機能
- 浴室暖房
- 浴室乾燥機
- 温水洗浄便座
- 室内洗濯機置場
- 洗面所独立
- 照明器具
- モニタ付インターホン
- 火災警報器/報知機
- フローリング
- フローリング張替
- 24時間換気システム
- クローゼット
- シューズボックス
- バルコニー
物件の特徴
- 管理人日勤
- 内装リフォーム済
- 2沿線利用可
- 小学校徒歩10分以内
- 通風良好
- 陽当り良好
- 即入居可
- ペット不可
オープンハウス・イベント情報
開催日時:公開中 09:00~20:00
開催場所:東京都葛飾区
~~~店舗数業界No.1~~~ 全国展開のハウスドゥだからできる 不動産のワンストップサービスをご提供いたします。 ■ご案内方法 平日・夕方夜間などお好きな時間帯にご案内可能です♪ まずはご希望のお日にちを2~3日お伝えくださいませ。 また、現地集合か店舗集合かお選びいただけますので…
物件詳細情報
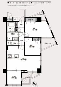
| 価格 | 2,598万円 | 間取り | 1LDK |
|---|---|---|---|
| 物件種別 | 中古マンション | ||
| 所在地 | 東京都葛飾区亀有2丁目 | ||
| アクセス |
|
||
| 専有面積 | 壁芯 36.33㎡ | 所在階 | 7階建/3階部分 |
| 主要採光 | 北東向 | バルコニー | 北東向6.00㎡ |
| その他 | |||
| 権利 | 所有権 |
||
| 保証・評価 | |||
| リフォーム | 【水回り】2025年11月 キッチン・浴室・トイレ・洗面 システムキッチン・ユニットバス・トイレ・洗面化粧台新規交換、洗濯防水パン交換 【内装】2025年11月 壁、天井 ・床 ・全室クロス ・建具 クロス全室貼替、床材新規張替、カーテンレール交換、照明器具新規取付、ハウスクリーニング等 |
||
| 総戸数 | 63戸 | 面積 | |
| 築年月 | 1977年(昭和52年)10月築 | 建物構造 | SRC |
| 施工会社 | 日本信販建設㈱ | ||
| 管理会社 | ㈱穴吹ハウジングサービス | 管理方式 | 全部委託 日勤管理 |
| 駐車場 | |||
| 都市計画 | 用途地域 | 近隣商業 | |
| 建ぺい/容積率 | 土地国土法 | ||
| 法令制限 | |||
| 小学区 | 亀青小学校 徒歩9分 (約700m) | 中学区 | 亀有中学校 徒歩4分 (約300m) |
| 現況 | 空 | 引渡 | 即 |
| 管理費 | 8,890円/月 | 修繕積立金 | 6,930円/月 |
| その他費用 | |||
| 周辺環境 | 亀有駅 徒歩6分 (約480m) 葛飾区立亀青小学校 徒歩9分 (約700m) 葛飾区立亀有中学校 徒歩4分 (約300m) まいばすけっと 亀有2丁目店 徒歩2分 (約130m) 亀有りりおっこ保育園 徒歩4分 (約250m) ローソンストア100 亀有南口店 徒歩3分 (約170m) さくら薬局 徒歩4分 (約250m) 亀有病院 徒歩4分 (約290m) 青戸平和公園 徒歩22分 (約1700m) 亀有郵便局 徒歩4分 (約300m) |
||
| 備考 | |||
| 物件番号 | 4392609 | 取引態様 | 媒介 |
取扱店舗情報
| 電話番号 | 03-5876-8384 |
|---|---|
| 所在地 | 〒125-0053 東京都葛飾区鎌倉3丁目16-3 |
| 営業時間 | 9:00~18:00 |
| 定休日 | 水曜日 |
| 宅建免許番号 | 東京都知事(1)第109052号 |
| アクセス | 店舗への地図はこちら |

来店ご予約
東京都葛飾区で価格が似ている物件はこちら
- 東京都
マイページ物件数 - 5,614件
東京都中古マンション新着物件
- お近くの店舗を探す
-
おすすめ物件
-
-

-
- 中古マンション
- 2,780万円
-
松戸市松戸
-
JR常磐線松戸
-
-
-

-
- 中古マンション
- 2,780万円
-
青梅市新町3丁目
-
JR青梅線小作
-
-
-

-
- 中古マンション
- 1億980万円
-
台東区上野7丁目
-
JR山手線上野
-
-
-

-
- 中古マンション
- 1億4,980万円
-
世田谷区玉川台2丁目
-
東急田園都市線用賀
-
-
-

-
- 中古マンション
- 5,180万円
-
大田区大森西4丁目
-
京急本線大森町
-
-
-

-
- 中古マンション
- 1,390万円
-
青梅市千ヶ瀬町1丁目
-
JR青梅線河辺
-
-
-

-
- 中古マンション
- 650万円
-
青梅市新町9丁目
-
JR青梅線小作
-
-
-

-
- 中古マンション
- 4,180万円
-
足立区東綾瀬1丁目
-
東京メトロ千代田線綾瀬
-
-
-

-
- 中古マンション
- 2,890万円
-
足立区大谷田4丁目
-
東京メトロ千代田線北綾瀬
-
-
-

-
- 中古マンション
- 4,280万円
-
葛飾区東金町6丁目
-
JR千代田・常磐緩行線金町
-



































担当エージェント:店長井上直臣
優れた住環境に住む。充実した暮らしを得る大事な第一歩です。
物件の陽当りや通風・仕様設備やお部屋の大きさの比較、近隣・周辺環境や街並みなど、資料には掲載していない情報が現地にはたくさんあります。 是非一度、ご内見ください。