Loading
  1. TOP>
  2. 中古マンション>
  3. 関東>
  4. 埼玉県>
  5. 川口市>
  6. 並木3丁目>
  7. 並木第2コーポサンキョー 川口市並木3丁目の中古マンション

並木第2コーポサンキョー 川口市並木3丁目の中古マンション

掲載情報更新日:2025年10月09日 次回更新予定日:2025年10月23日

  • 1,880万円
    • 借入ご希望金額
      万円
    • 借入期間
    • 借入金利
    • 月々のお支払い金額

※ 月々のお支払例は目安の試算となりますので、実際の金額とは異なる場合がございます。詳しくは店舗までお問合わせください。

  • 川口市並木3丁目
  • JR京浜東北・根岸線『西川口』 徒歩4分 (約320m)
取扱会社:ハウスドゥ 上福岡  GLOBAL HOLDINGS株式会社
  • この物件に資料請求・問い合わせをする
  • ■お電話はこちら 通話料無料 0120-141-441

川口市並木3丁目マンション | 物件情報

南西向き陽当たり良好・周辺商業施設充実・緑豊かな住宅街・駅徒歩4分の好立地

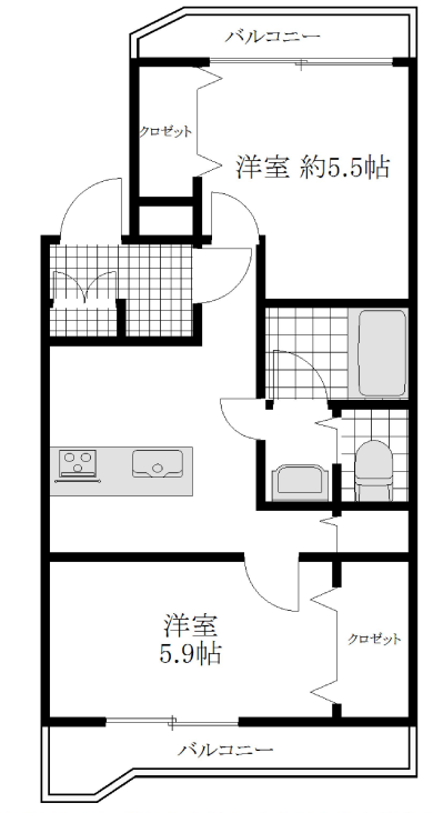
【間取り】
専有面積38.43平米、バルコニー面積9.22平米の2DKの間取り

【間取り】
専有面積38.43平米、バルコニー面積9.22平米の2DKの間取り

【外観】
「並木第2コーポサンキュー」6階建てマンション、京浜東北線「西川口」駅徒歩4分

【外観】
「並木第2コーポサンキュー」6階建てマンション、京浜東北線「西川口」駅徒歩4分

取扱会社
ハウスドゥ 上福岡  
  • この物件に資料請求・問い合わせをする
  • ■お電話はこちら 通話料無料 0120-141-441

アピールポイント

~只今キャンペーン中~ご成約頂いたお客様にもれなく1万円分のクオカードを進呈中~
・京浜東北線「西川口」駅徒歩4分
・専有面積38.43平米、バルコニー面積9.22平米の2DKの間取り
・南西向きにつき陽当たり良好
・両面バルコニーで通風良好
・緑豊かな閑静な住宅街に位置
・周辺に商業施設多数あり買い物に便利
・クローゼット2か所完備
~お気軽にお問い合わせ下さい~

物件の設備

  • 都市ガス
  • コンロ三口
  • カウンターキッチン
  • システムキッチン
  • バス
  • ユニットバス
  • トイレ
  • 温水洗浄便座
  • 洗面所独立
  • クローゼット
  • クローゼット2箇所
  • 収納スペース
  • 全居室収納
  • シューズボックス
  • バルコニー
  • 両面バルコニー
  • ワイドバルコニー

物件の特徴

  • 管理人巡回
  • 南向
  • 緑豊かな住宅地
  • スーパーが近い
  • 閑静な住宅街
  • 通風良好
  • 陽当り良好

物件詳細情報

担当エージェント:加藤 柊

弊社はより多くの方が購入し易いリーズナブルな価格の中古物件を取り揃えております。お客様一人一人のニーズに合った物件探しをモットーに全力でサポート致します。是非お気軽にご相談下さい。

価格 1,880万円 間取り 2DK
物件種別 中古マンション
所在地 埼玉県川口市並木3丁目
アクセス
  • JR京浜東北・根岸線『西川口』 徒歩4分 (約320m)
専有面積 壁芯 38.43㎡ 所在階 6階建/4階部分
主要採光 南西向 バルコニー 南西向9.22㎡
その他
権利 所有権
保証・評価
リフォーム
総戸数 23戸 面積
築年月 1978年(昭和53年)11月築 建物構造 RC
施工会社
管理会社 毎日興業株式会社 管理方式 一部管理 巡回管理
駐車場
都市計画
用途地域 近隣商業
建ぺい/容積率 土地国土法
法令制限
小学区 中学区
現況 引渡 相談
管理費 5,840円/月 修繕積立金 8,000円/月
その他費用
周辺環境 川口市立並木小学校 徒歩16分 (約1210m)
川口市立幸並中学校 徒歩12分 (約900m)
たいよう保育園 西川口駅東口園 徒歩3分 (約220m)
かわぐち杜の保育園 徒歩9分 (約700m)
セブンイレブン 蕨塚越5丁目店 徒歩5分 (約340m)
まいばすけっと 川口並木店 徒歩3分 (約170m)
まいばすけっと 西川口駅西口店 徒歩8分 (約570m)
テン・ドラッグ西川口店 徒歩6分 (約450m)
川口並木郵便局 徒歩7分 (約550m)
西川口中央クリニック 徒歩8分 (約570m)
備考
物件番号 4398869 取引態様 媒介

取扱店舗情報

ハウスドゥ 上福岡  GLOBAL HOLDINGS株式会社 店舗詳細ページへ

電話番号 049-264-1010
所在地 〒356-0006
埼玉県ふじみ野市霞ケ丘1丁目2番27 ココネ上福岡1F
営業時間 9:00~19:00
定休日 水曜日、年末年始
宅建免許番号 埼玉県知事(3)第22701号
アクセス 店舗への地図はこちら

ハウスドゥ  上福岡の外観

この物件に関する資料請求・お問合せ

通話料無料 0120-141-441

お問い合わせの際に「ホームページを見た」といっていただくとお話がスムーズになります。

来店ご予約

ウィンドウを閉じる

ハウスドゥ 上福岡  GLOBAL HOLDINGS株式会社への地図

  • ハウスドゥ  上福岡の地図
  • ハウスドゥ  上福岡の外観

GoogleMapで地図を見る

ウィンドウを閉じる

埼玉県川口市で価格が似ている物件はこちら

戻る

次へ

埼玉県川口市の 中古マンション 一覧から探す

埼玉県川口市で種別を変更して探す

埼玉県
マイページ物件数
3,658

マイページサービス

新規登録(無料)
  • 物件探しがもっと便利に
  • 希望情報をいち早くお届け
  • マイページ物件が閲覧可能

埼玉県中古マンション新着物件

お近くの店舗を探す

おすすめ物件

無料アプリ