ダイアパレス琴似 札幌市西区琴似一条2丁目の中古マンション
掲載情報更新日:2025年10月13日 次回更新予定日:2025年10月27日
- 1,899万円
-
- 借入ご希望金額
万円 - 借入期間
年 - 借入金利
% - 月々のお支払い金額
円
- 借入ご希望金額
※ 月々のお支払例は目安の試算となりますので、実際の金額とは異なる場合がございます。詳しくは店舗までお問合わせください。
- 札幌市西区琴似一条2丁目
-
JR函館本線『琴似』 徒歩4分 (約320m)
札幌市東西線『琴似』 徒歩6分 (約480m)
札幌市西区琴似一条2丁目マンション | 物件情報
物件の設備
- バルコニー
- エレベーター
物件の特徴
- 管理人日勤
- ペット不可
物件詳細情報
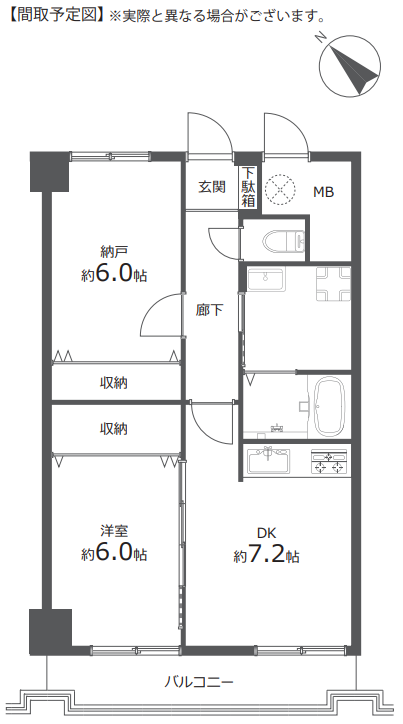
価格 | 1,899万円 | 間取り | 1DK+S |
---|---|---|---|
物件種別 | 中古マンション | ||
所在地 | 北海道札幌市西区琴似一条2丁目 | ||
アクセス |
|
||
専有面積 | 壁芯 55.71㎡ | 所在階 | 13階建/11階部分 |
主要採光 | 南西向 | バルコニー | 南西向8.05㎡ |
その他 | |||
権利 | 所有権 |
||
保証・評価 | |||
リフォーム | |||
総戸数 | 108戸 | 面積 | |
築年月 | 1983年(昭和58年)12月築 | 建物構造 | SRC |
施工会社 | |||
管理会社 | (株)東急コミュニティー | 管理方式 | 全部委託 日勤管理 |
駐車場 | |||
都市計画 | 用途地域 | ||
建ぺい/容積率 | 土地国土法 | ||
法令制限 | |||
小学区 | 琴似小学校 徒歩12分 (約890m) | 中学区 | 琴似中学校 徒歩15分 (約1200m) |
現況 | 空 | 引渡 | 相談 |
管理費 | 8,000円/月 | 修繕積立金 | 7,700円/月 |
その他費用 | |||
備考 | ■令和7年4月リフォーム完了済(※水廻り・内装等) ■ペット飼育不可 |
||
物件番号 | 4402017 | 取引態様 | 媒介 |
取扱店舗情報
ハウスドゥ 宮の沢駅前 札幌アポロ株式会社 店舗詳細ページへ
電話番号 | 011-668-3000 |
---|---|
所在地 | 〒063-0051 北海道札幌市西区宮の沢1条1丁目10番19号 |
営業時間 | 9:00~18:00 |
定休日 | 水曜日 |
宅建免許番号 | 北海道知事 石狩(2)第8772号 |
アクセス | 店舗への地図はこちら |
来店ご予約
北海道札幌市西区で価格が似ている物件はこちら
- 北海道
マイページ物件数 - 6,156件
北海道中古マンション新着物件
-
-
-
- 中古マンション
- 2,180万円
-
札幌市厚別区大谷地東3丁目
-
札幌市東西線大谷地駅
-
-
-
-
- 中古マンション
- 3,800万円
-
札幌市中央区北一条東2丁目
-
札幌市東西線バスセンター前駅
-
-
-
-
- 中古マンション
- 2,890万円
-
札幌市東区北三十八条東1丁目
-
札幌市南北線麻生駅
-
-
-
-
- 中古マンション
- 6,800万円
-
札幌市中央区南十二条西1丁目
-
札幌市南北線中島公園駅
-
-
-
-
- 中古マンション
- 2,690万円
-
札幌市西区発寒六条13丁目
-
札幌市東西線宮の沢駅
-
-
-
-
- 中古マンション
- 2,690万円
-
札幌市白石区本郷通13丁目南
-
札幌市東西線南郷13丁目駅
-
-
-
-
- 中古マンション
- 1,690万円
-
札幌市中央区南十六条西5丁目
-
札幌市南北線幌平橋駅
-
- お近くの店舗を探す
-
おすすめ物件
-
-
-
- 中古マンション
- 3,390万円
-
札幌市東区北十条東12丁目
-
札幌市東豊線環状通東
-
-
-
-
- 中古マンション
- 750万円
-
札幌市西区山の手四条10丁目
-
札幌市東西線琴似
-
-
-
-
- 中古マンション
- 1,750万円
-
札幌市中央区南三条西12丁目
-
札幌市東西線西11丁目
-
-
-
-
- 中古マンション
- 2,399万円
-
札幌市西区西野三条8丁目
-
札幌市東西線宮の沢
-
-
-
-
- 中古マンション
- 600万円
-
旭川市一条通14丁目
-
JR函館本線旭川
-
-
-
-
- 中古マンション
- 2,180万円
-
小樽市花園3丁目
-
JR函館本線南小樽
-
-
-
-
- 中古マンション
- 1,780万円
-
札幌市西区八軒五条西10丁目
-
JR函館本線発寒中央
-
-
-
-
- 中古マンション
- 1,280万円
-
函館市中道2丁目
-
函館バス鍛治2丁目
-
-
-
-
- 中古マンション
- 1,150万円
-
北広島市大曲南ヶ丘1丁目
-
札幌市東西線新さっぽろ
-
-
-
-
- 中古マンション
- 1,580万円
-
札幌市東区北二十七条東1丁目
-
札幌市南北線北24条
-