〈HN〉グラン・コート鳴海
掲載情報更新日:2025年11月24日 次回更新予定日:2025年12月08日
- 2,599万円
-
- 借入ご希望金額
万円 - 借入期間
年 - 借入金利
% - 月々のお支払い金額
円
- 借入ご希望金額
※ 月々のお支払例は目安の試算となりますので、実際の金額とは異なる場合がございます。詳しくは店舗までお問合わせください。
- 名古屋市緑区鳴海町字山腰
-
名鉄名古屋本線『鳴海』 徒歩11分 (約850m)
〈HN〉グラン・コート鳴海マンション | 物件情報
物件の設備
- システムキッチン
- ユニットバス
- 温水洗浄便座
- オートロック
- モニタ付インターホン
- フローリング張替
- トランクルーム
- バルコニー
- 南面バルコニー
- 宅配BOX
- エレベーター
- 駐輪場
物件の特徴
- 管理人巡回
- 内装リフォーム済
- 角部屋
- 陽当り良好
- ペット相談
物件詳細情報
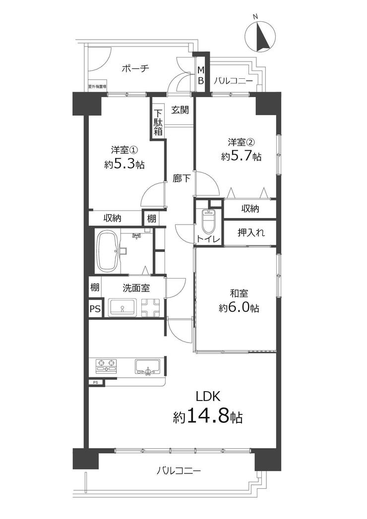
| 価格 | 2,599万円 | 間取り | 3LDK |
|---|---|---|---|
| 物件種別 | 中古マンション | ||
| 所在地 | 愛知県名古屋市緑区鳴海町字山腰39 | ||
| アクセス |
|
||
| 専有面積 | 壁芯 73.20㎡ | 所在階 | 7階建/2階部分 |
| 主要採光 | 南向 | バルコニー | 南向10.32㎡ |
| その他 | |||
| 権利 | 所有権 |
||
| 保証・評価 | |||
| リフォーム | 【水回り】2025年08月 キッチン・浴室・トイレ・洗面 【内装】2025年08月 壁、天井 ・床 ・建具 畳表替、襖張替、障子張替 |
||
| 総戸数 | 32戸 | 面積 | |
| 築年月 | 2000年(平成12年)02月築 | 建物構造 | RC |
| 施工会社 | |||
| 管理会社 | HESTA オークラハウジング株式会社 | 管理方式 | 全部委託 巡回管理 |
| 駐車場 | 【駐車場】近有 料金:6,000円/月 【駐輪場】空有 |
||
| 都市計画 | 市街化区域 |
用途地域 | 1種住居 |
| 建ぺい/容積率 | 60% / 200% | 土地国土法 | |
| 法令制限 | 準防火地域・31m高度地区 | ||
| 小学区 | 緑小学校 徒歩7分 (約550m) | 中学区 | 左京山中学校 徒歩19分 (約1500m) |
| 現況 | 空 | 引渡 | 相談 |
| 管理費 | 8,900円/月 | 修繕積立金 | 14,640円/月 |
| その他費用 | その他負担金:623円 保険料負担金:月額 623 円 |
||
| 備考 | ・2 階部分南向きにつき、陽当たり良好です! ※ペット飼育は小型犬等であれば飼育可。(片手で抱きかかえられて、ケージに入るサイズ)種類・数の規約の定めは無いが、1 匹が望ましい。 ※図面と現況に相違がある場合は現況優先とします。 ※売主指定の司法書士をご利用いただきます。 |
||
| 物件番号 | 4416955 | 取引態様 | 媒介 |
取扱店舗情報
| 電話番号 | 0566-70-8335 |
|---|---|
| 所在地 | 〒447-0878 愛知県碧南市松本町36-2 |
| 営業時間 | 9:00~18:00 |
| 定休日 | 水曜日、日曜日、祝日 |
| 宅建免許番号 | 愛知県知事(1)第25578号 |
| アクセス | 店舗への地図はこちら |

来店ご予約
愛知県名古屋市緑区で価格が似ている物件はこちら
- 愛知県
マイページ物件数 - 31,328件
最近見た物件
-
-

-
- 中古マンション
- 2,599万円
-
名古屋市緑区鳴海町字山腰
-
名鉄名古屋本線鳴海
-
-
-

-
- 新築一戸建て
- 2,850万円
-
一宮市東出町
-
名鉄尾西線西一宮
-
-
-

-
- 新築一戸建て
- 2,850万円
-
一宮市東出町
-
名鉄尾西線西一宮
-
愛知県中古マンション新着物件
-
-

-
- 中古マンション
- 1,399万円
-
名古屋市中村区稲西町
-
名古屋市東山線中村公園駅
-
-
-

-
- 中古マンション
- 3,480万円
-
名古屋市中区丸の内2丁目
-
名古屋市桜通線丸の内駅
-
-
-

-
- 中古マンション
- 1,500万円
-
名古屋市西区天塚町1丁目
-
名古屋市鶴舞線庄内通駅
-
-
-

-
- 中古マンション
- 790万円
-
名古屋市中川区一色新町2丁目
-
近鉄名古屋線伏屋駅
-
-
-

-
- 中古マンション
- 1,380万円
-
名古屋市中川区露橋2丁目
-
名鉄名古屋本線山王駅
-
-
-

-
- 中古マンション
- 2,598万円
-
春日井市東野町10丁目
-
JR中央本線春日井駅
-
-
-

-
- 中古マンション
- 950万円
-
瀬戸市北山町
-
名鉄瀬戸線水野駅
-
- お近くの店舗を探す
-
おすすめ物件
-
-

-
- 中古マンション
- 1,720万円
-
弥富市佐古木5丁目
-
近鉄名古屋線佐古木
-
-
-

-
- 中古マンション
- 580万円
-
名古屋市東区東桜2丁目
-
名古屋市東山線新栄町
-
-
-

-
- 中古マンション
- 1,499万円
-
名古屋市北区志賀町3丁目
-
名古屋市名城線志賀本通
-
-
-

-
- 中古マンション
- 1,380万円
-
名古屋市中川区山王2丁目
-
JR東海道本線尾頭橋
-
-
-

-
- 中古マンション
- 3,280万円
-
名古屋市熱田区新尾頭1丁目
-
JR東海道本線金山
-
-
-

-
- 中古マンション
- 3,000万円
-
名古屋市緑区鳴海町字山腰
-
名鉄名古屋本線鳴海
-
-
-

-
- 中古マンション
- 3,180万円
-
名古屋市熱田区大宝1丁目
-
名古屋市名港線日比野
-
-
-

-
- 中古マンション
- 1,190万円
-
小牧市城山2丁目
-
JR中央本線春日井
-
-
-

-
- 中古マンション
- 2,480万円
-
津島市柳原町4丁目
-
名鉄津島線津島
-
-
-

-
- 中古マンション
- 2,450万円
-
名古屋市千種区池上町2丁目
-
名古屋市東山線本山
-

















