レクセルガーデン水元公園
掲載情報更新日:2025年12月29日 次回更新予定日:2026年01月12日
- 2,290万円
-
- 借入ご希望金額
万円 - 借入期間
年 - 借入金利
% - 月々のお支払い金額
円
- 借入ご希望金額
※ 月々のお支払例は目安の試算となりますので、実際の金額とは異なる場合がございます。詳しくは店舗までお問合わせください。
- 葛飾区東水元5丁目
-
JR千代田・常磐緩行線『金町』 バス乗車21分 水元そよ風園 停 徒歩9分 (約720m)
レクセルガーデン水元公園マンション | 物件情報
70㎡超えゆとりの3LDK 収納豊富 水元公園まで徒歩1分 室内は大変綺麗にお使いです。
住戸には浴室乾燥機が付いており、エントランスはオートロック式で防犯面も安心です。また宅配ボックスもあります。小学校まで徒歩5分と近く、徒歩17分圏内にはスーパーやコンビニエンスストア、病院、飲食店などの生活施設も揃っています。都立の大きな水郷公園が隣接してあり、四季折々の移り変わりを楽しめる自然に恵まれた緑溢れる環境にあります。レクセルガーデン水元公園はJR千代田・常磐緩行線の金町駅よりバスに乗車し約13分の水元そよかぜ園バス停より徒歩7分です。
物件の設備
- 公営水道
- 公共下水
- 都市ガス
- 給湯
- コンロ三口
- カウンターキッチン
- システムキッチン
- オートバス
- 追焚機能
- 浴室乾燥機
- トイレ
- 洗面所独立
- ディンプルキー
- ダブルロックキー
- オートロック
- モニタ付インターホン
- モニタ付オートロック
- フローリング
- クローゼット
- 収納スペース
- シューズボックス
- バルコニー
- エレベーター
物件の特徴
- 管理人日勤
- 駅まで平坦
- 小学校徒歩10分以内
- 整備された歩道
- 緑豊かな住宅地
- 閑静な住宅街
- 通風良好
- 陽当り良好
- 平坦地
- ペット対応
物件詳細情報
| 価格 | 2,290万円 | 間取り | 3LDK |
|---|---|---|---|
| 物件種別 | 中古マンション | ||
| 所在地 | 東京都葛飾区東水元5丁目 | ||
| アクセス |
|
||
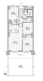
| 専有面積 | 壁芯 71.31㎡ | 所在階 | 4階建/3階部分 |
| 主要採光 | 南東向 | バルコニー | 南東向12.94㎡ |
| その他 | |||
| 権利 | 所有権 |
||
| 保証・評価 | |||
| リフォーム | |||
| 総戸数 | 79戸 | 面積 | |
| 築年月 | 1997年(平成9年)04月築 | 建物構造 | RC |
| 施工会社 | |||
| 管理会社 | ㈱大京アステージ | 管理方式 | 全部委託 日勤管理 |
| 駐車場 | |||
| 都市計画 | 用途地域 | ||
| 建ぺい/容積率 | 土地国土法 | ||
| 法令制限 | |||
| 小学区 | 東水元小学校 徒歩5分 (約350m) | 中学区 | 水元中学校 徒歩19分 (約1500m) |
| 現況 | 居住中 | 引渡 | 相談 |
| 管理費 | 12,900円/月 | 修繕積立金 | 9,980円/月 |
| その他費用 | |||
| 備考 | |||
| 物件番号 | 4420816 | 取引態様 | 専任 |
取扱店舗情報
ハウスドゥ 亀有環七通り 株式会社MOTOZUKE 店舗詳細ページへ
| 電話番号 | 03-6662-5421 |
|---|---|
| 所在地 | 〒125-0061 東京都葛飾区亀有3-43-6 岩本ビル2F |
| 営業時間 | 10:00~19:00 |
| 定休日 | 水曜日 |
| 宅建免許番号 | 東京都知事(2)第103020号 |
| アクセス | 店舗への地図はこちら |

来店ご予約
東京都葛飾区で価格が似ている物件はこちら
- 東京都
マイページ物件数 - 4,929件
最近見た物件
-
-

-
- 中古一戸建て
- 1,500万円
-
八戸市多賀台2丁目
-
社宅前バス停
-
-
-

-
- 中古マンション
- 1,050万円
-
安芸郡坂町北新地2丁目
-
JR呉線矢野
-
-
-

-
- 中古マンション
- 1,680万円
-
福岡市東区香椎2丁目
-
JR鹿児島本線香椎
-
東京都中古マンション新着物件
-
-

-
- 中古マンション
- 3,490万円
-
狛江市西野川4丁目
-
京王線柴崎駅
-
-
-

-
- 中古マンション
- 8,199万円
-
世田谷区上馬1丁目
-
東急田園都市線駒沢大学駅
-
-
-

-
- 中古マンション
- 9,980万円
-
世田谷区上用賀4丁目
-
東急田園都市線用賀駅
-
-
-

-
- 中古マンション
- 5,080万円
-
世田谷区経堂1丁目
-
小田急小田原線経堂駅
-
-
-

-
- 中古マンション
- 4,080万円
-
葛飾区柴又2丁目
-
京成金町線柴又駅
-
-
-

-
- 中古マンション
- 2億1,800万円
-
世田谷区下馬6丁目
-
東急東横線学芸大学駅
-
-
-

-
- 中古マンション
- 1億1,700万円
-
千代田区神田多町2丁目
-
東京メトロ丸ノ内線淡路町駅
-
- お近くの店舗を探す
-
おすすめ物件
-
-

-
- 中古マンション
- 7,990万円
-
台東区三ノ輪1丁目
-
東京メトロ日比谷線三ノ輪
-
-
-

-
- 中古マンション
- 8,480万円
-
台東区下谷3丁目
-
東京メトロ日比谷線入谷
-
-
-

-
- 中古マンション
- 1億4,980万円
-
世田谷区玉川台2丁目
-
東急田園都市線用賀
-
-
-

-
- 中古マンション
- 1億4,990万円
-
世田谷区経堂5丁目
-
小田急小田原線千歳船橋
-
-
-

-
- 中古マンション
- 4,790万円
-
大田区北糀谷1丁目
-
京急本線梅屋敷
-
-
-

-
- 中古マンション
- 4,998万円
-
葛飾区金町1丁目
-
JR千代田・常磐緩行線金町
-
-
-

-
- 中古マンション
- 3,690万円
-
板橋区前野町6丁目
-
東武東上線上板橋
-
-
-

-
- 中古マンション
- 3,780万円
-
板橋区栄町
-
都営三田線板橋区役所前
-
-
-

-
- 中古マンション
- 4,199万円
-
世田谷区砧2丁目
-
小田急小田原線千歳船橋
-
-
-

-
- 中古マンション
- 2億800万円
-
世田谷区桜上水4丁目
-
京王線桜上水
-





























担当エージェント:大石 光弘
諸条件応相談。お気軽にお問い合わせください。