ライオンズマンション二子玉川 世田谷区玉川3丁目の中古マンション
掲載情報更新日:2026年01月13日 次回更新予定日:2026年01月27日
- 6,680万円
-
- 借入ご希望金額
万円 - 借入期間
年 - 借入金利
% - 月々のお支払い金額
円
- 借入ご希望金額
※ 月々のお支払例は目安の試算となりますので、実際の金額とは異なる場合がございます。詳しくは店舗までお問合わせください。
- 世田谷区玉川3丁目
-
東急田園都市線『二子玉川』 徒歩8分 (約640m)
世田谷区玉川3丁目マンション | 物件情報
二子玉川駅徒歩8分の立地です。
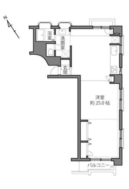
南東北向き最上階角部屋、複数のゾーニングが可能な1Rの間取りです。
物件の設備
- 公営水道
- 公共下水
- 都市ガス
- 給湯
- 食器洗浄乾燥機
- IHクッキングヒータ
- システムキッチン
- バス
- トイレ
- 室内洗濯機置場
- クローゼット
- シューズボックス
- バルコニー
- 南面バルコニー
- エレベーター
- 駐輪場
- バイク置場
物件の特徴
- 管理人巡回
- 角部屋
- 南東角部屋
- 南向
- 3方角住戸
- ペット相談
- ペット対応
物件詳細情報
| 価格 | 6,680万円 | 間取り | 1R |
|---|---|---|---|
| 物件種別 | 中古マンション | ||
| 所在地 | 東京都世田谷区玉川3丁目 | ||
| アクセス |
|
||
| 専有面積 | 53.11㎡ | 所在階 | 5階建/5階部分 |
| 主要採光 | 南向 | バルコニー | 南向3.23㎡ |
| その他 | |||
| 権利 | 所有権 |
||
| 保証・評価 | |||
| リフォーム | |||
| 総戸数 | 18戸 | 面積 | |
| 築年月 | 1978年(昭和53年)05月築 | 建物構造 | RC |
| 施工会社 | |||
| 管理会社 | 管理方式 | 全部委託 巡回管理 | |
| 駐車場 | 【駐車場】なし 【バイク置き場】無し 【駐輪場】空有 |
||
| 都市計画 | 用途地域 | ||
| 建ぺい/容積率 | 土地国土法 | ||
| 法令制限 | |||
| 小学区 | 中学区 | ||
| 現況 | 居住中 | 引渡 | 相談 |
| 管理費 | 17,690円/月 | 修繕積立金 | 25,760円/月 |
| その他費用 | |||
| 周辺環境 | みずほ銀行 玉川支店 徒歩3分 (約220m) 明治屋 玉川ストアー 徒歩3分 (約220m) 富澤商店 玉川高島屋SC店 徒歩3分 (約220m) 三菱UFJ銀行 玉川支店 徒歩7分 (約500m) SBI新生銀行 二子玉川フィナンシャルセンター 徒歩8分 (約570m) 二子玉川ライズ 徒歩9分 (約670m) 三井住友銀行 二子玉川支店 徒歩9分 (約670m) 成城石井 二子玉川東急フードショー店 徒歩9分 (約670m) 二子玉川駅 徒歩9分 (約670m) 二子玉川駅前タクシー乗り場 徒歩9分 (約670m) |
||
| 備考 | ・みずほ銀行 玉川支店まで徒歩3分(約220m) ・明治屋 玉川ストアーまで徒歩3分(約220m) ・富澤商店 玉川高島屋SC店まで徒歩3分(約220m) ・三菱UFJ銀行 玉川支店まで徒歩7分(約500m) ・SBI新生銀行 二子玉川フィナンシャルセンターまで徒歩8分(約570m) ・二子玉川ライズまで徒歩9分(約670m) ・三井住友銀行 二子玉川支店まで徒歩9分(約670m) ・成城石井 二子玉川東急フードショー店まで徒歩9分(約670m) ・二子玉川駅まで徒歩9分(約670m) ・二子玉川駅前タクシー乗り場まで徒歩9分(約670m) |
||
| 物件番号 | 4427383 | 取引態様 | 媒介 |
取扱店舗情報
ハウスドゥ 三軒茶屋 株式会社エルピープロ 店舗詳細ページへ
| 電話番号 | 03-6450-7233 |
|---|---|
| 所在地 | 〒154-0024 東京都世田谷区三軒茶屋2丁目34-1 1F |
| 営業時間 | 10:00~18:00 |
| 定休日 | 水曜日 |
| 宅建免許番号 | 東京都知事(3)第96562号 |
| アクセス | 店舗への地図はこちら |

来店ご予約
東京都世田谷区で価格が似ている物件はこちら
- 東京都
マイページ物件数 - 5,022件
最近見た物件
-
-

-
- 新築一戸建て
- 3,830万円
-
一宮市木曽川町黒田字北宿五の切
-
名鉄名古屋本線黒田
-
-
-

-
- 新築一戸建て
- 4,680万円
-
堺市北区新金岡町5丁
-
大阪市御堂筋線新金岡
-
-
-

-
- 中古マンション
- 1,980万円
-
名古屋市緑区左京山
-
名鉄名古屋本線左京山
-
東京都中古マンション新着物件
- お近くの店舗を探す
-
おすすめ物件
-
-

-
- 中古マンション
- 3,680万円
-
千葉市中央区千葉港
-
千葉都市モノレール市役所前
-
-
-

-
- 中古マンション
- 9,980万円
-
台東区北上野2丁目
-
東京メトロ日比谷線入谷
-
-
-

-
- 中古マンション
- 7,899万円
-
大田区大森西5丁目
-
京急本線大森町
-
-
-

-
- 中古マンション
- 2億1,800万円
-
大田区山王3丁目
-
JR京浜東北・根岸線大森
-
-
-

-
- 中古マンション
- 2,780万円
-
青梅市新町3丁目
-
JR青梅線小作
-
-
-

-
- 中古マンション
- 5,480万円
-
調布市上石原3丁目
-
京王線西調布
-
-
-

-
- 中古マンション
- 7,680万円
-
調布市東つつじケ丘2丁目
-
京王線つつじヶ丘
-
-
-

-
- 中古マンション
- 5,498万円
-
台東区台東3丁目
-
東京メトロ日比谷線仲御徒町
-
-
-

-
- 中古マンション
- 2,980万円
-
足立区中川4丁目
-
JR千代田・常磐緩行線亀有
-
-
-

-
- 中古マンション
- 1,980万円
-
足立区宮城1丁目
-
JR京浜東北・根岸線王子
-



















現在居住中です。
室内大変きれいにお使いです。