ライオンズマンション二子玉川
掲載情報更新日:2026年01月16日 次回更新予定日:2026年01月30日
- 6,580万円
-
- 借入ご希望金額
万円 - 借入期間
年 - 借入金利
% - 月々のお支払い金額
円
- 借入ご希望金額
※ 月々のお支払例は目安の試算となりますので、実際の金額とは異なる場合がございます。詳しくは店舗までお問合わせください。
- 世田谷区玉川3丁目
-
東急田園都市線『二子玉川』 徒歩8分 (約640m)
ライオンズマンション二子玉川マンション | 物件情報
■2沿線利用可能♪ ■オートロック・宅配ボックス完備 ■最上階 ■ペット飼育可能
《Access》
・田園都市線・世田谷線「二子玉川駅」歩8分
《Point》
・閑静な住宅街の緑豊かな住環境
・2沿線利用可能!市街地も近く、都心へのアクセス良好◎
・オートロック・宅配ボックス完備
・ペット飼育可(細則あり)
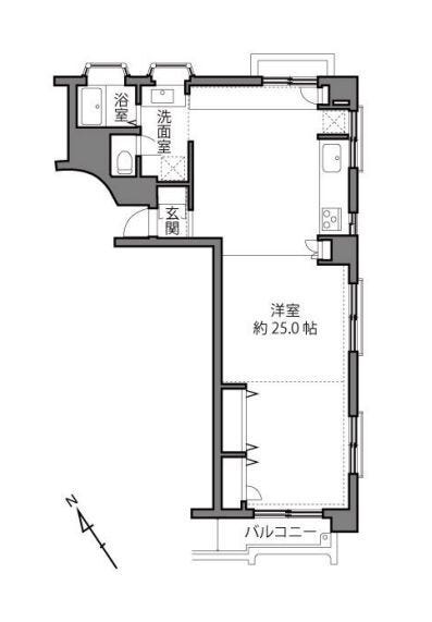
・洋室25帖のゆとりある間取り
・2面採光で日当たり・通風良好
・最上階&角住戸 眺望良好
・キッチンは食洗機付♪
・クローゼット2か所あり
物件の設備
- 公営水道
- 公共下水
- 都市ガス
- 給湯
- 食器洗浄乾燥機
- IHクッキングヒータ
- システムキッチン
- バス
- 浴室に窓
- トイレ
- 温水洗浄便座
- B/T別室
- 室内洗濯機置場
- 洗髪洗面化粧台
- 洗面所独立
- 照明器具
- BS
- CS
- ネット専用回線
- オートロック
- モニタ付インターホン
- 防犯カメラ
- 火災警報器/報知機
- 2面採光
- 全室2面採光
- 出窓
- フローリング
- 全室フローリング
- 24時間換気システム
- クローゼット
- クローゼット2箇所
- シューズボックス
- バルコニー
- 宅配BOX
- エレベーター
物件の特徴
- 管理人巡回
- 角部屋
- 2沿線利用可
- 駅まで平坦
- 小学校徒歩10分以内
- 緑豊かな住宅地
- スーパーが近い
- 閑静な住宅街
- 市街地が近い
- 都市近郊
- 眺望良好
- 通風良好
- 陽当り良好
- 最上階
- 上階無
- 平坦地
- ペット相談
- ペット対応
物件詳細情報
| 価格 | 6,580万円 | 間取り | 1R |
|---|---|---|---|
| 物件種別 | 中古マンション | ||
| 所在地 | 東京都世田谷区玉川3丁目 | ||
| アクセス |
|
||
| 専有面積 | 壁芯 53.11㎡ | 所在階 | 5階建/5階部分 |
| 主要採光 | 南西向 | バルコニー | 南西向3.23㎡ |
| その他 | |||
| 権利 | 所有権 |
||
| 保証・評価 | |||
| リフォーム | |||
| 総戸数 | 19戸 | 面積 | |
| 築年月 | 1978年(昭和53年)05月築 | 建物構造 | RC |
| 施工会社 | |||
| 管理会社 | ㈱大京アステージ | 管理方式 | 全部委託 巡回管理 |
| 駐車場 | |||
| 都市計画 | 用途地域 | ||
| 建ぺい/容積率 | 土地国土法 | ||
| 法令制限 | |||
| 小学区 | 二子玉川小学校 徒歩6分 (約410m) | 中学区 | 瀬田中学校 徒歩15分 (約1150m) |
| 現況 | 居住中 | 引渡 | 相談 |
| 管理費 | 17,690円/月 | 修繕積立金 | 25,760円/月 |
| その他費用 | |||
| 周辺環境 | ココカラファイン二子玉川店 徒歩1分 (約60m) 玉川高島屋S・C 徒歩3分 (約220m) 北野エースフーズブティック玉川高島屋店 徒歩4分 (約320m) 世田谷区立二子玉川小学校 徒歩6分 (約410m) 東京都市大学二子幼稚園 徒歩7分 (約520m) 二子玉川郵便局 徒歩10分 (約740m) 二子玉川緑地運動場 徒歩10分 (約800m) 世田谷区立瀬田中学校 徒歩15分 (約1150m) 公益財団法人日産厚生会玉川病院 徒歩15分 (約1160m) |
||
| 備考 | |||
| 物件番号 | 4424525 | 取引態様 | 媒介 |
取扱店舗情報
ハウスドゥ 千歳船橋 R2-CONNECT株式会社 店舗詳細ページへ
| 電話番号 | 03-5799-7621 |
|---|---|
| 所在地 | 〒156-0054 東京都世田谷区桜丘5丁目47-19 |
| 営業時間 | 9:00~19:00 |
| 定休日 | 火曜日、水曜日 |
| 宅建免許番号 | 東京都知事(1)第107079号 |
| アクセス | 店舗への地図はこちら |

来店ご予約
東京都世田谷区で価格が似ている物件はこちら
- 東京都
マイページ物件数 - 5,022件
最近見た物件
-
-

-
- 中古マンション
- 1,450万円
-
名古屋市名東区上社2丁目
-
名古屋市東山線上社
-
-
-

-
- 中古マンション
- 1,380万円
-
名古屋市中川区尾頭橋3丁目
-
JR東海道本線尾頭橋
-
東京都中古マンション新着物件
- お近くの店舗を探す
-
おすすめ物件
-
-

-
- 中古マンション
- 3,680万円
-
千葉市中央区千葉港
-
千葉都市モノレール市役所前
-
-
-

-
- 中古マンション
- 9,980万円
-
台東区北上野2丁目
-
東京メトロ日比谷線入谷
-
-
-

-
- 中古マンション
- 7,899万円
-
大田区大森西5丁目
-
京急本線大森町
-
-
-

-
- 中古マンション
- 2億1,800万円
-
大田区山王3丁目
-
JR京浜東北・根岸線大森
-
-
-

-
- 中古マンション
- 2,780万円
-
青梅市新町3丁目
-
JR青梅線小作
-
-
-

-
- 中古マンション
- 5,480万円
-
調布市上石原3丁目
-
京王線西調布
-
-
-

-
- 中古マンション
- 7,680万円
-
調布市東つつじケ丘2丁目
-
京王線つつじヶ丘
-
-
-

-
- 中古マンション
- 5,498万円
-
台東区台東3丁目
-
東京メトロ日比谷線仲御徒町
-
-
-

-
- 中古マンション
- 2,980万円
-
足立区中川4丁目
-
JR千代田・常磐緩行線亀有
-
-
-

-
- 中古マンション
- 1,980万円
-
足立区宮城1丁目
-
JR京浜東北・根岸線王子
-




















世田谷区物件はハウスドゥ千歳船橋へお任せください。
物件、資金計画、周辺環境もご案内させて頂きます♪
資料請求、ご見学お気軽にお問合せください。