ローズハイツ夙川 西宮市寿町の中古マンション
掲載情報更新日:2026年02月19日 次回更新予定日:2026年03月05日
- 3,590万円
-
- 借入ご希望金額
万円 - 借入期間
年 - 借入金利
% - 月々のお支払い金額
円
- 借入ご希望金額
※ 月々のお支払例は目安の試算となりますので、実際の金額とは異なる場合がございます。詳しくは店舗までお問合わせください。
- 西宮市寿町
-
阪急電鉄神戸線『夙川』 徒歩8分 (約640m)
JR東海道線『さくら夙川』 徒歩9分 (約720m)
阪神電鉄本線『西宮』 徒歩13分 (約1040m)
西宮市寿町マンション | 物件情報
〇南向きのため、日当たり・通風良好!
〇阪急・JR・阪神の3沿線が徒歩圏内!
物件の設備
- 公営水道
- 下水道
- 都市ガス
- システムキッチン
- LDK18畳以上
- ウォークインクローゼット
- バルコニー
- 南面バルコニー
- エレベーター
物件の特徴
- 管理人日勤
- 内装リフォーム済
- 南向
- 3沿線以上利用可
- 駅まで平坦
- スーパーが近い
- 閑静な住宅街
- 市街地が近い
- 通風良好
- 陽当り良好
- 即入居可
- ペット不可
物件詳細情報
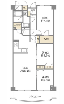
| 価格 | 3,590万円 | 間取り | 3LDK |
|---|---|---|---|
| 物件種別 | 中古マンション | ||
| 所在地 | 兵庫県西宮市寿町 | ||
| アクセス |
|
||
| 専有面積 | 壁芯 81.05㎡ | 所在階 | 7階建/5階部分 |
| 主要採光 | 南向 | バルコニー | 南向9.45㎡ |
| その他 | |||
| 権利 | 所有権 |
||
| 保証・評価 | |||
| リフォーム | 【水回り】2025年06月 キッチン・浴室・トイレ・他[洗面化粧台] 【内装】2025年06月 建具 クロス(全面)・フローリング(全面)張替 |
||
| 総戸数 | 面積 | ||
| 築年月 | 1977年(昭和52年)11月築 | 建物構造 | RC |
| 施工会社 | 東海興業 | ||
| 管理会社 | 日本管財住宅管理株式会社 | 管理方式 | 全部委託 日勤管理 管理組合あり |
| 駐車場 | 【駐車場】空無 |
||
| 都市計画 | 用途地域 | ||
| 建ぺい/容積率 | 土地国土法 | ||
| 法令制限 | |||
| 小学区 | 中学区 | ||
| 現況 | 空 | 引渡 | 即 |
| 管理費 | 11,630円/月 | 修繕積立金 | 9,990円/月 |
| その他費用 | |||
| 周辺環境 | コープ 夙川店 徒歩4分 (約260m) 安井小学校 徒歩5分 (約380m) 阪急夙川駅 徒歩5分 (約350m) 西田公園 徒歩7分 (約490m) JRさくら夙川駅 徒歩6分 (約430m) 夙川グリーンタウン 徒歩7分 (約500m) 安井幼稚園 徒歩8分 (約620m) ダイエーグルメシティ 夙川店 徒歩7分 (約560m) ニコニコ桜保育園 徒歩8分 (約610m) |
||
| 備考 | |||
| 物件番号 | 4432466 | 取引態様 | 媒介 |
取扱店舗情報
ハウスドゥ 阪神西宮駅前 エル・パセオ住宅販売株式会社 店舗詳細ページへ
| 電話番号 | 0798-31-0031 |
|---|---|
| 所在地 | 〒662-0916 兵庫県西宮市戸田町2-21 |
| 営業時間 | 9:00~20:00 |
| 定休日 | 第一火曜日、水曜日、年末年始 |
| 宅建免許番号 | 兵庫県知事(2)第204329号 |
| アクセス | 店舗への地図はこちら |

来店ご予約
兵庫県西宮市で価格が似ている物件はこちら
- 兵庫県
マイページ物件数 - 3,397件
兵庫県中古マンション新着物件
-
-

-
- 中古マンション
- 1,480万円
-
明石市西明石西町2丁目
-
JR山陽本線西明石駅
-
-
-

-
- 中古マンション
- 1,250万円
-
加古川市加古川町備後
-
山陽電鉄本線尾上の松駅
-
-
-

-
- 中古マンション
- 1,590万円
-
芦屋市若葉町
-
阪神電鉄本線芦屋駅
-
-
-

-
- 中古マンション
- 2,990万円
-
神戸市須磨区道正台1丁目
-
神戸市営地下鉄西神山手線妙法寺駅
-
-
-

-
- 中古マンション
- 2,680万円
-
明石市東野町
-
JR山陽本線朝霧駅
-
-
-

-
- 中古マンション
- 2,390万円
-
明石市中朝霧丘
-
JR山陽本線明石駅
-
-
-

-
- 中古マンション
- 1,580万円
-
加古川市平岡町新在家
-
JR山陽本線東加古川駅
-
- お近くの店舗を探す
-
おすすめ物件
-
-

-
- 中古マンション
- 1,390万円
-
明石市大久保町西島
-
山陽電鉄本線江井ヶ島
-
-
-

-
- 中古マンション
- 1億5,500万円
-
神戸市中央区中山手通6丁目
-
神戸市営地下鉄西神山手線県庁前
-
-
-

-
- 中古マンション
- 1,380万円
-
加古川市加古川町平野
-
JR山陽本線加古川
-
-
-

-
- 中古マンション
- 2,580万円
-
神戸市中央区港島中町3丁目
-
神戸新交通ポートアイランド線みなとじま
-
-
-

-
- 中古マンション
- 2,180万円
-
加古川市平岡町新在家2丁目
-
JR山陽本線東加古川
-
-
-

-
- 中古マンション
- 1,280万円
-
加古川市平岡町中野
-
JR山陽本線東加古川
-
-
-

-
- 中古マンション
- 2,680万円
-
姫路市延末1丁目
-
JR山陽本線姫路
-
-
-

-
- 中古マンション
- 3,980万円
-
神戸市垂水区舞子台7丁目
-
JR山陽本線舞子
-
-
-

-
- 中古マンション
- 2,780万円
-
神戸市中央区脇浜町3丁目
-
阪神電鉄本線春日野道
-
-
-

-
- 中古マンション
- 2,399万円
-
加古川市加古川町本町
-
JR山陽本線加古川
-





