サーパス柳丸 宮崎市柳丸町の中古マンション
掲載情報更新日:2026年04月09日 次回更新予定日:2026年04月23日
- 1,980万円
-
- 借入ご希望金額
万円 - 借入期間
年 - 借入金利
% - 月々のお支払い金額
円
- 借入ご希望金額
※ 月々のお支払例は目安の試算となりますので、実際の金額とは異なる場合がございます。詳しくは店舗までお問合わせください。
- 宮崎市柳丸町
-
JR日豊本線『宮崎』 徒歩17分 (約1360m)
JR日豊本線『宮崎神宮』 徒歩20分 (約1580m)
JR日豊本線『南宮崎』 徒歩47分 (約3760m)
宮崎市柳丸町マンション | 物件情報
\大切なペットと住める/《江平小学校まで徒歩10分》お気軽にお問い合わせください♪
▼オススメポイント
◎1階なので小さなお子様にも安心
◎落ち着く和室あり
◎LDKは広々20帖♪
▼立地
◎江平小学校…徒歩10分(m)
◎宮崎東中学校…徒歩10分(m)
◆◇当店について◇◆
〇不動産売買仲介専門FCで
店舗数第1位のハウスドゥ加盟店です
安心してご相談ください
■弊社サービスご案内
〇資金計画の無料相談
〇ハウスメーカー・工務店のご紹介
〇オプション、リフォーム、太陽光発電
のお見積もりから施工まで
〇保険の加入や引越しの段取り
物件の設備
- 公営水道
- 下水道
- 都市ガス
- 給湯
- カウンターキッチン
- システムキッチン
- バス
- ユニットバス
- 浴室乾燥機
- トイレ
- 室内洗濯機置場
- 洗髪洗面化粧台
- 洗面所独立
- オートロック
- モニタ付インターホン
- 防犯カメラ
- 全居室収納
- シューズボックス
- 宅配BOX
物件の特徴
- 管理人日勤
- 外観タイル張
物件詳細情報
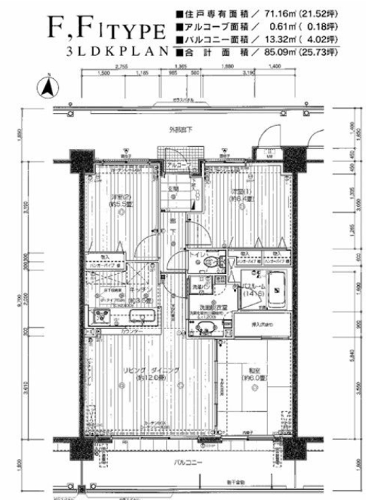
| 価格 | 1,980万円 | 間取り | 3LDK |
|---|---|---|---|
| 物件種別 | 中古マンション | ||
| 所在地 | 宮崎県宮崎市柳丸町 | ||
| アクセス |
|
||
| 専有面積 | 71.16㎡ | 所在階 | 8階建/1階部分 |
| 主要採光 | バルコニー | ||
| その他 | |||
| 権利 | 所有権 |
||
| 保証・評価 | |||
| リフォーム | |||
| 総戸数 | 51戸 | 面積 | |
| 築年月 | 2005年(平成17年)06月築 | 建物構造 | RC |
| 施工会社 | |||
| 管理会社 | 管理方式 | 全部委託 日勤管理 | |
| 駐車場 | 【駐車場】空有 料金:5,000円/月 料金帯:5,000円/月~5,000円/月 |
||
| 都市計画 | 用途地域 | ||
| 建ぺい/容積率 | 土地国土法 | ||
| 法令制限 | |||
| 小学区 | 江平小学校 徒歩10分 (約750m) | 中学区 | 宮崎東中学校 徒歩10分 (約750m) |
| 現況 | 居住中 | 引渡 | 相談 |
| 管理費 | 8,100円/月 | 修繕積立金 | 14,200円/月 |
| その他費用 | |||
| 周辺環境 | マクドナルド 江平店 徒歩9分 (約710m) 宮崎東中学校 徒歩9分 (約670m) フェニックスガーデンうきのじょう 徒歩11分 (約850m) マルイチ 丸山店 徒歩11分 (約840m) 江平小学校 徒歩10分 (約760m) KITENビル 徒歩13分 (約1010m) ながの屋浮の城店 徒歩13分 (約1020m) ファミリーマート宮崎新城店 徒歩12分 (約910m) スターバックス宮崎青葉店 徒歩14分 (約1090m) ドラックストアモリ浮之城店 徒歩13分 (約1020m) |
||
| 備考 | |||
| 物件番号 | 4438114 | 取引態様 | 媒介 |
取扱店舗情報
| 電話番号 | 0985-66-0753 |
|---|---|
| 所在地 | 〒880-0872 宮崎県宮崎市永楽町17 |
| 営業時間 | 9:00~18:00 |
| 定休日 | 水曜日、年末年始 |
| 宅建免許番号 | 宮崎県知事(1)第5078号 |
| アクセス | 店舗への地図はこちら |

来店ご予約
宮崎県宮崎市で価格が似ている物件はこちら
- 宮崎県
マイページ物件数 - 1,552件
最近見た物件
-
-

-
- 中古マンション
- 1億7,990万円
-
墨田区太平4丁目
-
東京メトロ半蔵門線錦糸町
-
-
-

-
- 中古マンション
- 1億400万円
-
大阪市北区豊崎5丁目
-
大阪市御堂筋線中津
-
宮崎県中古マンション新着物件
- お近くの店舗を探す
-
おすすめ物件
-
-

-
- 中古マンション
- 1,580万円
-
宮崎市大字恒久
-
JR日豊本線南宮崎
-


































不動産のご相談なら古田敦也さんのCMでおなじみの全国700店舗展開中のハウスドゥ宮崎中学校前へ!当店に相談してよかった!と大満足いただけるようにサポートいたします♪安心してご相談ください♪