◆新大阪スカイハイツ(角部屋×リノベ) 大阪市淀川区西宮原1丁目の中古マンション
NEW 10.18掲載情報更新日:2025年10月18日 次回更新予定日:2025年11月01日
- 2,480万円
-
- 借入ご希望金額
万円 - 借入期間
年 - 借入金利
% - 月々のお支払い金額
円
- 借入ご希望金額
※ 月々のお支払例は目安の試算となりますので、実際の金額とは異なる場合がございます。詳しくは店舗までお問合わせください。
- 大阪市淀川区西宮原1丁目
-
JR東海道新幹線『新大阪』 徒歩9分 (約720m)
大阪市御堂筋線『新大阪』 徒歩9分 (約720m)
阪急電鉄宝塚線『三国』 徒歩14分 (約1080m)
大阪市淀川区西宮原1丁目マンション | 物件情報
高層階角部屋!南東向き日当たり・眺望良好!
2024年新規リフォーム済み物件!高層階角部屋のワイドバルコニー♪
物件の設備
- フローリング張替
物件の特徴
- 管理人日勤
- 内装リフォーム済
- 即入居可
オープンハウス・イベント情報
開催日時:公開中 09:00~21:00
開催場所:大阪府大阪市淀川区
物件詳細情報
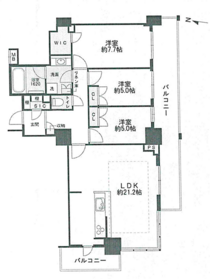
価格 | 2,480万円 | 間取り | 2LDK |
---|---|---|---|
物件種別 | 中古マンション | ||
所在地 | 大阪府大阪市淀川区西宮原1丁目 | ||
アクセス |
|
||
専有面積 | 55.30㎡ | 所在階 | 11階建/8階部分 |
主要採光 | 南向 | バルコニー | |
その他 | |||
権利 | 所有権 |
||
保証・評価 | |||
リフォーム | 【水回り】2024年06月 キッチン・浴室・トイレ・洗面・給湯器 システムキッチン新調・洗面台新調・トイレ新調・給湯器交換・ユニットバス新調 【内装】2024年06月 全面 ・壁、天井 ・床 ・全室クロス ・建具 ・サッシ 全室クロス入替・全室フローリング張替・クッションフロア入替 |
||
総戸数 | 136戸 | 面積 | |
築年月 | 1975年(昭和50年)06月築 | 建物構造 | SRC |
施工会社 | |||
管理会社 | 管理方式 | 全部委託 日勤管理 | |
駐車場 | 【駐車場】空無 |
||
都市計画 | 用途地域 | ||
建ぺい/容積率 | 土地国土法 | ||
法令制限 | |||
小学区 | 宮原小学校 徒歩7分 (約510m) | 中学区 | 宮原中学校 徒歩10分 (約750m) |
現況 | 空 | 引渡 | 即 |
管理費 | 7,320円/月 | 修繕積立金 | 8,950円/月 |
その他費用 | |||
周辺環境 | グルメシティ新大阪店 徒歩4分 (約250m) ライフ セントラルスクエア西宮原店 徒歩7分 (約520m) マックスバリュ 淀川三国店 徒歩6分 (約410m) 市立宮原小学校 徒歩7分 (約510m) 大阪市立宮原中学校 徒歩10分 (約750m) 市立西中島小学校 徒歩10分 (約730m) 市立三国小学校 徒歩10分 (約740m) スーパー玉出 淀川店 徒歩13分 (約970m) ダイエー西中島店イオンフードスタイル 徒歩12分 (約920m) 大阪メトロ御堂筋線 新大阪 徒歩12分 (約920m) |
||
備考 | |||
物件番号 | 4452762 | 取引態様 | 媒介 |
取扱店舗情報
ハウスドゥ 新大阪東口 株式会社トップレベル 店舗詳細ページへ
電話番号 | 06-6195-9101 |
---|---|
所在地 | 〒533-0033 大阪府大阪市東淀川区東中島1丁目20-12 2階 |
営業時間 | 9:00~18:00 |
定休日 | 水曜日 |
宅建免許番号 | 大阪府知事(1)第64074号 |
アクセス | 店舗への地図はこちら |
来店ご予約
大阪府大阪市淀川区で価格が似ている物件はこちら
- 大阪府
マイページ物件数 - 14,431件
大阪府中古マンション新着物件
-
-
-
- 中古マンション
- 2,190万円
-
豊中市城山町1丁目
-
阪急電鉄宝塚線曽根駅
-
-
-
-
- 中古マンション
- 1,880万円
-
大阪市東住吉区桑津1丁目
-
JR関西本線東部市場前駅
-
-
-
-
- 中古マンション
- 900万円
-
茨木市玉櫛1丁目
-
大阪モノレール南茨木駅
-
-
-
-
- 中古マンション
- 2,300万円
-
八尾市光町1丁目
-
近鉄大阪線近鉄八尾駅
-
-
-
-
- 中古マンション
- 5,980万円
-
大阪市都島区中野町5丁目
-
JR大阪環状線桜ノ宮駅
-
-
-
-
- 中古マンション
- 1億590万円
-
大阪市北区本庄東1丁目
-
大阪市谷町線天神橋筋六丁目駅
-
-
-
-
- 中古マンション
- 1,980万円
-
泉大津市助松町3丁目
-
南海電鉄本線松ノ浜駅
-
- お近くの店舗を探す
-
おすすめ物件
-
-
-
- 中古マンション
- 1,080万円
-
泉大津市東港町
-
南海電鉄本線泉大津
-
-
-
-
- 中古マンション
- 2,098万円
-
大阪市住之江区新北島5丁目
-
大阪市四つ橋線住之江公園
-
-
-
-
- 中古マンション
- 2,780万円
-
大阪市住吉区墨江4丁目
-
南海電鉄高野線沢ノ町
-
-
-
-
- 中古マンション
- 4,890万円
-
吹田市江の木町
-
大阪市御堂筋線江坂
-
-
-
-
- 中古マンション
- 2,580万円
-
大阪市住之江区平林南2丁目
-
南港ポートタウン線(ニュートラム)平林
-
-
-
-
- 中古マンション
- 4,280万円
-
吹田市南金田2丁目
-
大阪市御堂筋線江坂
-
-
-
-
- 中古マンション
- 2,880万円
-
大阪市城東区今福西5丁目
-
大阪市長堀鶴見緑地線蒲生四丁目
-
-
-
-
- 中古マンション
- 3,790万円
-
吹田市穂波町
-
阪急電鉄千里線吹田
-
-
-
-
- 中古マンション
- 1,798万円
-
泉大津市東雲町
-
南海電鉄本線泉大津
-
-
-
-
- 中古マンション
- 2,680万円
-
茨木市天王2丁目
-
阪急電鉄京都線南茨木
-
◆こちらのおうちはハウスドゥ新大阪東口が鍵をお預かりしておりますので、あらかじめご予約頂きましたらお仕事終わりの夜の時間帯でもご案内可能です。(ぜひご予約下さい)
現地待ち合わせも可能です。ご相談下さい!