アデニウムタワー梅田
掲載情報更新日:2026年02月02日 次回更新予定日:2026年02月16日
- 1億590万円
-
- 借入ご希望金額
万円 - 借入期間
年 - 借入金利
% - 月々のお支払い金額
円
- 借入ご希望金額
※ 月々のお支払例は目安の試算となりますので、実際の金額とは異なる場合がございます。詳しくは店舗までお問合わせください。
- 大阪市北区本庄東1丁目
-
大阪市谷町線『天神橋筋六丁目』 徒歩4分 (約320m)
大阪市谷町線『中崎町』 徒歩7分 (約560m)
JR大阪環状線『天満』 徒歩14分 (約1120m)
アデニウムタワー梅田マンション | 物件情報
◆ハウスドゥ天六駅前おすすめ物件です♪
◆大阪メトロ谷町線・堺筋線「天神橋筋六丁目」駅徒歩4分
◆南西角部屋で眺望良好♪
物件の設備
- 公営水道
- 下水道
- 都市ガス
- カウンターキッチン
- システムキッチン
- 室内洗濯機置場
- 洗面所独立
- インターネット接続可
- バルコニー
- 南面バルコニー
- 宅配BOX
- エレベーター
物件の特徴
- 管理人常駐
- 2沿線利用可
- 3沿線以上利用可
物件詳細情報
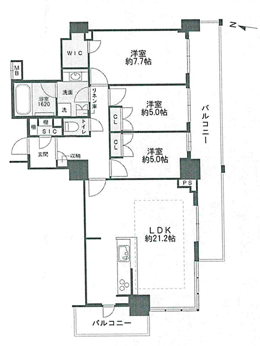
| 価格 | 1億590万円 | 間取り | 3LDK |
|---|---|---|---|
| 物件種別 | 中古マンション | ||
| 所在地 | 大阪府大阪市北区本庄東1丁目 | ||
| アクセス |
|
||
| 専有面積 | 壁芯 88.24㎡ | 所在階 | 30階建/19階部分 |
| 主要採光 | バルコニー | 南向21.64㎡ | |
| その他 | |||
| 権利 | 所有権 |
||
| 保証・評価 | |||
| リフォーム | |||
| 総戸数 | 面積 | ||
| 築年月 | 2011年(平成23年)07月築 | 建物構造 | RC |
| 施工会社 | |||
| 管理会社 | 株式会社 ジョイント・コーポレーション | 管理方式 | 全部委託 常駐管理 |
| 駐車場 | |||
| 都市計画 | 市街化区域 |
用途地域 | 商業 |
| 建ぺい/容積率 | 80% / 600% | 土地国土法 | |
| 法令制限 | |||
| 小学区 | 豊崎本庄小学校 徒歩5分 (約350m) | 中学区 | 豊崎中学校 徒歩10分 (約800m) |
| 現況 | 居住中 | 引渡 | 相談 |
| 管理費 | 22,000円/月 | 修繕積立金 | 13,240円/月 |
| その他費用 | インターネット:1260円/月 |
||
| 備考 | |||
| 物件番号 | 4457160 | 取引態様 | 媒介 |
取扱店舗情報
| 電話番号 | 06-6881-4360 |
|---|---|
| 所在地 | 〒531-0041 大阪府大阪市北区天神橋7丁目3-2 大山ビル6F |
| 営業時間 | 10:00~19:00 |
| 定休日 | 火曜日・水曜日 |
| 宅建免許番号 | 大阪府知事(3)第56923号 |
| アクセス | 店舗への地図はこちら |

来店ご予約
大阪府大阪市北区で価格が似ている物件はこちら
- 大阪府
マイページ物件数 - 16,990件
大阪府中古マンション新着物件
-
-

-
- 中古マンション
- 2,780万円
-
豊中市東寺内町
-
北大阪急行南北線緑地公園駅
-
-
-

-
- 中古マンション
- 2,480万円
-
吹田市千里万博公園
-
大阪モノレール山田駅
-
-
-

-
- 中古マンション
- 1,100万円
-
吹田市山田西1丁目
-
阪急電鉄千里線南千里駅
-
-
-

-
- 中古マンション
- 780万円
-
大阪市東淀川区東中島1丁目
-
JRおおさか東線新大阪駅
-
-
-

-
- 中古マンション
- 2,198万円
-
東大阪市菱屋西5丁目
-
近鉄難波・奈良線河内小阪駅
-
-
-

-
- 中古マンション
- 1,590万円
-
豊中市上野西4丁目
-
大阪モノレール柴原阪大前駅
-
-
-

-
- 中古マンション
- 2,090万円
-
豊中市利倉西2丁目
-
阪急電鉄神戸線
-
- お近くの店舗を探す
-
おすすめ物件
-
-

-
- 中古マンション
- 990万円
-
大阪市住之江区南港中4丁目
-
南港ポートタウン線(ニュートラム)ポートタウン東
-
-
-

-
- 中古マンション
- 3,180万円
-
八尾市安中町3丁目
-
JR関西本線八尾
-
-
-

-
- 中古マンション
- 3,580万円
-
高槻市南総持寺町
-
阪急電鉄京都線総持寺
-
-
-

-
- 中古マンション
- 2,680万円
-
東大阪市御厨東1丁目
-
近鉄難波・奈良線八戸ノ里
-
-
-

-
- 中古マンション
- 1,880万円
-
大阪市淀川区塚本3丁目
-
JR東海道線塚本
-
-
-

-
- 中古マンション
- 4,580万円
-
八尾市山城町2丁目
-
近鉄大阪線近鉄八尾
-
-
-

-
- 中古マンション
- 1,980万円
-
大阪市淀川区新高1丁目
-
阪急電鉄神戸線神崎川
-
-
-

-
- 中古マンション
- 980万円
-
堺市東区白鷺町2丁
-
南海電鉄高野線白鷺
-
-
-

-
- 中古マンション
- 2,298万円
-
泉大津市田中町
-
南海電鉄本線泉大津
-
-
-

-
- 中古マンション
- 2,190万円
-
大阪市淀川区三国本町1丁目
-
大阪市御堂筋線新大阪
-






担当エージェント:中田 智也
◆お気軽にお問い合わせください♪