ファミールパーク鶴見
掲載情報更新日:2026年05月21日 次回更新予定日:2026年06月04日
- 2,780万円
-
- 借入ご希望金額
万円 - 借入期間
年 - 借入金利
% - 月々のお支払い金額
円
- 借入ご希望金額
※ 月々のお支払例は目安の試算となりますので、実際の金額とは異なる場合がございます。詳しくは店舗までお問合わせください。
- 大阪市鶴見区今津北1丁目
-
JRおおさか東線『放出』 徒歩13分 (約1040m)
JR片町線『放出』 徒歩13分 (約1040m)
大阪市長堀鶴見緑地線『今福鶴見』 徒歩19分 (約1500m)
ファミールパーク鶴見マンション | 物件情報
月々7.8万円~ お好みの間取りに改装可!
☆月々7.8万円~
☆お好みの間取りにリフォームできます!
☆最寄駅から京橋駅まで5分
☆2沿線3駅利用可
☆近隣に学校、幼稚園、保育園、公園あり
【内覧会開催中】
本日ご案内可能な場合もございます。
複数件併せてご内見も可能♪
他の掲載物件もまとめてご内見頂けます。気になる物件をお教え下さい。
☆0120ー684-571
お気軽にお電話ください♪
☆立地のポイント
【放出駅】徒歩約13分
【今福鶴見駅】徒歩約19分
物件の設備
- 下水道
- 都市ガス
- システムキッチン
- バルコニー
- エレベーター
- 駐輪場
物件の特徴
- 管理人日勤
- ペット不可
物件詳細情報
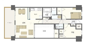
| 価格 | 2,780万円 | 間取り | 3LDK |
|---|---|---|---|
| 物件種別 | 中古マンション | ||
| 所在地 | 大阪府大阪市鶴見区今津北1丁目 | ||
| アクセス |
|
||
| 専有面積 | 64.52㎡ | 所在階 | 15階建/2階部分 |
| 主要採光 | 西向 | バルコニー | 西向8.70㎡ |
| その他 | |||
| 権利 | 所有権 |
||
| 保証・評価 | |||
| リフォーム | |||
| 総戸数 | 200戸 | 面積 | |
| 築年月 | 1994年(平成6年)03月築 | 建物構造 | SRC |
| 施工会社 | |||
| 管理会社 | 三菱地所コミュニティ | 管理方式 | 全部委託 日勤管理 |
| 駐車場 | 【駐輪場】あり |
||
| 都市計画 | 市街化区域 |
用途地域 | 準工業 |
| 建ぺい/容積率 | 60% / 200% | 土地国土法 | |
| 法令制限 | |||
| 小学区 | 榎本小学校 徒歩3分 (約240m) | 中学区 | 今津中学校 徒歩3分 (約180m) |
| 現況 | 居住中 | 引渡 | 相談 |
| 管理費 | 8,000円/月 | 修繕積立金 | 6,450円/月 |
| その他費用 | 町会費:250円/月 |
||
| 周辺環境 | JRおおさか東線 放出駅 徒歩12分 (約890m) 大阪市立今福南保育所 徒歩16分 (約1220m) |
||
| 備考 | ・JRおおさか東線 放出駅まで徒歩12分(約890m) ・大阪市立今福南保育所まで徒歩16分(約1220m) |
||
| 物件番号 | 4455828 | 取引態様 | 媒介 |
取扱店舗情報
| 電話番号 | 050-5805-9447 |
|---|---|
| 所在地 | 〒536-0006 大阪府大阪市城東区野江4丁目10-13 クリエイト野江内代1F |
| 営業時間 | 10:00~19:00 |
| 定休日 | なし |
| 宅建免許番号 | 国土交通大臣(1)第10706号 |
| アクセス | 店舗への地図はこちら |

来店ご予約
大阪府大阪市鶴見区で価格が似ている物件はこちら
- 大阪府
マイページ物件数 - 18,919件
大阪府中古マンション新着物件
-
-

-
- 中古マンション
- 2,790万円
-
和泉市和気町2丁目
-
JR阪和線和泉府中駅
-
-
-

-
- 中古マンション
- 3,290万円
-
吹田市桃山台2丁目
-
北大阪急行南北線桃山台駅
-
-
-

-
- 中古マンション
- 980万円
-
貝塚市澤
-
南海電鉄本線二色浜駅
-
-
-

-
- 中古マンション
- 9,980万円
-
大阪市港区南市岡3丁目
-
JR大阪環状線弁天町駅
-
-
-

-
- 中古マンション
- 2,395万円
-
堺市堺区大浜中町1丁
-
南海電鉄本線湊駅
-
-
-

-
- 中古マンション
- 1,298万円
-
大阪市淀川区東三国3丁目
-
JR東海道線東淀川駅
-
-
-

-
- 中古マンション
- 2,790万円
-
和泉市和気町2丁目
-
JR阪和線和泉府中駅
-
- お近くの店舗を探す
-
おすすめ物件
-
-

-
- 中古マンション
- 2,698万円
-
茨木市天王2丁目
-
阪急電鉄京都線南茨木
-
-
-

-
- 中古マンション
- 1,980万円
-
茨木市東太田1丁目
-
JR東海道線JR総持寺
-
-
-

-
- 中古マンション
- 3,180万円
-
八尾市安中町3丁目
-
JR関西本線八尾
-
-
-

-
- 中古マンション
- 1,480万円
-
高槻市古曽部町2丁目
-
JR東海道線高槻
-
-
-

-
- 中古マンション
- 5,950万円
-
川西市中央町
-
阪急電鉄宝塚線川西能勢口
-
-
-

-
- 中古マンション
- 2,390万円
-
吹田市千里山月が丘
-
阪急電鉄千里線千里山
-
-
-

-
- 中古マンション
- 2,090万円
-
東大阪市上石切町1丁目
-
近鉄難波・奈良線石切
-
-
-

-
- 中古マンション
- 2,680万円
-
茨木市天王2丁目
-
阪急電鉄京都線南茨木
-
-
-

-
- 中古マンション
- 1,199万円
-
高石市羽衣4丁目
-
南海電鉄本線羽衣
-
-
-

-
- 中古マンション
- 1,080万円
-
茨木市東太田1丁目
-
JR東海道線JR総持寺
-



















担当エージェント:尾関 親代
最寄り駅から京橋まで5分の好立地!
通勤通学に便利な2沿線3駅利用可!
落ち着いた住環境でファミリー層にも単身者にも◎♪
住宅ローン相談会開催中です!
ぜひお気軽にお問い合わせください!