星和菊ヶ丘ハイツ 枚方市菊丘町の中古マンション
掲載情報更新日:2026年05月22日 次回更新予定日:2026年06月05日
- 1,790万円
-
- 借入ご希望金額
万円 - 借入期間
年 - 借入金利
% - 月々のお支払い金額
円
- 借入ご希望金額
※ 月々のお支払例は目安の試算となりますので、実際の金額とは異なる場合がございます。詳しくは店舗までお問合わせください。
- 枚方市菊丘町
-
京阪本線『枚方公園』 徒歩12分 (約960m)
京阪本線『枚方公園』 バス乗車9分 京阪バス 菊ケ丘 停 徒歩2分 (約160m)
枚方市菊丘町マンション | 物件情報
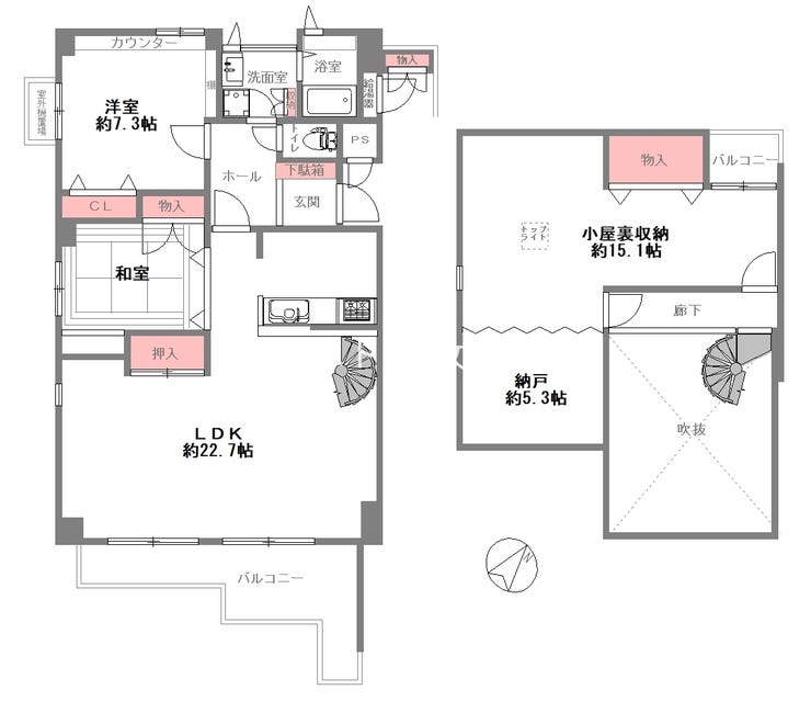
南東向きで光あふれるおしゃれ空間♪ 広々LDKと吹抜けが魅力!収納豊富で快適に暮らせる2LDK+S
◇─◇─◇─◇担当者着目ポイント◇─◇─◇─◇
開放感たっぷりの吹抜けと、22帖超の広々LDKが魅力のお住まい。
南東向きのバルコニーから明るい日差しが差し込み、室内全体が心地よい雰囲気に包まれます。
おしゃれな内装は、木目の温かみとスタイリッシュさを両立。
約15帖の小屋裏収納をはじめ、各居室にも収納スペースをしっかり確保しており、
衣類や季節の荷物もすっきり片付きます。
スーパー徒歩3分・枚方公園駅徒歩12分の好立地で、休日のおでかけやお散歩にも便利♪
快適な暮らしを叶えるこだわりの住まいです。
アクセス
京阪本線「枚方公園」駅 徒歩12分
枚方小学校 徒歩9分
枚方中学校 徒歩9分
周辺環境
・ドラッグアカカベ 枚方公園店 徒歩5分
・パルコープ枚方公園店 徒歩3分
・医療法人愛成会 愛成クリニック 徒歩8分
・枚方公園駅前郵便局 徒歩9分
・枚方幼稚園 徒歩10分
物件の設備
- 都市ガス
- 給湯
- 食器乾燥機
- コンロ三口
- システムキッチン
- バス
- 室内洗濯機置場
- 洗面所独立
- LDK20畳以上
- 和室
- 吹抜
- 納戸
- 押入
- シューズボックス
- バルコニー
物件の特徴
- 小学校徒歩10分以内
- 緑豊かな住宅地
- スーパーが近い
- 閑静な住宅街
- 周辺交通量少なめ
- 市街地が近い
- 都市近郊
- 眺望良好
- 通風良好
- 陽当り良好
- ペット不可
物件詳細情報
| 価格 | 1,790万円 | 間取り | 2LDK+S |
|---|---|---|---|
| 物件種別 | 中古マンション | ||
| 所在地 | 大阪府枚方市菊丘町 | ||
| アクセス |
|
||
| 専有面積 | 壁芯 120.60㎡ | 所在階 | 5階建/4階部分 |
| 主要採光 | 南東向 | バルコニー | 南東向11.90㎡ |
| その他 | |||
| 権利 | 所有権 |
||
| 保証・評価 | |||
| リフォーム | |||
| 総戸数 | 21戸 | 面積 | |
| 築年月 | 1982年(昭和57年)02月築 | 建物構造 | RC |
| 施工会社 | |||
| 管理会社 | 管理方式 | 一部管理 なし(不在) 管理組合あり | |
| 駐車場 | |||
| 都市計画 | 用途地域 | 1種中高 | |
| 建ぺい/容積率 | 土地国土法 | ||
| 法令制限 | |||
| 小学区 | 枚方小学校 徒歩9分 (約700m) | 中学区 | 枚方中学校 徒歩9分 (約700m) |
| 現況 | 空 | 引渡 | 相談 |
| 管理費 | 21,710円/月 | 修繕積立金 | 14,470円/月 |
| その他費用 | |||
| 周辺環境 | ひらかたパーク 徒歩13分 (約1010m) 枚方市立さだ東小学校 徒歩20分 (約1540m) 枚方市立枚方中学校 徒歩11分 (約810m) コノミヤ 枚方店 徒歩15分 (約1180m) セブンイレブン 枚方東中振2丁目店 徒歩23分 (約1790m) 枚方市立さだ幼稚園 徒歩23分 (約1840m) 枚方市立さだ小学校 徒歩26分 (約2020m) ファミリーマート枚方伊加賀西町店 徒歩23分 (約1780m) 枚方モール 徒歩22分 (約1700m) 大阪府立いちりつ高等学校 徒歩26分 (約2040m) |
||
| 備考 | |||
| 物件番号 | 4461105 | 取引態様 | 媒介 |
取扱店舗情報
ハウスドゥ 枚方中宮 株式会社ku-Design 店舗詳細ページへ
| 電話番号 | 072-845-5585 |
|---|---|
| 所在地 | 〒573-1196 大阪府枚方市中宮本町11-12 |
| 営業時間 | 9:30~18:00 |
| 定休日 | 火曜日・水曜日 ※事前予約によりご対応可能 |
| 宅建免許番号 | 大阪府知事(1)第63778号 |
| アクセス | 店舗への地図はこちら |

来店ご予約
大阪府枚方市で価格が似ている物件はこちら
- 大阪府
マイページ物件数 - 19,131件
最近見た物件
-
-

-
- 中古一戸建て
- 2,200万円
-
各務原市那加前野町3丁目
-
JR高山本線那加
-
-
-

-
- 中古一戸建て
- 2,880万円
-
長浜市東上坂町
-
JR北陸本線長浜
-
-
-

-
- 収益
- 8億9,998万円
-
京都市中京区御幸町通竹屋町上る毘沙門町
-
京都市営地下鉄烏丸線丸太町
-
大阪府中古マンション新着物件
-
-

-
- 中古マンション
- 5,280万円
-
大阪市北区天満橋1丁目
-
大阪市堺筋線南森町駅
-
-
-

-
- 中古マンション
- 5,180万円
-
吹田市山手町3丁目
-
阪急電鉄千里線関大前駅
-
-
-

-
- 中古マンション
- 1,080万円
-
吹田市江坂町2丁目
-
大阪市御堂筋線江坂駅
-
-
-

-
- 中古マンション
- 1,680万円
-
茨木市東太田1丁目
-
JR東海道線JR総持寺駅
-
-
-

-
- 中古マンション
- 1,280万円
-
箕面市桜井2丁目
-
阪急電鉄箕面線桜井駅
-
-
-

-
- 中古マンション
- 2,580万円
-
大阪市淀川区東三国6丁目
-
大阪市御堂筋線東三国駅
-
-
-

-
- 中古マンション
- 5,680万円
-
大阪市阿倍野区松崎町3丁目
-
大阪市谷町線文の里駅
-
- お近くの店舗を探す
-
おすすめ物件
-
-

-
- 中古マンション
- 3,680万円
-
泉大津市東雲町
-
南海電鉄本線泉大津
-
-
-

-
- 中古マンション
- 1,420万円
-
吹田市垂水町3丁目
-
大阪市御堂筋線江坂
-
-
-

-
- 中古マンション
- 3,299万円
-
吹田市江坂町2丁目
-
大阪市御堂筋線江坂
-
-
-

-
- 中古マンション
- 5,098万円
-
吹田市芳野町
-
大阪市御堂筋線江坂
-
-
-

-
- 中古マンション
- 3,750万円
-
箕面市粟生外院1丁目
-
北大阪急行南北線箕面萱野
-
-
-

-
- 中古マンション
- 1,180万円
-
泉大津市尾井千原町
-
南海電鉄本線北助松
-
-
-

-
- 中古マンション
- 1,580万円
-
和泉市伏屋町5丁目
-
南海電鉄泉北線光明池
-
-
-

-
- 中古マンション
- 2,098万円
-
泉大津市田中町
-
南海電鉄本線泉大津
-
-
-

-
- 中古マンション
- 2,790万円
-
高槻市古曽部町2丁目
-
JR東海道線高槻
-
-
-

-
- 中古マンション
- 4,650万円
-
吹田市垂水町3丁目
-
大阪市御堂筋線江坂
-



























南東向きの明るいリビングは、吹抜けの天井と22帖超の広さで開放感たっぷり。
家族でゆったりと過ごせる居心地の良い空間です。
キッチンは作業スペースを広く確保したカウンタータイプで、上部収納も備え使い勝手◎。
調理器具や食器をすっきり整理でき、毎日の家事も快適です。
リビングから続くらせん階段はデザイン性が高く、空間のアクセントとして存在感を放ちます。
約15帖の小屋裏収納は、季節家電やアウトドア用品などもたっぷりしまえる頼もしいスペース。
各居室にも収納があり、すっきりとした暮らしを実現できます。
南東向きのバルコニーは陽当たりが良く、洗濯物もよく乾く明るい空間。
枚方パーク徒やお出かけにも嬉しい環境です。
“明るさ・広さ・収納力”の3拍子がそろった住まいを、ぜひ現地でご体感ください。
【当日予約も大歓迎】弊社は毎日新物件の情報を入荷しています。 水面下物件も多数!いつ来ても新情報がいっぱいです! 是非『0120-395-585』までお問合せ下さい!