豊中柴原シティハウス 豊中市柴原町2丁目の中古マンション
掲載情報更新日:2026年01月15日 次回更新予定日:2026年01月29日
- 3,790万円
-
- 借入ご希望金額
万円 - 借入期間
年 - 借入金利
% - 月々のお支払い金額
円
- 借入ご希望金額
※ 月々のお支払例は目安の試算となりますので、実際の金額とは異なる場合がございます。詳しくは店舗までお問合わせください。
- 豊中市柴原町2丁目
-
大阪モノレール『柴原阪大前』 徒歩7分 (約560m)
阪急電鉄宝塚線『豊中』 徒歩17分 (約1360m)
豊中市柴原町2丁目マンション | 物件情報
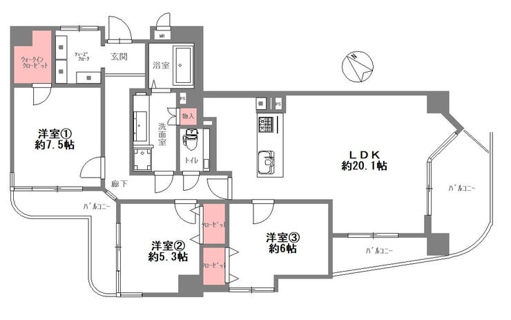
約20帖・2面バルコニーの開放感あふれるゆとりのLDK
大阪モノレール線「芝原阪大前」駅 徒歩8分、阪急宝塚本線「豊中」駅 徒歩17分。
2沿線が利用できる利便性の高い立地に位置し、通勤・通学にも快適なアクセス環境が魅力のリフォーム済マンションです。
約20帖の広々としたLDKは、開放感たっぷり。
ご家族みんなでゆったりとくつろげる空間で、自然と笑顔が集まる住まいです。
南向きの2面バルコニーからは光と風がたっぷり入り、明るく心地よい暮らしを実現します。
室内はフルリフォーム済で、水回り設備を中心に新しく生まれ変わりました。
◆システムキッチン新調
◆浴室ユニットバス新調
◆洗面化粧台新調
◆便器・温水洗浄便座新調
◆クロス貼替え
◆フローリング貼替え
隅々まで丁寧に施工されており,すぐに気持ちよく新生活をスタートしていただけます。
また、ペット飼育可なのも大きな魅力?
周辺には緑豊かな公園やお散歩コースも多く、大切な家族の一員と快適な時間を過ごせます。
交通アクセス・住環境・室内の快適さのすべてを兼ね備えた理想の住まい。
穏やかな街で、のびのびとした新生活を始めてみませんか?
物件の設備
- 都市ガス
- 給湯
- 食器乾燥機
- 食器洗浄乾燥機
- コンロ三口
- ガスコンロ付
- カウンターキッチン
- システムキッチン
- バス
- ユニットバス
- シャワー
- シャワールーム
- トイレ
- 室内洗濯機置場
- 洗面所独立
- フローリング張替
- クローゼット
- クローゼット2箇所
- ウォークインクローゼット
- シューズWIC
- シューズボックス
- 2面バルコニー
物件の特徴
- 管理人日勤
- 内装リフォーム済
物件詳細情報
| 価格 | 3,790万円 | 間取り | 3LDK |
|---|---|---|---|
| 物件種別 | 中古マンション | ||
| 所在地 | 大阪府豊中市柴原町2丁目 | ||
| アクセス |
|
||
| 専有面積 | 壁芯 96.13㎡ | 所在階 | 6階建/3階部分 |
| 主要採光 | 西向 | バルコニー | |
| その他 | |||
| 権利 | 所有権 |
||
| 保証・評価 | |||
| リフォーム | 【水回り】2025年09月 キッチン・浴室・トイレ・洗面 システムキッチン新調 便器・温水洗浄便座新調 浴室ユニットバス新調 洗面化粧台新調 【内装】2025年09月 床 ・全室クロス クロス貼替え フローリング貼替え |
||
| 総戸数 | 18戸 | 面積 | 敷地:1155.67㎡ |
| 築年月 | 1992年(平成4年)03月築 | 建物構造 | RC |
| 施工会社 | 真柄建設株式会社 | ||
| 管理会社 | 住友不動産建物サービス株式会社 | 管理方式 | 全部委託 日勤管理 |
| 駐車場 | 【駐車場】空無 |
||
| 都市計画 | 用途地域 | 1種中高 | |
| 建ぺい/容積率 | 土地国土法 | ||
| 法令制限 | |||
| 小学区 | 桜井谷小学校 徒歩11分 (約880m) | 中学区 | 第十三中学校 徒歩7分 (約560m) |
| 現況 | 空 | 引渡 | 相談 |
| 管理費 | 17,150円/月 | 修繕積立金 | 18,280円/月 |
| その他費用 | |||
| 備考 | |||
| 物件番号 | 4477601 | 取引態様 | 媒介 |
取扱店舗情報
ハウスドゥ 新大阪プライムタワー アトレイル株式会社 店舗詳細ページへ
| 電話番号 | 06-6379-3018 |
|---|---|
| 所在地 | 〒532-0011 大阪府大阪市淀川区西中島6丁目1-1新大阪プライムタワー1階 |
| 営業時間 | 9:00~18:00 |
| 定休日 | 祝日、年末年始 |
| 宅建免許番号 | 大阪府知事(1)第65634号 |
| アクセス | 店舗への地図はこちら |

来店ご予約
大阪府豊中市で価格が似ている物件はこちら
- 大阪府
マイページ物件数 - 16,545件
最近見た物件
-
-

-
- 中古マンション
- 500万円
-
北九州市八幡西区友田3丁目
-
JR筑豊本線本城
-
大阪府中古マンション新着物件
-
-

-
- 中古マンション
- 2,480万円
-
守口市京阪本通1丁目
-
大阪市谷町線太子橋今市駅
-
-
-

-
- 中古マンション
- 2,480万円
-
吹田市千里万博公園
-
大阪モノレール山田駅
-
-
-

-
- 中古マンション
- 2,900万円
-
大阪市東住吉区桑津3丁目
-
近鉄南大阪線河堀口駅
-
-
-

-
- 中古マンション
- 3,698万円
-
大阪市東淀川区瑞光2丁目
-
阪急電鉄京都線上新庄駅
-
-
-

-
- 中古マンション
- 8,000万円
-
大阪市北区鶴野町
-
阪急電鉄神戸線大阪梅田駅
-
-
-

-
- 中古マンション
- 4,180万円
-
大阪市天王寺区夕陽丘町
-
大阪市谷町線四天王寺前夕陽ヶ丘駅
-
-
-

-
- 中古マンション
- 1,380万円
-
大阪市淀川区塚本2丁目
-
JR東海道線塚本駅
-
- お近くの店舗を探す
-
おすすめ物件
-
-

-
- 中古マンション
- 4,980万円
-
吹田市江の木町
-
大阪市御堂筋線江坂
-
-
-

-
- 中古マンション
- 2,298万円
-
泉大津市田中町
-
南海電鉄本線泉大津
-
-
-

-
- 中古マンション
- 3,700万円
-
大阪市住吉区南住吉4丁目
-
JR阪和線我孫子町
-
-
-

-
- 中古マンション
- 2,490万円
-
大阪市平野区瓜破東2丁目
-
大阪市谷町線出戸
-
-
-

-
- 中古マンション
- 3,098万円
-
東大阪市横沼町3丁目
-
近鉄大阪線俊徳道
-
-
-

-
- 中古マンション
- 1,290万円
-
東大阪市日下町4丁目
-
近鉄けいはんな線新石切
-
-
-

-
- 中古マンション
- 5,680万円
-
吹田市千里山虹が丘
-
阪急電鉄千里線千里山
-
-
-

-
- 中古マンション
- 3,400万円
-
大阪市平野区瓜破西1丁目
-
大阪市谷町線喜連瓜破
-
-
-

-
- 中古マンション
- 2,860万円
-
西宮市苦楽園五番町
-
阪急電鉄甲陽線苦楽園口
-
-
-

-
- 中古マンション
- 2,578万円
-
大阪市淀川区新高6丁目
-
阪急電鉄神戸線神崎川
-


































