レーベンハイム戸田ソラリエ
NEW 11.06掲載情報更新日:2025年11月06日 次回更新予定日:2025年11月20日
- 3,800万円
-
- 借入ご希望金額
万円 - 借入期間
年 - 借入金利
% - 月々のお支払い金額
円
- 借入ご希望金額
※ 月々のお支払例は目安の試算となりますので、実際の金額とは異なる場合がございます。詳しくは店舗までお問合わせください。
- 戸田市美女木北3丁目
-
JR埼京線『北戸田』 徒歩16分 (約1280m)
JR埼京線『武蔵浦和』 徒歩20分 (約1600m)
JR武蔵野線『武蔵浦和』 徒歩20分 (約1600m)
レーベンハイム戸田ソラリエマンション | 物件情報
共用施設充実!!175戸のビッグコミュニティ 戸別蓄電付き売買可能太陽光発電システム☆
物件の設備
- オール電化
- 給湯
- 浄水器
- IHクッキングヒータ
- 電気コンロ
- コンロ三口
- カウンターキッチン
- システムキッチン
- ユニットバス
- 浴室乾燥機
- 室内洗濯機置場
- 床暖房
- 太陽光発電システム
- オートロック
- フローリング
- クローゼット
- ウォークインクローゼット
- シューズボックス
- バルコニー
- ゲストルーム
- シアタールーム
- 共用パーティールーム
物件の特徴
- 管理人日勤
- 内装リフォーム済
- 内装リフォーム後渡
- スーパーが近い
- 市街地が近い
- 外観タイル張
- ペット相談
物件詳細情報
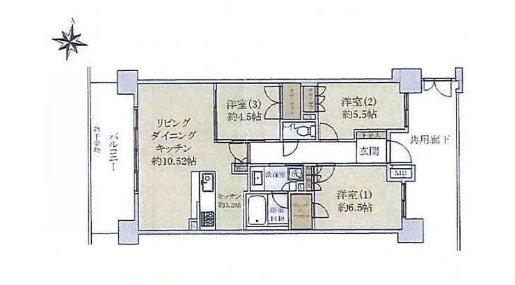
| 価格 | 3,800万円 | 間取り | 3LDK |
|---|---|---|---|
| 物件種別 | 中古マンション | ||
| 所在地 | 埼玉県戸田市美女木北3丁目2-1 | ||
| アクセス |
|
||
| 専有面積 | 壁芯 72.05㎡ | 所在階 | 7階建/5階部分 |
| 主要採光 | 西向 | バルコニー | 西向12.80㎡ |
| その他 | |||
| 権利 | 所有権 |
||
| 保証・評価 | |||
| リフォーム | 【水回り】2025年10月 キッチン・浴室・他[クッションフロア交換] キッチン:水栓交換 浴室:水栓交換 【内装】2025年10月 全室クロス ・他[照明器具交換 巾木交換] |
||
| 総戸数 | 175戸 | 面積 | |
| 築年月 | 2012年(平成24年)10月築 | 建物構造 | RC |
| 施工会社 | |||
| 管理会社 | 管理方式 | 全部委託 日勤管理 管理組合あり | |
| 駐車場 | |||
| 都市計画 | 市街化区域 |
用途地域 | 工業 |
| 建ぺい/容積率 | 60% / 200% | 土地国土法 | |
| 法令制限 | |||
| 小学区 | 美女木小学校 徒歩8分 (約640m) | 中学区 | 笹目中学校 徒歩22分 (約1700m) |
| 現況 | 空 | 引渡 | 相談 |
| 管理費 | 10,700円/月 | 修繕積立金 | 9,100円/月 |
| その他費用 | |||
| 周辺環境 | スーパーベルクス浦和南店 徒歩5分 (約400m) 島忠 ホームズ浦和南店 徒歩5分 (約350m) 美女木小学校 徒歩7分 (約560m) あけぼの保育園 徒歩9分 (約670m) イオンモール北戸田 徒歩13分 (約980m) 浦和みひかり幼稚園 徒歩11分 (約830m) 白幡食肉卸売センター ミートミート 徒歩14分 (約1120m) Yバリュー美女木店 徒歩13分 (約990m) 戸田市立市民医療センター 徒歩17分 (約1290m) 笹目中学校 徒歩17分 (約1330m) |
||
| 備考 | |||
| 物件番号 | 4477808 | 取引態様 | 媒介 |
取扱店舗情報
| 電話番号 | 048-441-6001 |
|---|---|
| 所在地 | 〒335-0013 埼玉県戸田市喜沢1丁目26-23 |
| 営業時間 | 10:00~19:00 |
| 定休日 | 火曜日・水曜日 |
| 宅建免許番号 | 埼玉県知事(3)第22845号 |
| アクセス | 店舗への地図はこちら |

来店ご予約
埼玉県戸田市で価格が似ている物件はこちら
- 埼玉県
マイページ物件数 - 3,099件
最近見た物件
-
-

-
- 中古マンション
- 2,199万円
-
川口市青木1丁目
-
埼玉高速鉄道川口元郷
-
埼玉県中古マンション新着物件
-
-

-
- 収益
- 2,850万円
-
川口市並木1丁目
-
JR京浜東北・根岸線西川口駅
-
-
-

-
- 収益
- 3,480万円
-
川口市鳩ヶ谷本町4丁目
-
埼玉高速鉄道鳩ヶ谷駅
-
-
-

-
- 収益
- 2,780万円
-
川口市鳩ヶ谷本町4丁目
-
埼玉高速鉄道鳩ヶ谷駅
-
-
-

-
- 収益
- 2,680万円
-
川口市鳩ヶ谷本町4丁目
-
埼玉高速鉄道鳩ヶ谷駅
-
-
-

-
- 収益
- 2,580万円
-
川口市鳩ヶ谷本町4丁目
-
埼玉高速鉄道鳩ヶ谷駅
-
-
-

-
- 収益
- 2,580万円
-
川口市鳩ヶ谷本町4丁目
-
埼玉高速鉄道鳩ヶ谷駅
-
-
-

-
- 収益
- 2,480万円
-
川口市鳩ヶ谷本町4丁目
-
埼玉高速鉄道鳩ヶ谷駅
-
- お近くの店舗を探す
-
おすすめ物件
-
-

-
- 中古マンション
- 3,890万円
-
新座市東北1丁目
-
東武東上線志木
-
-
-

-
- 中古マンション
- 5,480万円
-
上尾市柏座3丁目
-
JR高崎線上尾
-
-
-

-
- 中古マンション
- 2,390万円
-
越谷市千間台西5丁目
-
東武伊勢崎・大師線せんげん台
-
-
-

-
- 中古マンション
- 3,580万円
-
戸田市大字新曽
-
JR埼京線戸田
-
-
-

-
- 中古マンション
- 1,890万円
-
さいたま市見沼区東大宮4丁目
-
湘南新宿ライン宇須東大宮
-
-
-

-
- 中古マンション
- 4,490万円
-
さいたま市大宮区土手町1丁目
-
東武野田線北大宮
-
-
-

-
- 中古マンション
- 4,290万円
-
草加市金明町
-
東武伊勢崎・大師線新田
-
-
-

-
- 中古マンション
- 2,290万円
-
さいたま市北区日進町1丁目
-
JR東北本線大宮
-
-
-

-
- 中古マンション
- 3,190万円
-
さいたま市北区宮原町2丁目
-
埼玉新都市交通東宮原
-
-
-

-
- 中古マンション
- 940万円
-
上尾市上町1丁目
-
JR高崎線上尾
-









