北千住パーク・ファミリア 足立区千住東2丁目の中古マンション
NEW 11.16掲載情報更新日:2025年11月16日 次回更新予定日:2025年11月30日
- 4,890万円
-
- 借入ご希望金額
万円 - 借入期間
年 - 借入金利
% - 月々のお支払い金額
円
- 借入ご希望金額
※ 月々のお支払例は目安の試算となりますので、実際の金額とは異なる場合がございます。詳しくは店舗までお問合わせください。
- 足立区千住東2丁目
-
東武伊勢崎・大師線『牛田』 徒歩4分 (約280m)
京成本線『京成関屋』 徒歩4分 (約280m)
JR常磐線『北千住』 徒歩9分 (約720m)
足立区千住東2丁目マンション | 物件情報
【ペット可】複数路線利用の「北千住」駅徒歩9分!12階部分につき眺望・風通し良好な3LDK。
都心へのアクセスも便利な「北千住」駅利用。12階のお部屋からは開放的な景色が広がります。ご家族の荷物もすっきり片付くウォークインクローゼットを3か所に完備。水回りから内装まで一新するリフォームで、快適な暮らしをスタートできます。コンビニや小学校も徒歩圏内に揃う暮らしやすい住環境です。
物件の設備
- 公営水道
- 下水道
- 公共下水
- 都市ガス
- 給湯
- 浄水器
- 食器洗浄乾燥機
- コンロ三口
- グリル
- ガスコンロ付
- カウンターキッチン
- システムキッチン
- バス
- オートバス
- 追焚機能
- 浴室乾燥機
- シャワー
- トイレ
- 温水洗浄便座
- B/T別室
- 室内洗濯機置場
- 洗面所独立
- 可動間仕切
- モニタ付インターホン
- 防犯カメラ
- 火災警報器/報知機
- フローリング
- 全室フローリング
- フローリング張替
- 網戸
- ウォークインクローゼット
- ウォークインクローゼット2箇所
- 収納スペース
- 全居室収納
- シューズボックス
- バルコニー
- 平面駐車場
- エレベーター
- 共用施設充実
物件の特徴
- 管理人常駐
- 内装リフォーム済
- 始発駅
- 3沿線以上利用可
- 駅まで平坦
- 小学校徒歩10分以内
- 整備された歩道
- 緑豊かな住宅地
- スーパーが近い
- 閑静な住宅街
- 周辺交通量少なめ
- 市街地が近い
- 眺望良好
- 通風良好
- 陽当り良好
- 前面棟無
- 平坦地
- 24時間ゴミ出可
- ペット相談
- ペット対応
- IT重説
物件詳細情報
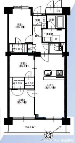
| 価格 | 4,890万円 | 間取り | 3LDK |
|---|---|---|---|
| 物件種別 | 中古マンション | ||
| 所在地 | 東京都足立区千住東2丁目 | ||
| アクセス |
|
||
| 専有面積 | 壁芯 59.67㎡ | 所在階 | 14階建/12階部分 |
| 主要採光 | 南東向 | バルコニー | 南東向7.98㎡ |
| その他 | |||
| 権利 | 所有権 |
||
| 保証・評価 | |||
| リフォーム | 【水回り】2025年10月 キッチン・浴室・トイレ・洗面・給湯器 ●システムキッチン交換●浴室交換●洗面台・洗濯パン交換●トイレ交換●給湯器交換 【内装】2025年10月 壁、天井 ・床 ・全室クロス ・建具 ●フローリング張替●壁・天井クロス張替●建具交換●ハウスクリーニング等 |
||
| 総戸数 | 219戸 | 面積 | 敷地:7731.34㎡ |
| 築年月 | 1981年(昭和56年)02月築 | 建物構造 | SRC |
| 施工会社 | 三井建設㈱ | ||
| 管理会社 | 三井不動産レジデンシャルサービス㈱ | 管理方式 | 全部委託 常駐管理 |
| 駐車場 | |||
| 都市計画 | 用途地域 | 近隣商業(一部準工業 含む) | |
| 建ぺい/容積率 | 土地国土法 | ||
| 法令制限 | |||
| 小学区 | 千寿常東小学校 徒歩6分 (約450m) | 中学区 | 千寿桜堤中学校 徒歩10分 (約800m) |
| 現況 | 空 | 引渡 | 相談 |
| 管理費 | 13,430円/月 | 修繕積立金 | 7,120円/月 |
| その他費用 | |||
| 周辺環境 | ファミリーマート千住あずま店 徒歩3分 (約200m) 牛田駅 徒歩4分 (約270m) 足立郵便局 徒歩4分 (約300m) 京成関屋駅 徒歩4分 (約320m) 柳原リハビリテーション病院 徒歩5分 (約400m) 千寿常東小学校 徒歩7分 (約560m) 足立区立千寿桜堤中学校 徒歩10分 (約770m) 北千住駅 出入口1 徒歩10分 (約740m) ダイトーストアー 徒歩7分 (約490m) マツモトキヨシ千住曙町店 徒歩7分 (約540m) |
||
| 備考 | ・ファミリーマート千住あずま店まで徒歩3分(約200m) ・牛田駅まで徒歩4分(約270m) ・足立郵便局まで徒歩4分(約300m) ・京成関屋駅まで徒歩4分(約320m) ・柳原リハビリテーション病院まで徒歩5分(約400m) ・千寿常東小学校まで徒歩7分(約560m) ・足立区立千寿桜堤中学校まで徒歩10分(約770m) ・北千住駅 出入口1まで徒歩10分(約740m) ・ダイトーストアーまで徒歩7分(約490m) ・マツモトキヨシ千住曙町店まで徒歩7分(約540m) |
||
| 物件番号 | 4491999 | 取引態様 | 媒介 |
取扱店舗情報
ハウスドゥ 千住曙町 株式会社カクシンライフ 店舗詳細ページへ
| 電話番号 | 03-6806-2375 |
|---|---|
| 所在地 | 〒120-0023 東京都足立区千住曙町37-33 |
| 営業時間 | 9:30~18:30 |
| 定休日 | 火曜日・水曜日・年末年始 |
| 宅建免許番号 | 東京都知事(1)第109143号 |
| アクセス | 店舗への地図はこちら |

来店ご予約
東京都足立区で価格が似ている物件はこちら
- 東京都
マイページ物件数 - 5,587件
最近見た物件
-
-

-
- 中古一戸建て
- 3,899万円
-
大阪市西淀川区姫里3丁目
-
JR東西線御幣島
-
-
-

-
- 中古一戸建て
- 2,480万円
-
柏市しいの木台4丁目
-
京成電鉄松戸線五香
-
-
-

-
- 中古一戸建て
- 3,180万円
-
豊田市野見山町3丁目
-
名鉄三河線豊田市
-
東京都中古マンション新着物件
- お近くの店舗を探す
-
おすすめ物件
-
-

-
- 中古マンション
- 3,380万円
-
葛飾区水元3丁目
-
JR千代田・常磐緩行線金町
-
-
-

-
- 中古マンション
- 4,880万円
-
葛飾区堀切4丁目
-
京成本線堀切菖蒲園
-
-
-

-
- 中古マンション
- 4,480万円
-
台東区元浅草3丁目
-
都営大江戸線新御徒町
-
-
-

-
- 中古マンション
- 4,980万円
-
足立区千住関屋町
-
京成本線京成関屋
-
-
-

-
- 中古マンション
- 3,900万円
-
大田区中央2丁目
-
JR京浜東北・根岸線大森
-
-
-

-
- 中古マンション
- 7,499万円
-
調布市国領町7丁目
-
京王線国領
-
-
-

-
- 中古マンション
- 4,480万円
-
足立区東綾瀬1丁目
-
東京メトロ千代田線綾瀬
-
-
-

-
- 中古マンション
- 3,490万円
-
葛飾区柴又2丁目
-
京成金町線柴又
-
-
-

-
- 中古マンション
- 7,180万円
-
世田谷区南烏山6丁目
-
京王線千歳烏山
-
-
-

-
- 中古マンション
- 1億980万円
-
台東区上野7丁目
-
JR山手線上野
-













